Listas

Renta Nave Industrial en Cuautitlán (divisible o completa)

Guardado Guardar
1 de 5
2 de 5
3 de 5
4 de 5
5 de 5
1 de 5
1 / 5
2 de 5
2 / 5
3 de 5
3 / 5
4 de 5
4 / 5
5 de 5
5 / 5
Cerrar
ID: EB-VA9923
Publicado
$190 MXN por m²
En Renta

Renta Nave Industrial en Cuautitlán (divisible o completa)

Nave industrial en Cuautitlán Centro, Cuautitlán

Enrique Segura
PASA inmobiliaria
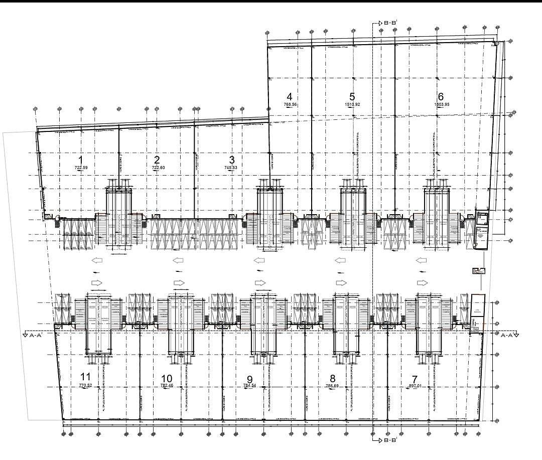
10,295.37 m² de construcción
15,000 m² de terreno
Año de construcción: A estrenar
Cantidad de pisos en el edificio: 1
Mantenimiento: 7%
Descripción

¡TU BODEGA IDEAL TE ESTÁ ESPERANDO!

• Área de bodega: 10,295.37 m2
• Patio de maniobras: a disposición
• Piso de alta resistencia
• Altura libre: 12 m
• Opción a oficinas
* Divisible desde 720 m2

Operación eficiente:
• Andenes: 13 (opcional rampa niveladora)
• 1 rampa de acceso
• Luz trifásica: 45 KVA´S por módulo

Construcción de calidad:
• Techumbre: Lamina KR-18
• Tipo de muro: Estructura Metálica y muros Tilt-up
• Piso: MR 45

Incluye:

• 3 cisternas (70,000 lts, 2 de 30,000 lts)
• Estacionamiento
• Baños
• Sistema contra incendios: Adaptable

PRECIO: $175/m2 + 7% mtto + IVA

Amenidades
Exterior
  • Andén
  • Cisterna
  • Facilidad para estacionarse
  • Patio
  • General
  • Accesibilidad para adultos mayores
  • Accesibilidad para personas con discapacidad
  • Circuito cerrado
  • Oficina
  • Rampas
  • Seguridad 24 horas
  • Una sola planta
  • Ubicación

    Cuautitlán Centro, Cuautitlán, Estado de México

    Enrique Segura
    PASA inmobiliaria
    Enviar mensaje