House in Praderas del Mayab, Conkal
Single-story house for sale - Immediate deliveryCasa de una planta en venta- Entrega inmediata
Single-story residence with spacious areas, functional design, and quality finishes. Its strategic location and features make it ideal for those seeking comfort, practicality, and modern style.
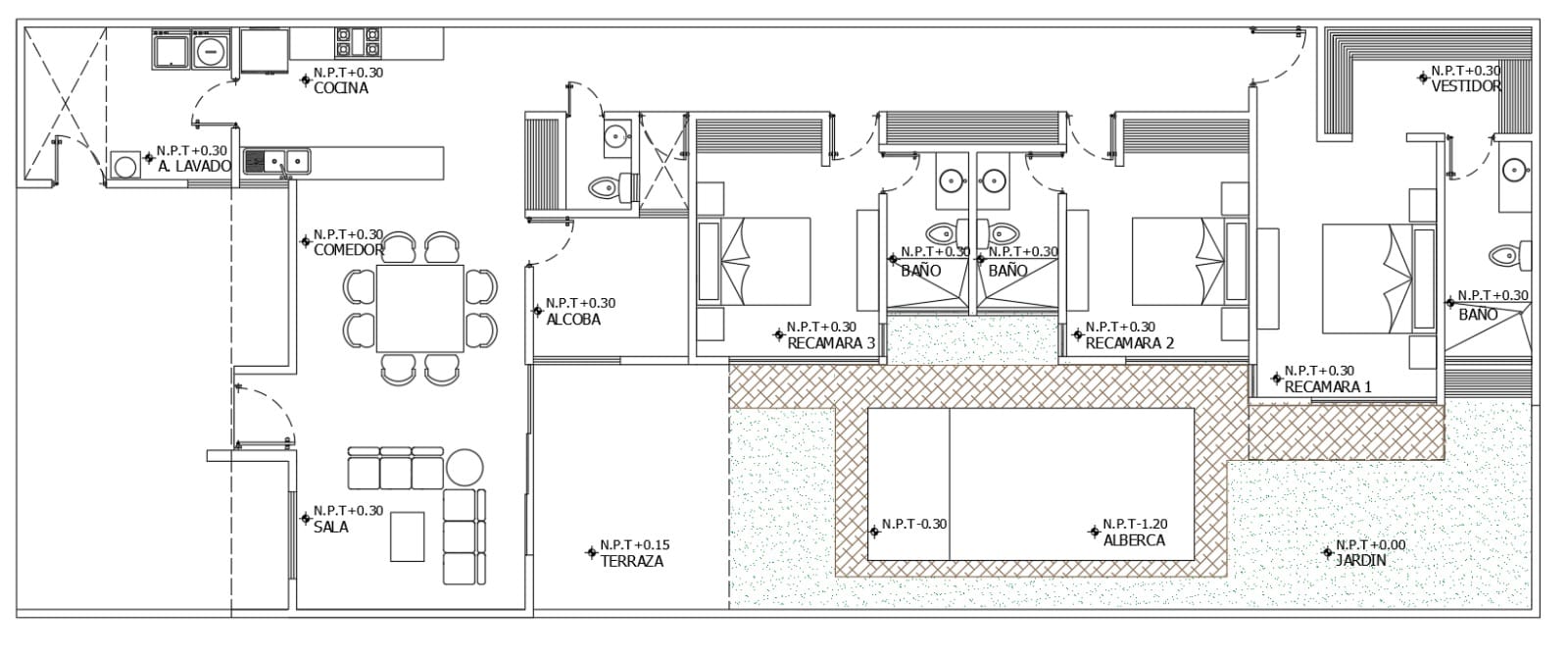
DISTRIBUTION
Living room
Dining room with height and a half
Kitchen
Half bathroom for guests
Covered service area
2 secondary bedrooms with full bathroom, closet, and dressing room
Master bedroom with full bathroom, closet, and dressing room
Covered terrace with garden view
Pool of 2.80 x 6 m
Parking for 2 cars
Construction area: 200.63 m²
Land: 11 m x 28 m = 308 m²
FINISHES AND EQUIPMENT
Facade with natural stone finish
Interior finishes with direct plaster to block
Bathroom countertops in Veracruz marble
Island and kitchen furniture with San Gabriel black granite countertop
Exterior finish of the second floor with Cemix three-layer plaster
Facade with stone wall and chukum finish
Pool with chukum type finish
Block wall 15x20x40 cm
Structure with load-bearing walls, reinforced concrete beams, and slab with joist and hollow block
Windows and sliding doors of black aluminum 3” with clear glass of 6 mm
Ceramic floor London Marfil 60x60 cm indoors
Ceramic floor Odessa Beige 32x57 cm in showers
INSTALLATIONS AND PREPARATIONS
Preparation for solar panel installation
Preparation and electrical wiring for air conditioning
Water supply through deep well
Immediate delivery.
Construction: 200.63 m² | Land: 308 m² (11x28 m)
Availability and price are subject to change without prior notice. Illustrations are only graphic representations and may vary. Furniture and accessories are not included in the price unless otherwise specified in writing. The price does not cover notarial fees, taxes, appraisals, maintenance fees, or other costs associated with the purchase. The total price will depend on the variable amounts of credit and notarial fees, which must be consulted with the promoters. Commercial information by Royal Town Real Estate (Jacobo Alcocer Valle). For comments or complaints, contact clientes.royaltown@gmail.com. Marketing under Intermediation Agreement registered with PROFECO (1572-2024). Privacy notice available at www.royaltown.com.mx.Residencia de una planta con amplios espacios, diseño funcional y acabados de calidad. Su ubicación estratégica y características la hacen ideal para quienes buscan confort, practicidad y estilo moderno.
DISTRIBUCIÓN
Sala
Comedor con altura y media
Cocina
Medio baño de visitas
Área de servicio techada
2 recámaras secundarias con baño completo, clóset y vestidor
Recámara principal con baño completo, clóset y vestidor
Terraza techada con vista al jardín
Alberca de 2.80 x 6 m
Estacionamiento para 2 autos
Superficie de construcción: 200.63 m²
Terreno: 11 m x 28 m = 308 m²
ACABADOS Y EQUIPAMIENTO
Fachada con acabado en piedra natural
Acabados interiores con yeso directo a block
Mesetas de baño en mármol Veracruz
Isla y mueble de cocina con cubierta de granito negro San Gabriel
Acabado exterior de segunda planta con aplanado Cemix de tres capas
Fachada con muro de piedra y acabado en chukum
Piscina con acabado tipo chukum
Muro de block 15x20x40 cm
Estructura con muros cargadores, trabes de concreto armado y losas de vigueta y bovedilla
Ventanas y puertas corredizas de aluminio negro de 3” con cristal claro de 6 mm
Piso cerámico London Marfil 60x60 cm en interiores
Piso cerámico Odessa Beige 32x57 cm en regaderas
INSTALACIONES Y PREPARACIONES
Preparación para instalación de paneles solares
Preparación y cableado eléctrico para aire acondicionado
Abastecimiento de agua mediante pozo profundo
Entrega inmediata.
Construcción: 200.63 m² | Terreno: 308 m² (11x28 m)
La disponibilidad y precio están sujetos a cambios sin previo aviso. Las ilustraciones son solo representaciones gráficas y pueden variar. Los muebles y accesorios no están incluidos en el precio, salvo que se especifique lo contrario por escrito. El precio no cubre gastos notariales, impuestos, avalúos, cuotas de mantenimiento ni otros costos asociados a la compraventa. El precio total dependerá de los montos variables de crédito y gastos notariales, los cuales deben ser consultados con los promotores. Información comercial por Royal Town Inmobiliaria (Jacobo Alcocer Valle). Para comentarios o quejas, contacte a clientes.royaltown@gmail.com. Comercialización bajo Convenio de Intermediación registrado en PROFECO (1572-2024). Aviso de privacidad disponible en www.royaltown.com.mx.
- Street parking
- Garden
- Terrace
- Accessibility for elderly
- Kitchen
- Private housing development
- Ground Floor
- Ground floor bedroom
- Pets allowed
- Pool
Praderas del Mayab, Conkal, Yucatán
Publisher
Listing Data
- Listing ID EB-UJ8587
- Operation Type Sale
- Property Type House
- Neighborhood Praderas del Mayab
