Listas

ARMAZÉM INDUSTRIAL PARA ALUGUEL EM CHIHUAHUANAVE INDUSTRIAL EN RENTA EN CHIHUAHUA

Salvou Salve
1 de 8
2 de 8
3 de 8
4 de 8
5 de 8
6 de 8
7 de 8
8 de 8
1 de 8
1 / 8
2 de 8
2 / 8
3 de 8
3 / 8
4 de 8
4 / 8
5 de 8
5 / 8
6 de 8
6 / 8
7 de 8
7 / 8
8 de 8
8 / 8
Fechar
ID: EB-VA5604
Publicados
$7,70 USD por m²
Para alugar

ARMAZÉM INDUSTRIAL PARA ALUGUEL EM CHIHUAHUANAVE INDUSTRIAL EN RENTA EN CHIHUAHUA

Prédio industrial em Villas del Rey I, II y III, Chihuahua

Grupo Villanueva
Grupo Villanueva Real Estate
91 vagas de estacionamento
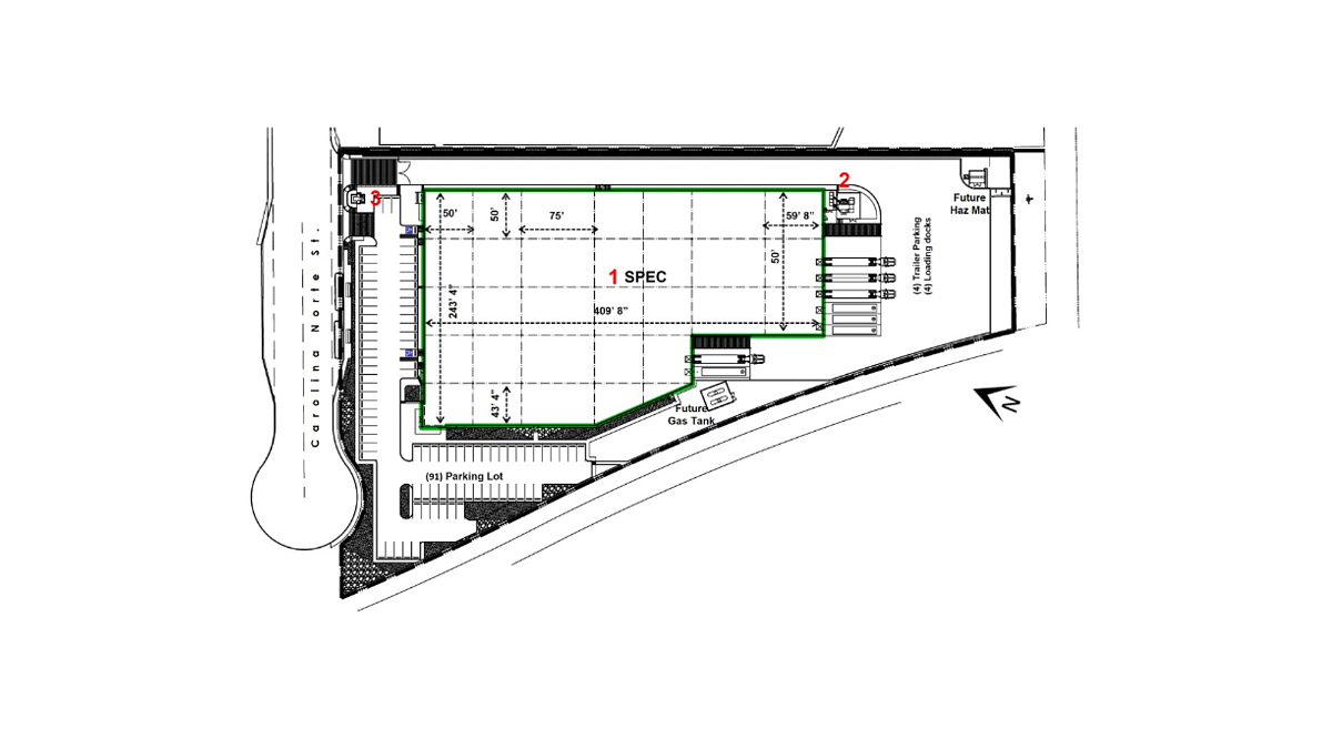
8.042 m² de área total
19.993 m² Tamanho do lote
Ano de construção: Novo
Descrição
Veja originalVeja em português

Armazém industrial para alugar localizado em Chihuahua, possui uma construção de 8.042 m2 e todos os serviços, tem uma localização estratégica, próxima ao centro de distribuição Mercado Livre e à planta da Motorola, com mão de obra próxima.

ESPECIFICAÇÕES DE CONSTRUÇÃO

-Espaço de construção: 8.021 m2.
-Terreno: 19.993 m2.
-Altura livre: 9,7 m.
-Tamanho da baía: 15,24 m X 15,24 m / 22,86 m X 15,24 m / 13,10 m X 15,24 m / 17,98 m X 15,24 m.
-Tipo de construção: Metal e concreto pré-fabricado.
-Sistema de telhado: KR-18 Galv. Cal. 22.
-Espaço do piso: 6"
-Docks: 4
-Rampa: 1
-Estacionamento: 91 vagas.
-Estacionamento para caminhão: 6
-Iluminação: Iluminação LED 40 FC
-Iluminação natural: 3%.

SERVIÇOS:
-Sistema contra incêndios: Armários para mangueiras.
-Climatização: Ventilação 3 ACH
-Água: Disponível.
-Gás LP: Disponível.
-Telefone: Disponível.
-Eletricidade: Transformador 1000 KVA

ÁREAS COMUNS
-Segurança do parque.
-Iluminação pública e vias de acesso.
-FPS compartilhados.
-Subestação elétrica compartilhada.
-Água doméstica compartilhada.

PREÇO DE SAÍDA DE $7,7 USD POR m2, com base na proposta, mais manutenção mais IVA.

Preços, características e fotografias devem ser considerados meramente informativos e sujeitos a alterações sem aviso prévio. Para uma cotação mais precisa e atualizada, por favor, entre em contato conosco, um de nossos consultores especializados o atenderá com prazer.
Nave industrial en renta ubicada en Chihuahua, cuenta con una construcción de 8,042 m2 y todos los servicios, cuenta con una ubicación estratégica, cercana al centro de distribución Mercado Libre y planta Motorola, mano de obra cercana.

ESPECIFICACIONES DE CONSTRUCCIÓN

-Espacio de construcción: 8,021 m2.
-Terreno: 19,993 m2.
-Altura libre: 9.7 m.
-Tamaño de la bahía: 15.24 m X 15.24 m / 22.86 m X 15.24 m / 13.10 m X 15.24 m / 17.98 m X 15.24 m.
-Tipo de construcción: Metal y concreto prefabricado.
-Sistema de techo: KR-18 Galv. Cal. 22.
-Espesor de piso: 6"
-Andenes: 4
-Rampa: 1
-Estacionamiento: 91 cajones.
-Estacionamiento para tráiler: 6
-Iluminación: Iluminación: Led 40 FC
-Iluminación natural: 3 %.


SERVICIOS :
-Sistema contra incendios: Gabinetes para mangueras.
-Climatización: Ventilación 3 ACH
-Agua: Disponible.
-Gas LP: Disponible.
-Teléfono: Disponible.
-Electricidad: Transformador 1000 KVA

ÁREAS COMUNES
-Seguridad del parque.
-Alumbrado público y vías de acceso.
-FPS compartidos.
-Subestación Eléctrica Compartida.
-Agua doméstica compartida.

PRECIO DE SALIDA DE $7.7 USD POR m2, en base a propuesta, más mantenimiento más IVA.

Precios, características y fotografías deben ser consideradas meramente informativas y sujetas a cambio sin previo aviso. Para una cotización más precisa y actualizada, por favor contáctenos, uno de nuestros asesores especializados le atenderá con todo gusto.

Comodidades
Geral
  • Segurança 24 horas
  • Localização
    Link de cópia

    Av. Transformación, Villas del Rey I, II y III, Chihuahua, Chihuahua

    Vídeos
    Grupo Villanueva
    Grupo Villanueva Real Estate
    Enviar mensagem