Listas

ARMAZÉM INDUSTRIAL PARA ALUGUEL EM APODACA, NUEVO LEÓNNAVE INDUSTRIAL EN RENTA EN APODACA, NUEVO LEÓN

Salvou Salve
1 de 6
2 de 6
3 de 6
4 de 6
5 de 6
6 de 6
1 de 6
1 / 6
2 de 6
2 / 6
3 de 6
3 / 6
4 de 6
4 / 6
5 de 6
5 / 6
6 de 6
6 / 6
Fechar
ID: EB-UF5866
Publicados
$7,05 MXN por m²
Para alugar

ARMAZÉM INDUSTRIAL PARA ALUGUEL EM APODACA, NUEVO LEÓNNAVE INDUSTRIAL EN RENTA EN APODACA, NUEVO LEÓN

Prédio industrial em Parque Industrial Apodaca, Apodaca

Asesores Terraquio
Terraquio Inmobiliaria
117 vagas de estacionamento
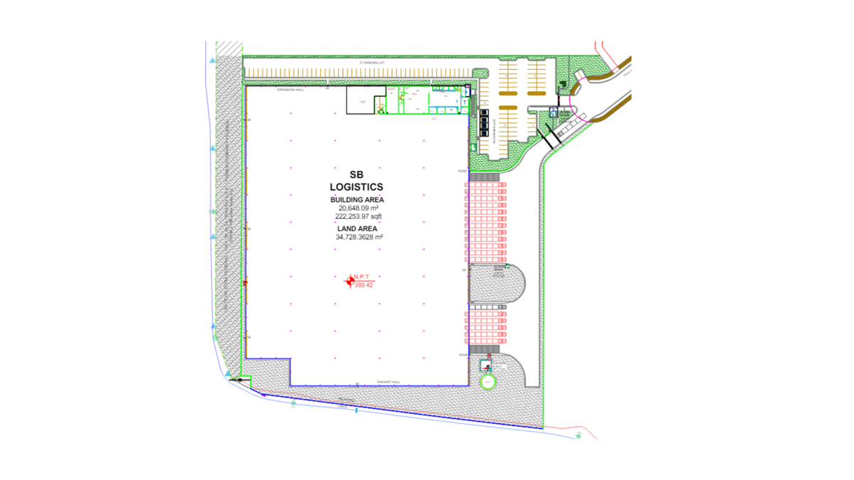
20.648 m² de área total
34.728 m² Tamanho do lote
Descrição
Veja originalVeja em português

Nave AAA equipada en Renta de 20,648m2 en parque en zona Aeropuerto, en Apodaca N.L., con excelentes vías de comunicación e infraestructura de primera, lista para entrega ya con equipamiento básico.

ESPECIFICACIONES:
- Terreno: 34,728 m2
- Construcción: 20,648 m2
- Dimensiones de la bahía: 15.24 m x 24.81 m
- Tragaluces: 4% aprox.
- Altura libre: 9.75 m | 32’
- Area de Oficinas: 790 m2
- Cubierta: Cubierta metálica
- Muros: concreto pre colado
- Espesor de Firme: 15cm / 6"
- Estructura: Marco rígido de acero
- Subestación: 300 kva´s
- Sistema de ventilación: 3CPH
- Docks: 17 + 1
- Rampas: 2 rampa de concreto
- Estacionamiento: 117 cajones
- Caseta de seguridad: 9.90m2
- Sistema vs. Incendio: Sistema con mangueras listo
para usarse.

VENTAJAS:
- Aeropuerto a menos de 7 min manejando
-Carreteras a: Aeropuerto Monterrey, Saltillo-Monclova, Reynosa-McAllen, Laredo Tx., y Cd. de México.
- Acceso controlado 24/7: Bardeado
- Uso: Manufactura, ensamble y distribución
- Transporte. público
- Infraestructura: la mejor disponible
- Mano de Obra: cercana y con fácil acceso

INFRAESTRUCTURA DEL PARQUE:
- Agua (red del parque)
- Drenaje (red del parque)
- Voz y datos (TELMEX)
- Energía:
- Gas:
- CCTV : 24/7

*Precios, características y fotografías deben ser consideradas meramente informativas y sujetas a cambio sin previo aviso. Para una cotización más precisa y actualizada, por favor contáctenos, uno de nuestros asesores especializados le atenderá con todo gusto.

Contacto: 8180888551

Comodidades
Exterior
  • Andén
  • Loading dock
  • Geral
  • Rampas
  • Segurança 24 horas
  • Localização
    Link de cópia

    Parque Industrial, Parque Industrial Apodaca, Apodaca, Nuevo León

    Asesores Terraquio
    Terraquio Inmobiliaria
    Enviar mensagem