Quadros

Local para Aluguel na Viaduto Miguel Aleman, Bairro Buenos AiresLocal en Renta sobre Viaducto Miguel Aleman, Col. Buenos Aires

Salvou Salve
1 de 8
2 de 8
3 de 8
4 de 8
5 de 8
6 de 8
7 de 8
8 de 8
1 de 8
1 / 8
2 de 8
2 / 8
3 de 8
3 / 8
4 de 8
4 / 8
5 de 8
5 / 8
6 de 8
6 / 8
7 de 8
7 / 8
8 de 8
8 / 8
Fechar
ID: EB-VC4897
Publicados
$130.000 MXN
Para alugar

Local para Aluguel na Viaduto Miguel Aleman, Bairro Buenos AiresLocal en Renta sobre Viaducto Miguel Aleman, Col. Buenos Aires

Local em Buenos Aires, Cuauhtémoc

SKG ASESORES INMOBILIARIOS
SKG Asesores Inmobiliarios
425 m² de área total
Descrição
Veja originalVeja em português

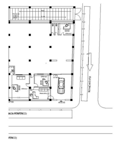
Imóvel comercial para aluguel na Viaduto Miguel Alemán, localizado na Viaduto Miguel Alemán, Colônia Buenos Aires, Cidade do México, entre Eje Central Lázaro Cárdenas e Dr. Vértiz. Área com alto fluxo de veículos e excelente conectividade.

O imóvel conta com 425 m² de superfície, com possibilidade de dividir a área conforme as necessidades do locatário. Destaca-se pela sua altura de 4 metros e 20 metros de frente direto sobre o Viaduto, com opção de habilitar cortinas, o que proporciona grande visibilidade comercial.

Dispõe de escritórios e banheiros habilitados, bem como flexibilidade para adequar os espaços internos conforme o ramo do negócio. Adicionalmente, existe a possibilidade de utilizar uma parte do local como área de estacionamento.

Ideal para empresas, comércios ou serviços que buscam localização estratégica, amplitude e exposição comercial.

Aluguel mensal: $130,000.00 mais IVA.
Local comercial en renta sobre Viaducto Miguel Alemán, ubicado en Viaducto Miguel Alemán, Colonia Buenos Aires, Ciudad de México, entre Eje Central Lázaro Cárdenas y Dr. Vértiz. Zona con alto flujo vehicular y excelente conectividad.

El inmueble cuenta con 425 m² de superficie, con posibilidad de dividir el área según las necesidades del arrendatario. Destaca por su altura de 4 metros y 20 metros de frente directo sobre Viaducto, con opción de habilitar cortinas, lo que brinda gran visibilidad comercial.

Dispone de oficinas y baños habilitados, así como flexibilidad para adecuar los espacios interiores conforme al giro del negocio. Adicionalmente, existe la posibilidad de utilizar una parte del local como área de estacionamiento.

Ideal para empresas, comercios o servicios que buscan ubicación estratégica, amplitud y exposición comercial.

Renta mensual: $130,000.00 más IVA.

Localização

Buenos Aires, Cuauhtémoc, Cidade do México

Enviar mensagem