Quadros

Local comercial no Viaduto Miguel Alemán, Buenos AiresLocal comercial en Viaducto Miguel alemán Col Buenos Aires

Salvou Salve
1 de 3
2 de 3
3 de 3
1 de 3
1 / 3
2 de 3
2 / 3
3 de 3
3 / 3
Fechar
ID: EB-UN2870
Publicados
$170.000 MXN
Para alugar

Local comercial no Viaduto Miguel Alemán, Buenos AiresLocal comercial en Viaducto Miguel alemán Col Buenos Aires

Local em Buenos Aires, Cuauhtémoc

3 lavabos
425 m² de área total
425 m² Tamanho do lote
Manutenção: BH0265
Descrição
Veja originalVeja em português

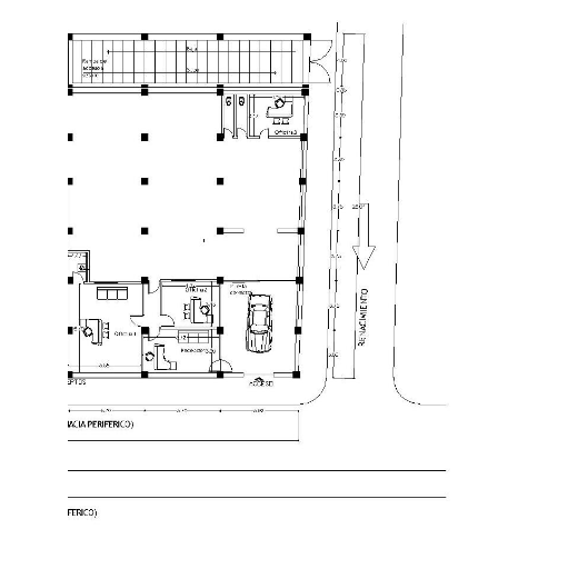
Local comercial para ALUGUEL no Viaduto Miguel Alemán
Excelente local comercial para aluguel localizado no Viaduto Miguel Alemán ao nível da rua dentro de um edifício de 64 apartamentos, em uma das principais vias com maior fluxo de veículos da Cidade do México.

Características do imóvel:
Área total: 425 m²
Altura: 4 metros
Frente comercial: 20 metros no Viaduto
Banheiros e escritórios equipados
Opção de abrir cortinas adicionais para maior visibilidade e acesso
Distribuição funcional que permite destinar a parte posterior como área de estacionamento ou zona de carga e descarga
Graças à sua excelente localização, amplitude e visibilidade, este local é ideal para negócios de exibição, lojas âncoras, showrooms ou serviços automotivos.
O preço publicado pode estar sujeito a alterações sem aviso prévio.
Local comercial RENTA en Viaducto Miguel Alemán
Excelente local comercial en renta ubicado sobre Viaducto Miguel Alemán a pie de calle dentro de un edificio de 64 departamentos , sobre una de las vías principales y con mayor afluencia vehicular de la Ciudad de México.

Características del inmueble:
Superficie total: 425 m²
Altura: 4 metros
Frente comercial: 20 metros sobre Viaducto
Baños y oficinas habilitados
Opción de abrir cortinas adicionales para mayor visibilidad y acceso
Distribución funcional que permite destinar la parte posterior como área de estacionamiento o zona de carga y descarga
Gracias a su excelente ubicación, amplitud y visibilidad, este local es ideal para negocios de exhibición, tiendas ancla, showrooms o servicios automotrices.
El precio publicado puede estar sujeto a cambios sin previo aviso.

Comodidades
Geral
  • Storge Unit
  • Única história
  • Localização

    Buenos Aires, Cuauhtémoc, Cidade do México

    Enviar mensagem