Listas

Edifício à venda em PolancoEdificio en venta en Polanco

Salvou Salve
1 de 11
2 de 11
3 de 11
4 de 11
5 de 11
6 de 11
7 de 11
8 de 11
9 de 11
10 de 11
11 de 11
1 de 11
1 / 11
2 de 11
2 / 11
3 de 11
3 / 11
4 de 11
4 / 11
5 de 11
5 / 11
6 de 11
6 / 11
7 de 11
7 / 11
8 de 11
8 / 11
9 de 11
9 / 11
10 de 11
10 / 11
11 de 11
11 / 11
Fechar
ID: EB-UK8606
Publicados
$44.900.000 MXN
À venda

Edifício à venda em PolancoEdificio en venta en Polanco

Edifício em Polanco V Sección, Miguel Hidalgo

640 m² de área total
172 m² Tamanho do lote
Ano de construção: 2023
Número de andares no prédio.: 4
Descrição
Veja originalVeja em português

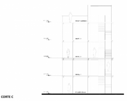
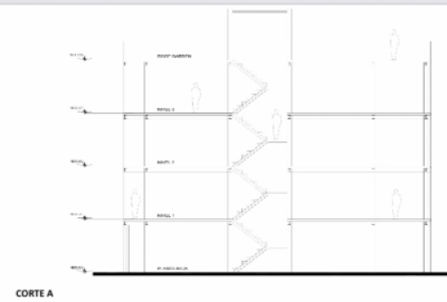
Edifício novo à venda de 640 m2 mais 160 m2 de terraço, quatro níveis de plantas livres, módulo de banheiros por nível, terraço por nível.
Nível PB: Planta de 172m2 com terraço e banheiro.
Níveis 1, 2 e 3: Plantas de 172m2 com terraço e banheiro.
Terraço: Planta de 172m2 com banheiro.
Edificio nuevo en venta de 640 m2 más 160 m2 de roof garden, cuatro niveles de plantas libres, módulo de baños por nivel, terraza por nivel.
Nivel PB: Planta de 172m2 con terraza y baño.
Nivel 1,2 y 3 Plantas de 172m2 con terraza y baño.
Roof Garden: Planta de 172m2 con baño.

Localização
Link de cópia

Mariano Escobedo, Polanco V Sección, Miguel Hidalgo, Cidade do México

Enviar mensagem