Listas

Rento Bodegas Comerciales en Tultepec

Guardado Guardar
1 de 3
2 de 3
3 de 3
1 de 3
1 / 3
2 de 3
2 / 3
3 de 3
3 / 3
Cerrar
ID: EB-VM3978
Publicado
$180 MXN por m²
En Renta

Rento Bodegas Comerciales en Tultepec

Bodega industrial en Centro, Tultepec

30 estacionamientos
19,416 m² de construcción
28,678 m² de terreno
Año de construcción: 2026
Mantenimiento: 12.50 por m2
Descripción

Precio de salida - $180 m2 (puede bajar ) mantenimiento - $12.5 x m2

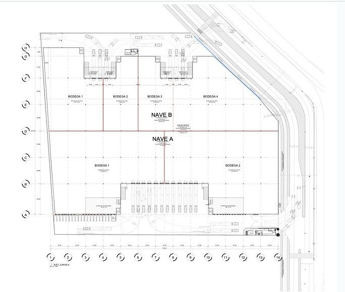
NAVE A — Superficie Total: 10,080.679 m2
Mezzanine: 731.582 m2

Bodega 1 5,009.682 Mezzanine m2 365.791 Subtotal m2 5,375.473 m2
Bodega 2 5,070.997 Mezzanine m2 365.791 Subtotal m2 5,436.788 m2

NAVE B — Superficie Total: 9,335.552 m2
Mezzanine: 448.844 m2

Bodega 1 2,731.100 m2 Mezzanine 134.300 Subtotal m2 2,865.400 m2
Bodega 2 1,540.690 Mezzanine m2 90.122 Subtotal m2 1,630.812 m2
Bodega 3 1,540.690 Mezzanine m2 90.122 Subtotal m2 1,630.812 m2
Bodega 4 3,523.072 Mezzanine m2 134.300 Subtotal m2 3,657.372 m2

ESPECIFICACIONES TÉCNICAS

Estructura Metálica
Piso Concreto MR-42
Altura Libre 11 metros
Cubierta
Lámina engargolada c/ aislamiento termo-acústico
Muros Perimetrales
Concreto tipo TLP UP
Iluminación Natural 8%
Estacionamiento 30 cajones
Acceso Controlado
Acometidas Hidráulica, sanitaria y eléctrica

Ubicación:
Av. Bicentenario
Vialidad principal con acceso directo. Tránsito de carga pesada, cajas de 53'.
→ Circuito Exterior Mexiquense
Autopista de cuota conectando principales corredores industriales.
→ Av. Joaquín Montenegro
Vialidad secundaria con rutas alternas de acceso

CONDICIONES GENERALES
Superficies aproximadas sujetas a medición definitiva.
Alineamiento regulado conforme a ALI/0089/2024.
Proyecto diseñado para operaciones logísticas y de distribución.
Posibilidad de arrendamiento por nave completa o por bodega individual.
Acceso controlado con caseta de vigilancia.

Amenidades
Exterior
  • Facilidad para estacionarse
  • General
  • Seguridad 24 horas
  • Ubicación

    Centro, Tultepec, Estado de México

    Enviar mensaje