Nave en Renta en Reynosa, Tamps.

Guardado Guardar
1 de 5
2 de 5
3 de 5
4 de 5
5 de 5
1 de 5
1 / 5
2 de 5
2 / 5
3 de 5
3 / 5
4 de 5
4 / 5
5 de 5
5 / 5
Cerrar
ID: EB-DA1201
Publicado
US$ 67,827
En Renta

Nave en Renta en Reynosa, Tamps.

Bodega industrial en Ciudad Reynosa Centro, Reynosa

José LEAL
Anunciado por José LEAL
ADN Realtors
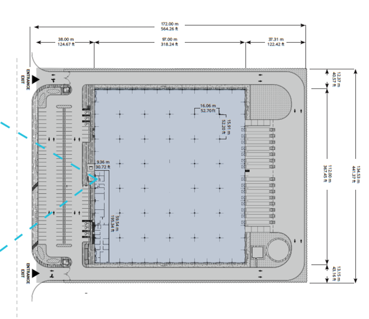
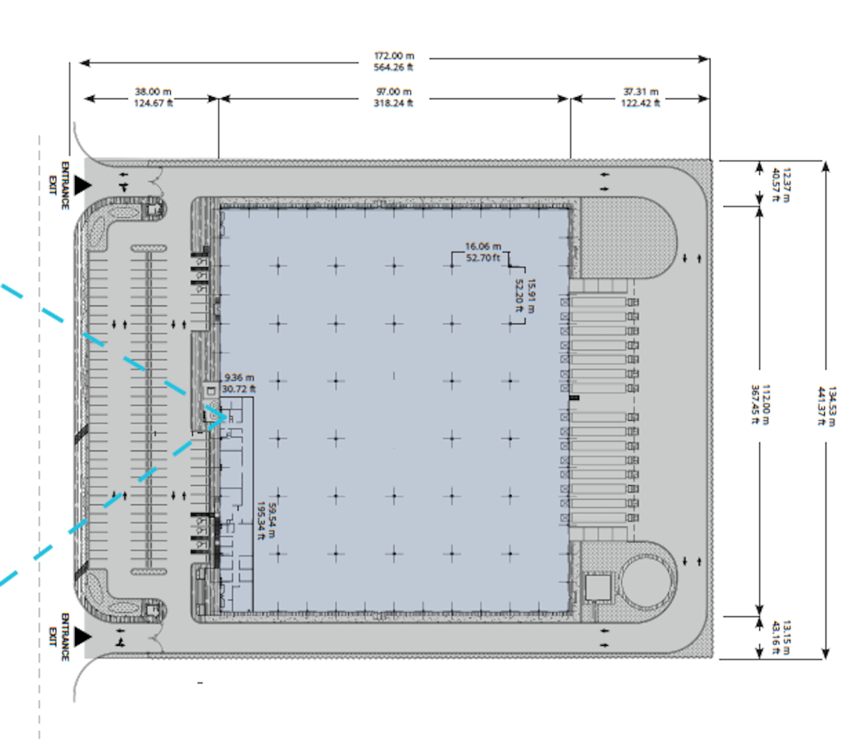
129 estacionamientos
10,864 m² de construcción
23,818 m² de terreno
172 m de largo
134.5 m de frente
Mantenimiento: US$0.52/m2+iva
Descripción

460m2 DE OFICINAS
NAVE SECCIONABLE EN 2
BAHIAS DE 19.91m x 16.07m
HASTA 15 ANDENES
2 RAMPAS
8.54m DE ALTURA LIBRE
ROCIADORES VS INCENDIO
VENTILACION DE 3CPH
ALUMBRADO LED
MUROS DE CONCRETO
ILUMINACION NATURAL AL 5%
TRANSFORMADOR DE 500kva
CASETA DE VGILANCIA
NO BROKERS

Amenidades
Exterior
  • Facilidad para estacionarse
  • Andén
  • Muelle de carga
  • Patio
  • General
  • Seguridad 24 horas
  • Fraccionamiento privado
  • Circuito cerrado
  • Oficina
  • Portero
  • Rampas
  • Ubicación
    Copiar enlace

    Ciudad Reynosa Centro, Reynosa, Tamaulipas

    José LEAL
    José LEAL
    ADN Realtors
    Enviar mensaje