Boards

Boat for Rent in Reynosa, Tamps.Nave en Renta en Reynosa, Tamps.

Saved Save
1 of 5
2 of 5
3 of 5
4 of 5
5 of 5
1 of 5
1 / 5
2 of 5
2 / 5
3 of 5
3 / 5
4 of 5
4 / 5
5 of 5
5 / 5
Close
ID: EB-DA1201
Published
US$ 67,827
For Rent

Boat for Rent in Reynosa, Tamps.Nave en Renta en Reynosa, Tamps.

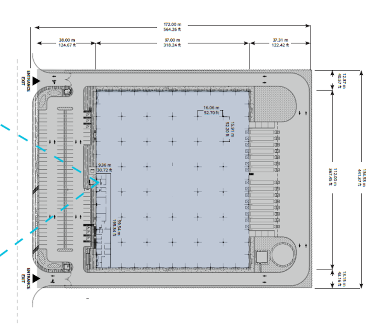
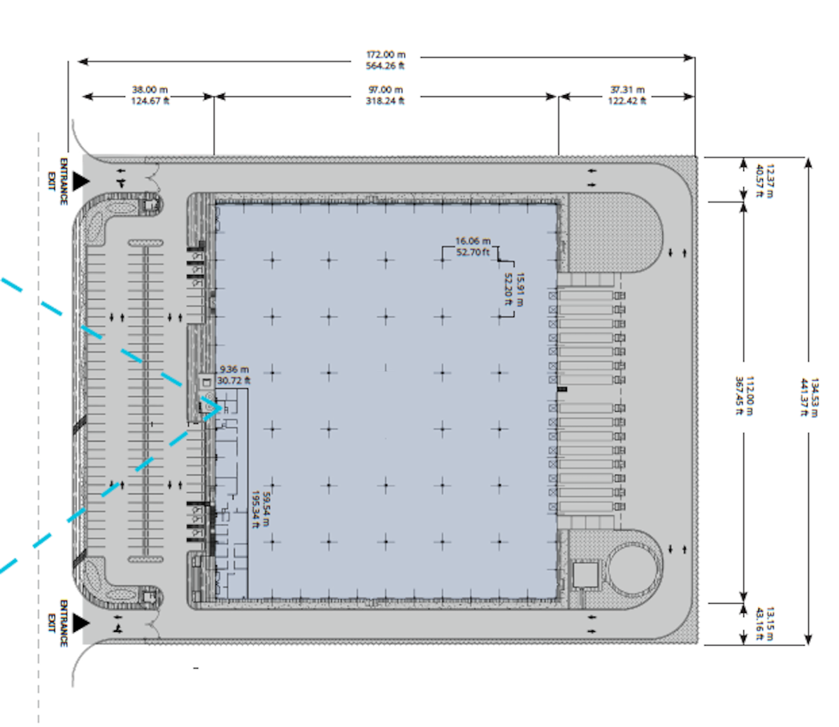
Industrial Warehouse in Ciudad Reynosa Centro, Reynosa

José LEAL
Published by José LEAL
ADN Realtors
129 parking spaces
10,864 m² total space
23,818 m² Lot Size
172 m long
134.5 m lot width
Maintenance: US$0.52/m2+iva
Description
View originalView in English

460m2 OF OFFICES
DIVISIBLE WAREHOUSE IN 2
BAYS OF 19.91m x 16.07m
UP TO 15 DOCKS
2 RAMPS
8.54m OF FREE HEIGHT
FIRE SPRINKLERS
VENTILATION OF 3CPH
LED LIGHTING
CONCRETE WALLS
NATURAL LIGHTING AT 5%
500kva TRANSFORMER
SECURITY BOOTH
NO BROKERS
460m2 DE OFICINAS
NAVE SECCIONABLE EN 2
BAHIAS DE 19.91m x 16.07m
HASTA 15 ANDENES
2 RAMPAS
8.54m DE ALTURA LIBRE
ROCIADORES VS INCENDIO
VENTILACION DE 3CPH
ALUMBRADO LED
MUROS DE CONCRETO
ILUMINACION NATURAL AL 5%
TRANSFORMADOR DE 500kva
CASETA DE VGILANCIA
NO BROKERS

Amenities
Exterior
  • Street parking
  • Platform
  • Loading dock
  • Patio
  • General
  • 24 Hour Security
  • Private housing development
  • Closed-Circuit Security System
  • Office
  • Door man
  • Ramps
  • Location
    Copy link

    Ciudad Reynosa Centro, Reynosa, Tamaulipas

    José LEAL
    José LEAL
    ADN Realtors
    Send message