1 de 10
2 de 10
3 de 10
4 de 10
5 de 10
6 de 10
7 de 10
8 de 10
9 de 10
10 de 10
1 de 10
1 / 10
2 de 10
2 / 10
3 de 10
3 / 10
4 de 10
4 / 10
5 de 10
5 / 10
6 de 10
6 / 10
7 de 10
7 / 10
8 de 10
8 / 10
9 de 10
9 / 10
10 de 10
10 / 10
Cerrar
ID: EB-UL6562
Publicado
$3,995,000
En Venta

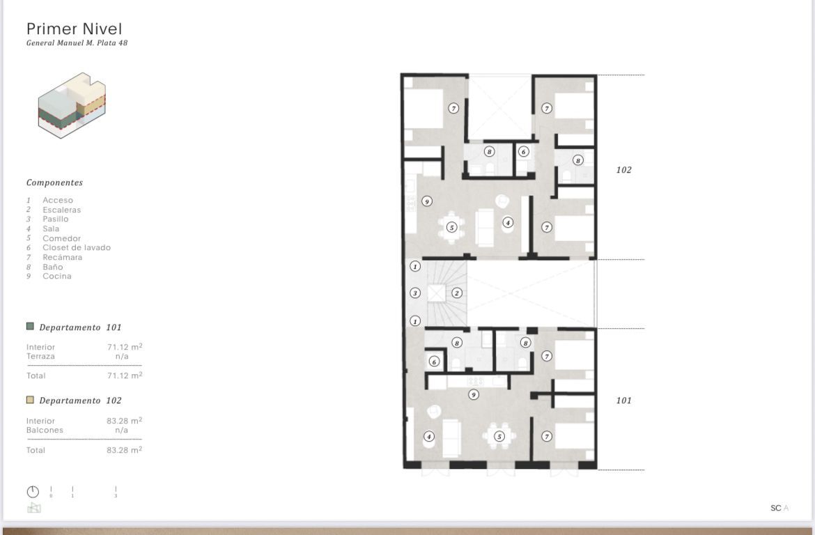
DEPARTAMENTO 201

Departamento en Observatorio, Miguel Hidalgo

Valentinos Home
Anunciado por Valentinos Home
Inmobiliaria de Valentinos Home
2 recámaras
2 baños
1 estacionamientos
71 m² de construcción
Año de construcción: En construcción
Descripción

🏙️ Preventa · Departamento 201 · General Manuel Plata, Col. Observatorio · Miguel Hidalgo

Precio: $3,995,000 MXN
Entrega estimada: Quinto bimestre de 2026
Superficie total: 71 m² habitables
Ubicación: Exterior · Segundo piso

✨ Características principales

2 recámaras amplias con excelente iluminación natural

2 baños completos con acabados modernos

Cocina integral abierta con barra

Estancia con ventanal y vista exterior

1 lugar de estacionamiento

Ubicación exterior con gran ventilación y luz natural

Diseño moderno, funcional y con excelente distribución

📍 Ubicación

En General Manuel Plata, colonia Observatorio, Miguel Hidalgo.
Zona con creciente desarrollo y alta plusvalía, con rápida conexión a Constituyentes, Santa Fe y Tacubaya.
Cerca de servicios, escuelas y vías principales.

💫 Ventajas de invertir en preventa

Precio preferencial y facilidades de pago

Entrega programada para 2026

Plusvalía proyectada en zona de crecimiento

Ideal para inversión o para vivir con confort y ubicación estratégica

Opciones de financiamiento
  • Créditos bancariosMortgage
  • INFONAVIT / COFINAVIT

Ubicación
Copiar enlace

Observatorio, Miguel Hidalgo, Ciudad de México

Valentinos Home
Valentinos Home
Inmobiliaria de Valentinos Home
Enviar mensaje