1 de 10
2 de 10
3 de 10
4 de 10
5 de 10
6 de 10
7 de 10
8 de 10
9 de 10
10 de 10
1 de 10
1 / 10
2 de 10
2 / 10
3 de 10
3 / 10
4 de 10
4 / 10
5 de 10
5 / 10
6 de 10
6 / 10
7 de 10
7 / 10
8 de 10
8 / 10
9 de 10
9 / 10
10 de 10
10 / 10
Cerrar
ID: EB-UL6559
Publicado
$4,595,000
En Venta

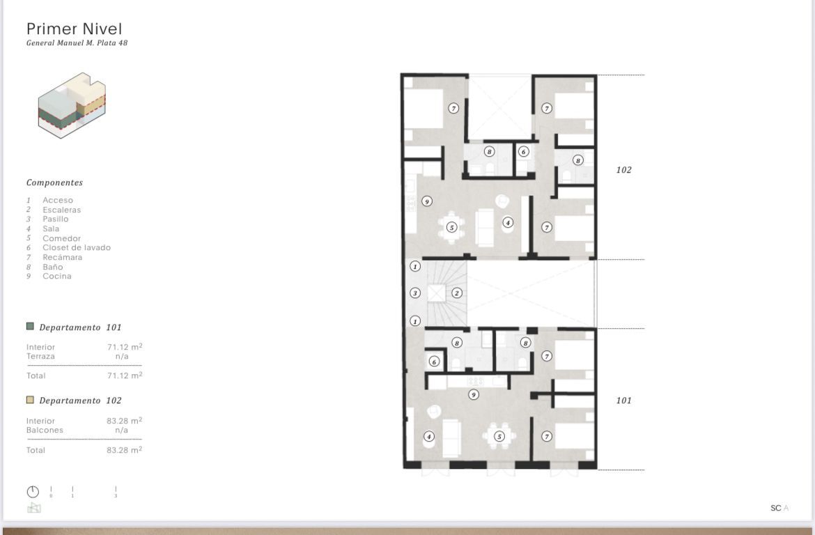
DEPARTAMENTO 102

Departamento en Observatorio, Miguel Hidalgo

Valentinos Home
Anunciado por Valentinos Home
Inmobiliaria de Valentinos Home
3 recámaras
2 baños
1 estacionamientos
83 m² de construcción
Año de construcción: En construcción
Descripción

🏙️ Preventa · Departamento 102 · General Manuel Plata, Col. Observatorio · Miguel Hidalgo

Precio: $4,595,000 MXN
Entrega estimada: Quinto bimestre de 2026
Superficie total: 83 m²
Ubicación: Interior · Primer piso

✨ Características principales

3 recámaras amplias con buena iluminación natural

2 baños completos con acabados contemporáneos

Cocina integral abierta con barra

Estancia espaciosa con distribución funcional

1 lugar de estacionamiento

Ubicación interior, ideal para quienes buscan privacidad y tranquilidad

Diseño moderno, cómodo y pensado para familias o inversión

📍 Ubicación

Ubicado sobre General Manuel Plata, en la colonia Observatorio, Miguel Hidalgo.
Zona con excelente conectividad hacia Constituyentes, Santa Fe y Tacubaya, con amplia oferta de transporte, escuelas y servicios.
Área en constante desarrollo con alta proyección de plusvalía.

💫 Beneficios de invertir en preventa

Precio preferencial y facilidades de pago

Entrega garantizada en 2026

Alta plusvalía proyectada

Ideal para quienes buscan invertir o estrenar vivienda con ubicación estratégica

📞 Valentinos Home
Anticipa tu próxima propiedad hoy.
Agenda tu cita y conoce los beneficios de invertir en preventa.

Opciones de financiamiento
  • Créditos bancariosMortgage
  • INFONAVIT / COFINAVIT

Ubicación
Copiar enlace

Observatorio, Miguel Hidalgo, Ciudad de México

Valentinos Home
Valentinos Home
Inmobiliaria de Valentinos Home
Enviar mensaje