Listas
1 de 6
2 de 6
3 de 6
4 de 6
5 de 6
6 de 6
1 de 6
1 / 6
2 de 6
2 / 6
3 de 6
3 / 6
4 de 6
4 / 6
5 de 6
5 / 6
6 de 6
6 / 6
Cerrar
ID: EB-VI1366
Publicado
$306,240 MXN
En Renta

BODEGA INDUSTRIAL EN RENTA (DISPONIBLE EN MAYO)

Bodega industrial en Parque Industrial Martel de Santa Catarina, Santa Catarina

Bea Leal
WALLS & PEOPLE
22 estacionamientos
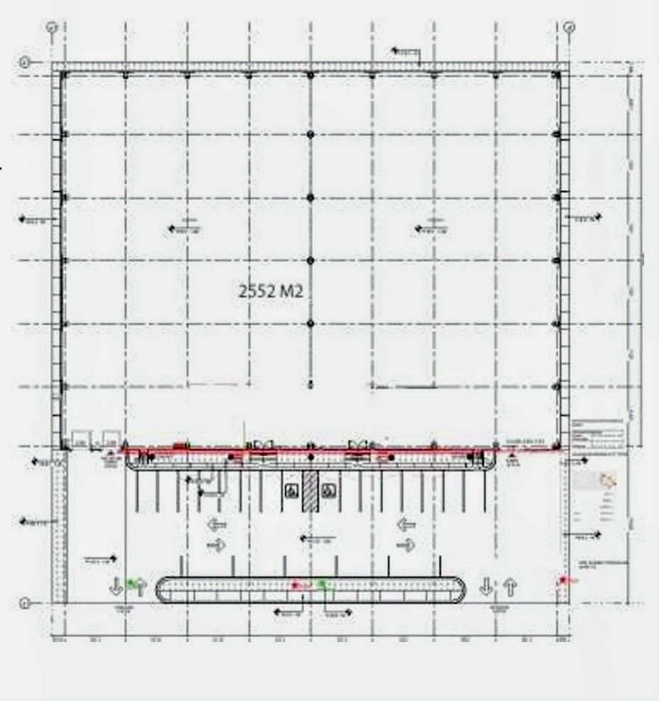
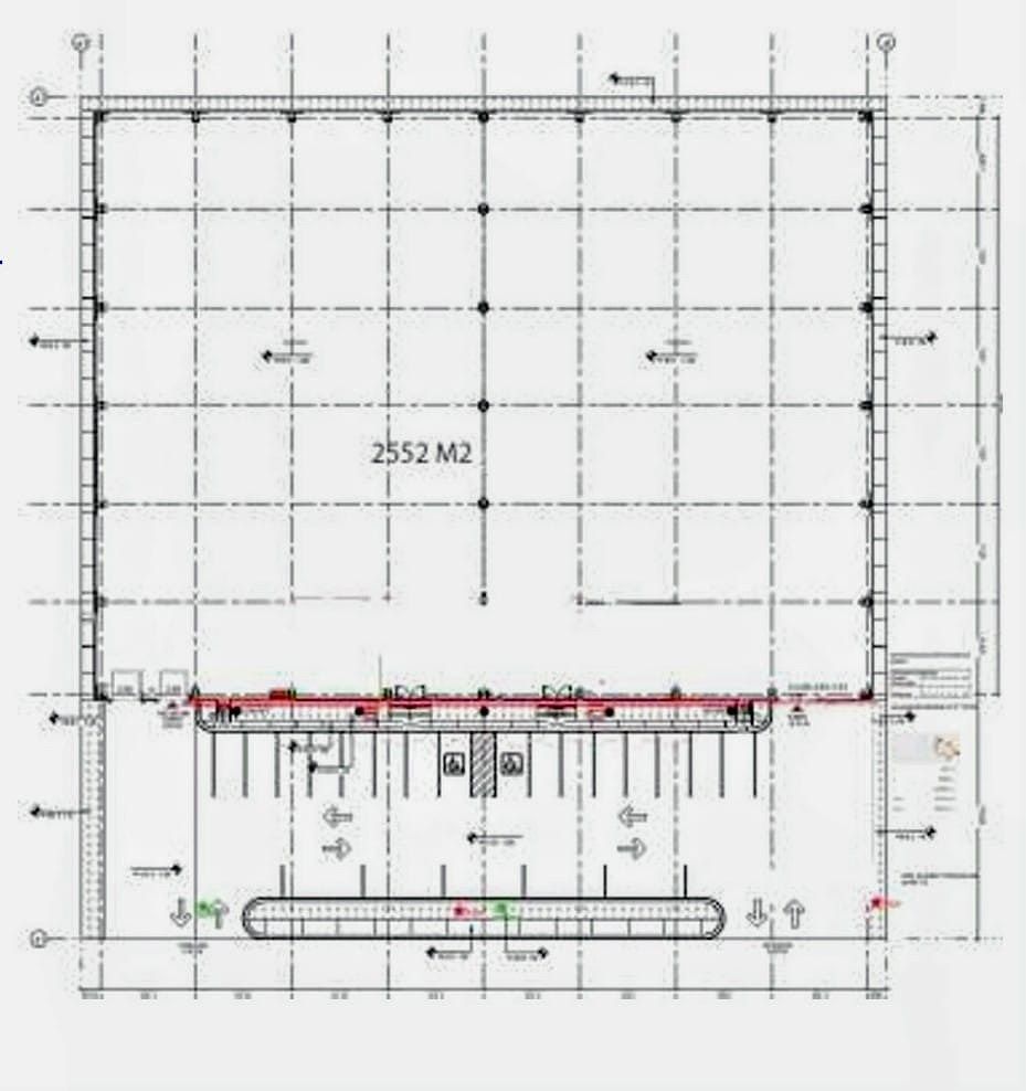
2,552 m² de construcción
3,600 m² de terreno
Año de construcción: En construcción
Cantidad de pisos en el edificio: 1
Mantenimiento: 3240
Descripción

NAVE INDUSTRIAL PREMIUM | "BUILD TO SUIT"

Ubicación Estratégica en zona Comercial de Alta Plusvalía (Cercano a HEB, Soriana y Hotel City Express).

Esta propiedad destaca por su versatilidad y eficiencia energética, ideal para empresas que buscan proyectar una imagen corporativa impecable y una logística fluida.

DIMENSIONES Y CAPACIDAD
- Terreno Total: 3,600 m²
- Área de Nave: 2,552 m² ($27,469 ft)
- Estacionamiento: 22 cajones exclusivos (11 por módulo).
- Altura Operativa: De 9.00 mts (mínima) hasta 11.50 mts (máxima).

ESPECIFICACIONES DE CONSTRUCCIÓN:
Piso de Alta Resistencia: Firmes de 15 cm (F'C = 250kg/cm²) armado con varilla de 3/4” y juntas frías.
Cubierta Térmica: Lámina cal. 24 engargolada con aislante de fibra de vidrio (3") para control de temperatura.

*Muros y Fachada: Concreto prefabricado con ventanería perimetral y louvers de aluminio para ventilación superior.
*Iluminación: Sistema de última generación con lámparas LED UFO.

LOGÍSTICA DE ALTO NIVEL:
Andenes: 2 High Dock (1.20 mts) equipados con niveladores Merik de 30,000 lbs.
Accesos: 2 rampas de concreto con cortinas metálicas de 4.5 mts.

Seguridad Operativa: Rampa de acceso directo a nave con reja y cortinas flotantes.

OFICINAS PERSONALIZADAS (Build to Suit) se diseña el espacio administrativo según las necesidades específicas.

Posibles acabados: Pisos de porcelanato, ventanería de 6 mm y plafones con iluminación LED empotrada.
Confort: Equipamiento con Mini-splits (frío/calor).
Tecnología: Preparación integral para voz, datos y sistema de alarma.

VENTAJAS DEL PARQUE E INFRAESTRUCTURA:
- Energía: Factibilidad de hasta 500 kVA.
- Entorno Profesional: Jardinería con palmeras, riego automático y pasto sintético (bajo mantenimiento).
- Seguridad: Acceso controlado 24/7 y dos entradas al parque para facilitar maniobras en calles amplias.

Conectividad: Ubicación privilegiada con servicios hoteleros y comerciales a pocos minutos.

Nota: Las oficinas se cotizan por separado para ajustarse al metraje y distribución que su proyecto requiera.

Requisitos de contrataciòn:
- UN MES DE DEPOSITO
- CONTRATO MINIMO: TRES AÑOS
- SEGURO DE EDIFICIO Y RESPONSABILIDAD CIVIL
- AVAL CON PROPIEDADES EN MONTERREY O FIANZA.

Los precios pueden variar sin previo aviso.
Precios mas impuestos correspondientes.

Amenidades
Exterior
  • Andén
  • Facilidad para estacionarse
  • General
  • Aire acondicionado
  • Fraccionamiento privado
  • Ubicación
    Copiar enlace

    Carretera a Saltillo, Parque Industrial Martel de Santa Catarina, Santa Catarina, Nuevo León

    Bea Leal
    WALLS & PEOPLE
    Enviar mensaje