Boards

IBP 200 INDUSTRIAL WAREHOUSEBODEGA INDUSTRIAL IBP 200

Saved Save
1 of 7: Exterior
Exterior
2 of 7: Interior Nave
Interior Nave
3 of 7: Techo
Techo
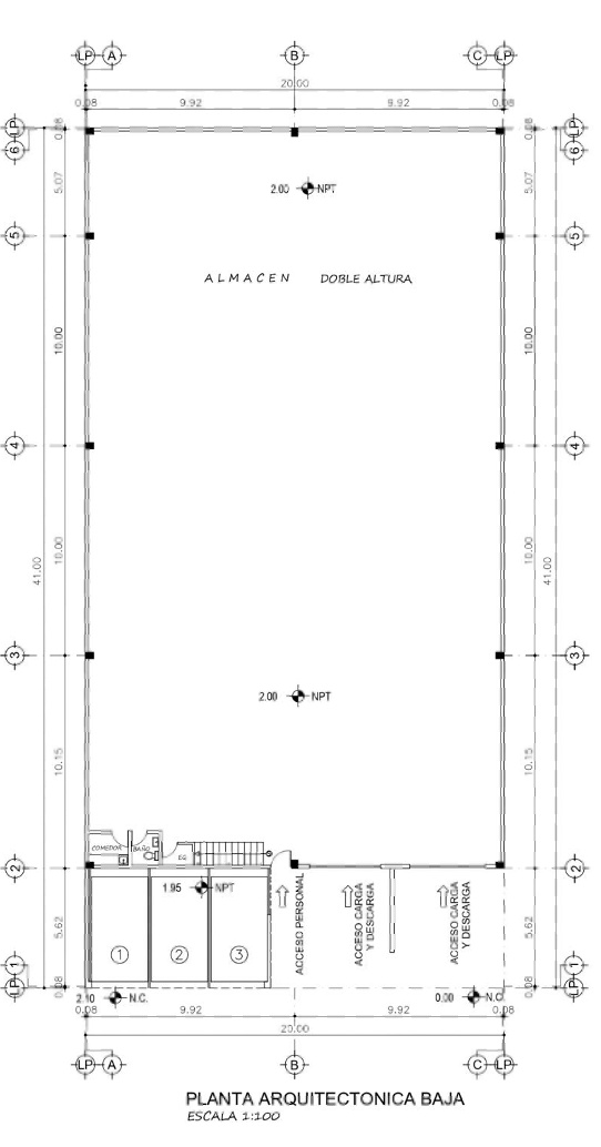
4 of 7: Layout Nave
Layout Nave
5 of 7: Layout Oficina
Layout Oficina
6 of 7: Baño
Baño
7 of 7: Oficina
Oficina
1 of 7: Exterior
1 / 7
Exterior
2 of 7: Interior Nave
2 / 7
Interior Nave
3 of 7: Techo
3 / 7
Techo
4 of 7: Layout Nave
4 / 7
Layout Nave
5 of 7: Layout Oficina
5 / 7
Layout Oficina
6 of 7: Baño
6 / 7
Baño
7 of 7: Oficina
7 / 7
Oficina
Close
ID: EB-UN9614
Published
$11,750,000 MXN
For Sale

IBP 200 INDUSTRIAL WAREHOUSEBODEGA INDUSTRIAL IBP 200

Industrial Warehouse in Parque 200, Santa Catarina

Northland Partners
Northland Partners
3 parking spaces
829 m² total space
820 m² Lot Size
Year Built: 2024
Description
View originalView in English

General Infrastructure:
- 30 KVA three-phase electrical substation
- Water tank and hydropneumatic equipment
- Roof with KR-18 sheet that prevents leaks
- Acrylic sheet that allows natural lighting inside
- Walls with Uninlock type finish,
- Concrete slab pre-mixed f’c = 250 kg/cm², reinforced with 3/8” rebar, 15 cm thick and joints sealed with semi-rigid epoxy

Warehouse Area
- Spacious area with excellent natural lighting and LED lights
- Ramp with vehicle access
- Loading and unloading dock with leveling ramp
- Kitchenette
- Bathroom
- Room for hydraulic equipment

Office Area
- Open general office
- Private office
- Kitchenette
- General bathroom
- Private bathroom
- Park Services and Amenities
- 24/7 security booth and access control
- Business Center for tenant use
Infraestructura General:
-Subestación eléctrica 30 KVA trifásica
-Cisterna y equipo hidroneumático
-Cubierta con lámina KR-18 que evita filtraciones
-Lámina acrílica que permite iluminación natural en el interior
-Muros con acabado tipo Uninlock,
-Firme de concreto premezclado f’c = 250 kg/cm², armado con varilla de 3/8”, espesor de 15 cm y juntas selladas con epóxico semirrígido

Área de Almacén
-Espacio amplio con excelente iluminación natural y luminarias LED
-Rampa con acceso vehicular
-Andén de carga y descarga con rampa niveladora
-Cocineta
-Baño
-Cuarto para equipo hidráulico

Área de Oficinas
-Oficina general abierta
-Oficina privada
-Cocineta
-Baño general
-Baño privado
-Servicios y Amenidades del Parque
-Caseta de vigilancia y control de acceso 24/7
-Business Center para uso de inquilinos

Amenities
Exterior
  • Cistern
  • Covered parking
  • General
  • Air conditioning
  • Alarm
  • Location
    Copy link

    Parque 200, Santa Catarina, Nuevo León

    Northland Partners
    Northland Partners
    Send message