Industrial Building in Ciudad Industrial, Tijuana
Industrial Warehouse for rent, Otay IndustrialNave Industrial en renta, Otay Industrial
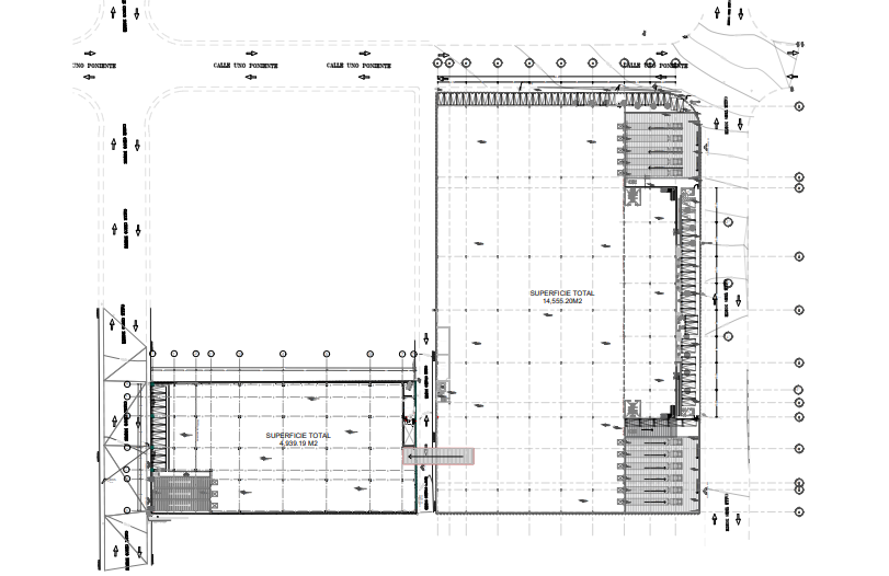
WAREHOUSE for Rent (5 North), Located in the OTAY industrial zone, just 5 minutes from the Otay Mesa Commercial Port, a location
Surrounded by the main medical, electronic, and aerospace sectors, ensures an efficient supply chain and immediate access to a highly skilled workforce.
The warehouse has excellent connectivity through public transport and main roads, ideal for logistics operations, manufacturing, or high-volume storage.
Main features:
Rentable area: 4,940 m²
Total land area: 5,025 m²
Clear height: minimum 39 Ft.
Current use: Industrial
300 KVA
Docks: 3 (8’x10’)
11 parking spaces
A property that combines functional infrastructure, strategic location, and industrial capacity, designed for companies seeking operational efficiency in the logistics epicenter of Tijuana.
Schedule your appointment!
Optimize your operation and logistics.
This warehouse is ready to welcome your company with the infrastructure and location that drive growth.
Contact us for more information.NAVE en Renta (5 Norte), Ubicada la zona industrial OTAY , a solo 5 minutos del Puerto Comercial de Otay Mesa, una ubicación
Rodeada por los principales sectores médico, electrónico y aeroespacial, garantiza una cadena de suministro eficiente y acceso inmediato a una fuerza laboral altamente calificada.
La nave cuenta con excelente conectividad mediante transporte público y vías primarias, ideal para operaciones logísticas, manufactura o almacenamiento de alto volumen.
Características principales:
Superficie rentable: 4,940 m²
Superficie total de terreno: 5,025 m²
Altura libre: mínima 39 Ft.
Uso actual: Industrial
300 KVA
Andenes: 3 (8’x10’)
11 espacios de estacionamiento
Una propiedad que combina infraestructura funcional, ubicación estratégica y capacidad industrial, diseñada para empresas que buscan eficiencia operativa en el epicentro logístico de Tijuana.
¡Agenda tu cita!
Optimiza tu operación y tu logística.
Esta bodega está lista para recibir a tu empresa con la infraestructura y ubicación que impulsan el crecimiento.
Contáctanos para más información.
- Platform
- Street parking
- Cistern
- Office
