Listas

VENDA DE TERRENO SIERRA ALTAVENTA TERRENO SIERRA ALTA

Salvou Salve
1 de 5
2 de 5
3 de 5
4 de 5
5 de 5
1 de 5
1 / 5
2 de 5
2 / 5
3 de 5
3 / 5
4 de 5
4 / 5
5 de 5
5 / 5
Fechar
ID: EB-UJ1788
Publicados
$8.400.000 MXN
À venda

VENDA DE TERRENO SIERRA ALTAVENTA TERRENO SIERRA ALTA

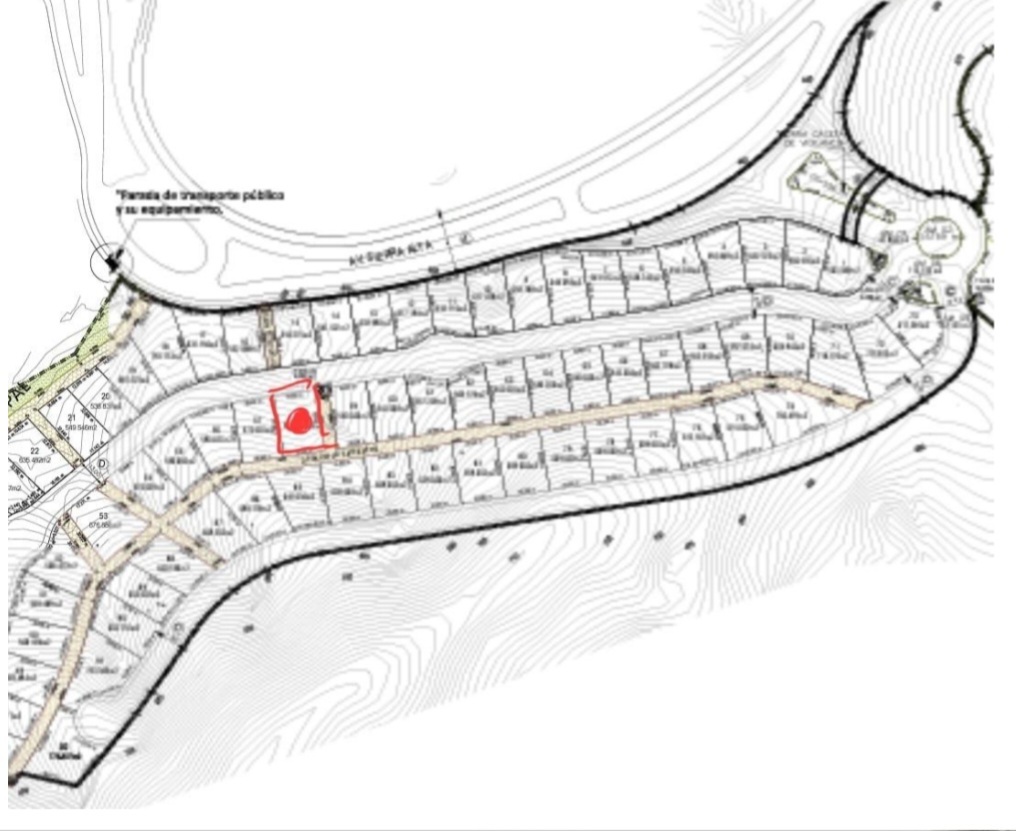
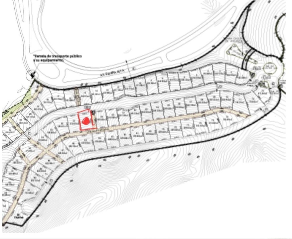
Lote em Sierra Alta 10 Sector, Monterrey

Marilu Garcia
Agencia Brokers Mty
570 m² Tamanho do lote
25 m de comprimento
19 m de largura
Descrição
Veja originalVeja em português

Excelente opção de terreno à venda.
Na Sierra Alta 10. Setor
Super bem localizado dentro da colônia.
Realize seu próprio projeto
VENHA CONHECER
Excelente opcion de Terreno en venta.
En Sierra Alta 10. Sector
Super buen ubicado dentro de la colonia.
Realize su propio proyecto
CONOZCALO

Comodidades
Exterior
  • Facilidade de estacionar
  • Geral
  • Acessibilidade para idosos
  • Acessível para deficientes físicos
  • Private housing development
  • Segurança 24 horas
  • Lazer
  • Piscina
  • Parque infantil
  • Fogatero
  • Políticas
  • Animais de estimação permitidos
  • Permitido fumar
  • Localização
    Link de cópia

    Sierra Alta, Sierra Alta 10 Sector, Monterrey, Nuevo León

    Marilu Garcia
    Agencia Brokers Mty
    Enviar mensagem