Quadros

ARMAZÉM INDUSTRIAL 606 M2 NO PARQUE CASTELLI MÉRIDANAVE INDUSTRIAL 606 M2 EN CASTELLI PARK MÉRIDA

Salvou Salve
1 de 7
2 de 7
3 de 7
4 de 7
5 de 7
6 de 7
7 de 7
1 de 7
1 / 7
2 de 7
2 / 7
3 de 7
3 / 7
4 de 7
4 / 7
5 de 7
5 / 7
6 de 7
6 / 7
7 de 7
7 / 7
Fechar
ID: EB-UG5302
Publicados
$64.000 MXN
Para alugar

ARMAZÉM INDUSTRIAL 606 M2 NO PARQUE CASTELLI MÉRIDANAVE INDUSTRIAL 606 M2 EN CASTELLI PARK MÉRIDA

Prédio industrial em Mérida, Mérida

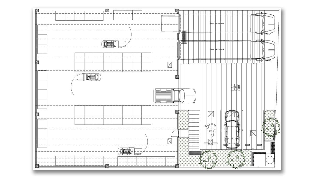
3 vagas de estacionamento
606,15 m² de área total
606,15 m² Tamanho do lote
Ano de construção: Novo
Número de andares no prédio.: 1
Descrição
Veja originalVeja em português

Ideal para armazenamento, distribuição ou produção.

LOCALIZADO DENTRO DO PARQUE INDUSTRIAL SUSTENTÁVEL COM A MELHOR LOCALIZAÇÃO NO SUL DO MÉXICO.

Parque estrategicamente localizado no corredor industrial de maior crescimento, entre o Periférico e o novo Anel Viário Metropolitano de Mérida, Yucatán; com conexão estratégica aos principais nós logísticos do sudeste: Porto de Progreso, Trem Maya de carga e conexões terrestres, a apenas 15 minutos do Aeroporto Internacional de Mérida.

NO CASTELLI PARK VOCÊ ENCONTRARÁ ESPAÇOS INDUSTRIAIS COM TERRENOS, MUROS, DOCAS, PÁTIOS, ESTACIONAMENTOS E SERVIÇOS TOTALMENTE INDEPENDENTES.

CERTEZA JURÍDICA:

1.- Uso do solo industrial não poluente
2.- Escritura pública
3.- Manifestação de impacto ambiental
4.- Autorização CONAGUA
5.- Viabilidade para licença de funcionamento industrial e comercial
6.- Viabilidade CFE
7.- Viabilidade de fibra óptica (Telmex)

SOLUÇÕES, CASTELLI PARK:

1.- Projetamos, planejamos e projetamos espaços sob medida para suas necessidades.
2.- No Castelli Park, você encontrará uma infinidade de soluções: desde a seleção correta do espaço, o planejamento do seu layout de processos, até o acompanhamento durante a fase de construção, adaptação e implementação do seu projeto.
3.- Uma vez instalados, nossa equipe de profissionais o acompanha no dia a dia, facilitando suas necessidades cotidianas, serviços municipais, trâmites e manutenções, cuidando de cada detalhe para que a operação da sua empresa funcione como você planejou.

CARACTERÍSTICAS DA ARMAZÉM

1.- 606,15 m² de terreno em propriedade
2.- 360,00 m² de área coberta, com até 10 m de altura
3.- 246,15 m² distribuídos entre docas, área de manobra, estacionamentos
4.- Serviços e áreas verdes próprias do armazém
5.- Energia em média tensão trifásica, fornecida pela CFE, de acordo com o projeto
6.- Planta de tratamento própria, em conformidade com a regulamentação ambiental
7.- Espaços para estacionamento configuráveis de acordo com as necessidades
8.- Pisos de alta resistência, com planimetria adequada para diferentes tipos de empilhadeiras
9.- Preparações para rampas mecânicas ou hidráulicas e mini doca em docas de carga e descarga
10.- Cortinas metálicas enroláveis com preparação para automação
11.- Poços de infiltração para recarga de aquíferos com recuperação de água da chuva em conformidade com a norma ambiental.
12.- Preparações para instalação elétrica subterrânea
13.- Preparações para conexão de fibra óptica (disponível no parque)
14.- Cisternas próprias
15.- Adequações para iluminação LED
16.- Preparações para crescimento da área útil de armazenamento e colocação de cerca metálica em áreas externas
17.- Preparações para construção e adequação de escritórios, refeitório e núcleos sanitários em um, dois ou três níveis dentro do armazém.
18.- Estrutura metálica e cobertura do armazém calculadas para receber e instalar painéis solares.

COMODIDADES, CASTELLI PARK:

1.- Urbanização de primeiro nível, incorporando tecnologias sustentáveis em harmonia com o meio ambiente
2.- Área de refeitório para pessoal operacional (em construção)
3.- Trailer park
4.- Áreas para estacionamentos
5.- Hotel para pessoal operacional
6.- Centro de negócios (em construção)
7.- Controle de acesso 24/7, 365 dias por ano
8.- CCTV
9.- Iluminação urbana solar

LIGUE-NOS E DESCUBRA AS VANTAGENS DE ESTAR DENTRO DE UM PARQUE INDUSTRIAL RODEADO DE EMPRESAS DE PRIMEIRO NÍVEL.
Ideal para almacenamiento, distribución o producción.

UBICADA DENTRO DEL PARQUE INDUSTRIAL SUSTENTABLE CON LA MEJOR UBICACIÓN EN EL SURESTE DE MÉXICO.

Parque estratégicamente ubicado en el corredor industrial de mayor crecimiento, entre el Periférico y el nuevo Anillo Vial Metropolitano de Mérida, Yucatán; con conexión estratégica a los principales nodos logísticos del sureste: Puerto de Progreso, Tren Maya de carga y conexiones terrestres, a tan solo 15 minutos del Aeropuerto Internacional de Mérida.

EN CASTELLI PARK ENCONTRARÁS NAVES INDUSTRIALES CON TERRENOS, MUROS, ANDENES, PATIOS, ESTACIONAMIENTOS Y SERVICIOS TOTALMENTE INDEPENDIENTES.

CERTEZA JURÍDICA:

1.-Uso de suelo industrial no contaminante
2.-Escritura pública
3.-Manifestación de impacto ambiental
4.-Autorización CONAGUA
5.-Factibilidad para licencia de funcionamiento industrial y comercial
6.-Factibilidad CFE
7.-Factibilidad de fibra óptica (Telmex)

SOLUCIONES, CASTELLI PARK:

1.-Diseñamos, planeamos y proyectamos espacios a la medida de tus necesidades.
2.-En Castelli Park encontrarás un sinfín de soluciones: desde la correcta selección del espacio, la planeación de tu layout de procesos, hasta el acompañamiento durante la etapa de construcción, adecuación y puesta en marcha de tu proyecto.
3.-Una vez instalados, nuestro equipo de profesionales te acompaña en el día a día, facilitandote las necesidades cotidianas, servicios municipales, trámites y mantenimientos, cuidando cada detalle para que la operación de tu empresa funcione como lo has planeado.

CARACTERÍSTICAS PROPIAS DE LA NAVE

1.- 606.15 m² de terreno en propiedad
2.- 360.00 m² de área techada, con hasta 10 m de altura
3.- 246.15 m² distribuidos entre andenes, área de maniobras, estacionamientos
4.- Servicios y áreas verdes propias de la nave
5.- Energía en media tensión trifásica, suministrada por CFE, según proyecto
6.-Planta de tratamiento propia, en cumplimiento con la normatividad ambiental
7.- Espacios para estacionamiento configurables según necesidades
8.- Pisos de alta resistencia, con planimetría adecuada para distintos tipos de montacargas
9.- Preparaciones para rampas mecánicas o hidráulicas y mini dock en andenes de carga y descarga
10.- Cortinas metálicas enrollables con preparación para automatización
11.- Pozos de infiltración para recarga de mantos acuíferos con recuperación de agua pluvial en cumplimiento a la norma ambiental.
12.- Preparaciones para instalación eléctrica subterránea
13.- Preparaciones para conexión de fibra óptica (disponible en el parque)
14.- Cisterna propia
15.- Adecuaciones para iluminación LED
16.- Preparaciones para crecimiento del área útil de almacenamiento y colocación de cerca metálica en áreas exteriores
17.- Preparaciones para construcción y adecuación de oficinas, comedor y núcleos sanitarios en uno, dos o tres niveles al interior de la nave.
18.- Estructura metálica y techumbre de la nave calculados para recibir a instalar paneles solares.

AMENIDADES, CASTELLI PARK:

1.- Urbanización de primer nivel, incorporando tecnologías sustentables en armonía con el medio ambiente
2.- Área de comedor para personal operativo (en construcción)
3.- Trailer park
4.- Áreas para estacionamientos
5.- Hotel para personal operativo
6.- Centro de negocios (en construcción)
7.- Control de acceso 24/7, los 365 días del año
8.- CCTV
9.- Iluminación urbana solar

LLÁMANOS Y DESCUBRE LAS VENTAJAS DE ESTAR DENTRO DE UN PARQUE INDUSTRIAL RODEADO DE EMPRESAS DE PRIMER NIVEL.

Comodidades
Exterior
  • Andén
  • Facilidade de estacionar
  • Geral
  • Acessível para deficientes físicos
  • Rampas
  • Segurança 24 horas
  • Localização
    Link de cópia

    Mérida, Mérida, Yucatán

    Vídeos
    Enviar mensagem