Quadros

Pátio com armazém e escritórios — amplo, funcional e pronto para operar 🚛🏢Patio con bodega y oficinas — amplio, funcional y listo para operar 🚛🏢

Salvou Salve
1 de 12
2 de 12
3 de 12
4 de 12
5 de 12
6 de 12
7 de 12
8 de 12
9 de 12
10 de 12
11 de 12
12 de 12
1 de 12
1 / 12
2 de 12
2 / 12
3 de 12
3 / 12
4 de 12
4 / 12
5 de 12
5 / 12
6 de 12
6 / 12
7 de 12
7 / 12
8 de 12
8 / 12
9 de 12
9 / 12
10 de 12
10 / 12
11 de 12
11 / 12
12 de 12
12 / 12
Fechar
ID: EB-UK8664
Publicados
$80.000
Para alugar

Pátio com armazém e escritórios — amplo, funcional e pronto para operar 🚛🏢Patio con bodega y oficinas — amplio, funcional y listo para operar 🚛🏢

Warehouse em Belisario Domínguez, Carmen

CASSE Inmobiliaria
Publicado por CASSE Inmobiliaria
CASSE Inmobiliaria
5 vagas de estacionamento
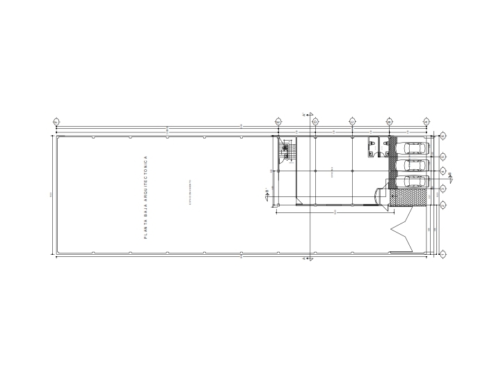
Número de andares no prédio.: 3
Descrição
Veja originalVeja em português

🏗️ Espacio funcional con patio, bodega y oficinas: ideal para tu empresa o centro operativo.
Si buscas un punto estratégico para operar tu negocio, este inmueble combina amplitud, estructura sólida y distribución práctica. Perfecto para talleres, almacenes, empresas de servicios o centros logísticos que necesitan espacio de maniobra, almacenamiento y oficinas integradas.

📐 Superficie total: 375 m² construidos distribuidos en 3 niveles:
Planta baja: 150 m².
Primer piso: 150 m².
Planta alta: 75 m².

🚛 Patio de trabajo: 650 m² totales.
300 m² techados.
350 m² libres.

Cortina metálica de 6 m de frente y 5 m de altura.
🚗 Estacionamiento frontal: para 5 autos.
🚻 Baños: 5 en total (1 exterior y 2 en cada nivel).

💼 Perfecto para:
Talleres o patios de transporte.
Centros de distribución o almacenamiento.
Oficinas administrativas con área de maniobra.
Proveedores industriales o logísticos.

📍 Ubicado en zona de fácil acceso, ideal para movimiento de vehículos pesados y personal operativo.

Comodidades
Exterior
  • Andén
  • Facilidade de estacionar
  • Pátio
  • Geral
  • Acessibilidade para idosos
  • Acessível para deficientes físicos
  • Storge Unit
  • Oficina
  • Local

    Belisario Domínguez, Carmen, Campeche

    CASSE Inmobiliaria
    CASSE Inmobiliaria
    CASSE Inmobiliaria
    Enviar mensagem