Listas

Escritório para alugar em Obra CinzaOficina en renta en Obra Gris

Salvou Salve
1 de 2
2 de 2
1 de 2
1 / 2
2 de 2
2 / 2
Fechar
ID: EB-UI1189
Publicados
$250 MXN por m²
Para alugar

Escritório para alugar em Obra CinzaOficina en renta en Obra Gris

Sala Comercial em Ladrillera, Monterrey

796,71 m² de área total
796,71 m² Tamanho do lote
Descrição
Veja originalVeja em português

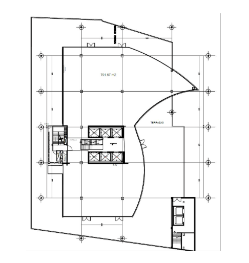
Andar 8
Área Alugável: 796.71m2
Obra Bruta
Preço: $250/m2
Manutenção: $40 pesos/m2
Vagas: 31
Localização: Entre Av. Revolução e Guadalajara 154, Monterrey N.L.
Piso 8
Área Rentable: 796.71m2
Obra Gris
Precio: $250m2
Mantenimiento: $40 pesos/m2
Cajones: 31
Ubicación: Entre Av. Revolución y Guadalajara 154, Monterrey N.L.

Localização
Link de cópia

Guadalajara, Ladrillera, Monterrey, Nuevo León

Enviar mensagem