Quadros

Escritório corporativo para alugar na Av. Morones Prieto, Monterrey, Nuevo LeónOficina corporativa en renta sobre Av. Morones Prieto, Monterrey, Nuevo León

Salvou Salve
1 de 5
2 de 5
3 de 5
4 de 5
5 de 5
1 de 5
1 / 5
2 de 5
2 / 5
3 de 5
3 / 5
4 de 5
4 / 5
5 de 5
5 / 5
Fechar
ID: EB-TU4024
Publicados
$70.358
Para alugar

Escritório corporativo para alugar na Av. Morones Prieto, Monterrey, Nuevo LeónOficina corporativa en renta sobre Av. Morones Prieto, Monterrey, Nuevo León

Sala Comercial em Lomas de San Francisco, Monterrey

Gabriel Macareno
Publicado por Gabriel Macareno
Grupo SIHAAD
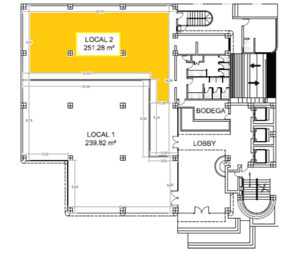
251 m² de área total
251 m² Tamanho do lote
Manutenção: $11,249
Descrição
Veja originalVeja em português

Oficina corporativa en renta sobre Av. Morones Prieto, Monterrey, Nuevo León ideal para 30 personas con buena visibilidad comercial.

Planta baja
Área neta rentable: 251.28 m2
Cajones de estacionamiento: 5

Costo de renta por m2: $280.00 + IVA
Costo de mantenimiento: $39.00 m2
*Cajon extra: $1,800.00 + IVA
Mantenimiento de cajones: $290.00 + IVA

*Vigencia mínima de contrato: 24 meses
*2 meses de depósito en garantía (100% reembolsable al finalizar contrato)
*Primer mes por anticipado
*Servicio de luz ya tiene contrato el local y se paga adicional a la renta
*Servicio de internet y teléfono se contrata directo con proveedor
*Mobiliario no incluido (Opción a incluir con costo adicional)
*Factura de servicio mensual se envía a correo día primero de cada mes
*Pago de factura mensual se realiza dentro de los primeros 5 días

Requisitos de contratación para Persona Moral
- Acta Constitutiva
- ID del representante o Apoderado Legal
- Poder del Apoderado Legal (si aplica)
- Constancia de Situación Fiscal de la Persona Moral
- Constancia de Situación Fiscal del Representante Legal
- CURP del Representante Legal
- Comprobante de domicilio de persona moral
- Comprobante de domicilio de Apoderado Legal
- Opinión de cumplimiento IMSS Persona Moral

Comodidades
Exterior
  • Estacionamento Coberto
  • Facilidade de estacionar
  • Geral
  • Ar condicionado
  • Elevador
  • Oficina
  • Segurança 24 horas
  • Local

    Lomas de San Francisco, Monterrey, Nuevo León

    Gabriel Macareno
    Gabriel Macareno
    Grupo SIHAAD
    Enviar mensagem