Quadros

Armazém industrial PIA (Aeroporto) com kvas de acordo com a disponibilidade e exigênciaNave industrial PIA (Aeropuerto) con kvas según disponibilidad y requerimiento

Salvou Salve
1 de 4
2 de 4
3 de 4
4 de 4
1 de 4
1 / 4
2 de 4
2 / 4
3 de 4
3 / 4
4 de 4
4 / 4
Fechar
ID: EB-UN4626
Publicados
US$ 6 por m²
Para alugar

Armazém industrial PIA (Aeroporto) com kvas de acordo com a disponibilidade e exigênciaNave industrial PIA (Aeropuerto) con kvas según disponibilidad y requerimiento

Warehouse em Parque Aeroespacial de Querétaro, Colón

Lemon Real Estate & Investment
Publicado por Lemon Real Estate & Investment
Lemon Real Estate & Investment
2.160 m² de área total
9.589 m² Tamanho do lote
Manutenção: 0.30 usd
Descrição
Veja originalVeja em português

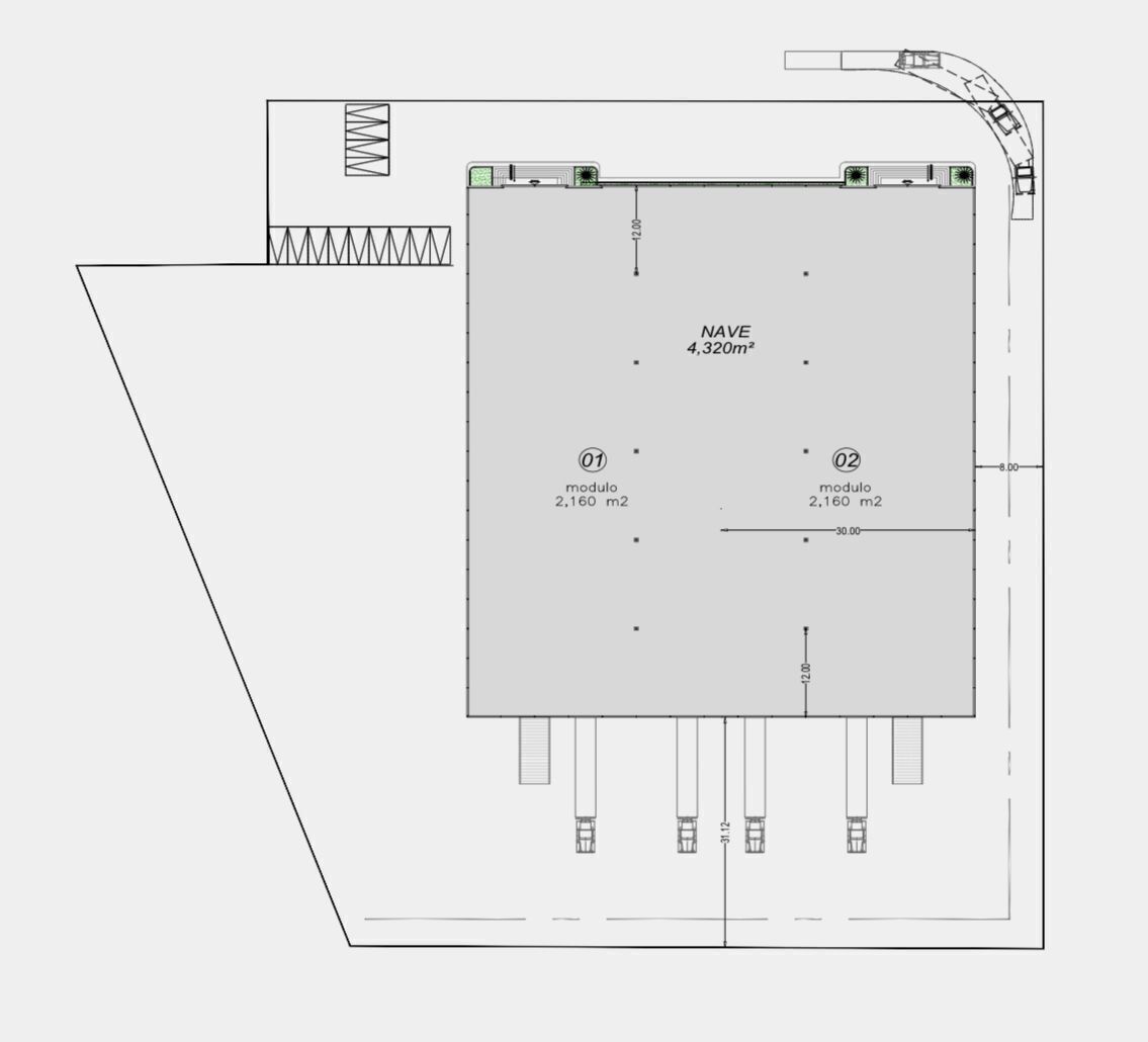
Área disponible 4,320m2 min subdivisible 2,160m2

Superficie Total de las Naves: 4,320 m2
Superficie Total de Terreno: 9,589 m2

Especificaciones:
* Subdividible desde 2,160 m2
* Oficinas construidas a la medida.
* Estacionamientos para oficinas y personal.
* Altura promedio de nave de 11 metros.
* Muros de concreto "tilt up".
* Capacidad en pisos de 8/10 Ton por m?.
* Sistema de red contra incendio.
* Iluminación natural en nave del 8%.
* Iluminación a base de lámparas ahorradoras LED.
* Todos los servicios necesarios para cualquier tipo de empresa.
* 1 anden por cada 1,000 metros arrendados.
* 1 rampa de concreto para ingresar a la nave por usuario.
• Energía kvas según disponibilidad y m2 rentados
• Disponibilidad de Gas Natural en el parque

Comodidades
Exterior
  • Andén
  • Geral
  • Oficina
  • Rampas
  • Segurança 24 horas
  • Parque Aeroespacial de Querétaro, Colón, Querétaro

    Lemon Real Estate & Investment
    Lemon Real Estate & Investment
    Lemon Real Estate & Investment
    Enviar mensagem