Listas

Armazém Industrial para Aluguel com Sistema de Incêndio na Zona de Apodaca, N.L.Nave Industrial en Renta c/Sist. vs Incendio en Zona Apodaca, N.L.

Salvou Salve
1 de 14
2 de 14
3 de 14
4 de 14
5 de 14
6 de 14
7 de 14
8 de 14
9 de 14
10 de 14
11 de 14
12 de 14
13 de 14
14 de 14
1 de 14
1 / 14
2 de 14
2 / 14
3 de 14
3 / 14
4 de 14
4 / 14
5 de 14
5 / 14
6 de 14
6 / 14
7 de 14
7 / 14
8 de 14
8 / 14
9 de 14
9 / 14
10 de 14
10 / 14
11 de 14
11 / 14
12 de 14
12 / 14
13 de 14
13 / 14
14 de 14
14 / 14
Fechar
ID: EB-TF3677
Publicados
$1.884.254 MXN
Para alugar

Armazém Industrial para Aluguel com Sistema de Incêndio na Zona de Apodaca, N.L.Nave Industrial en Renta c/Sist. vs Incendio en Zona Apodaca, N.L.

Galpão industrial em Apodaca Centro, Apodaca

104 vagas de estacionamento
14.539 m² de área total
Ano de construção: Em construção
Manutenção: 8% + IVA
Descrição
Veja originalVeja em português

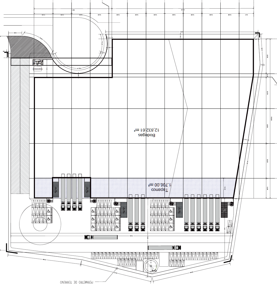
CASCO NAVE SECCIONÁVEL
MÓDULOS DE 2.200m2
12.832m2 DE ARMAZÉM
1.706m2 DE MEZANINO PARA ESCRITÓRIOS
10m DE ALTURA LIVRE
13 DOCAS c/NIVELADORA
5 RAMPAS
BAÍAS DE 15,5m X 12,2m
FIRME COM RESISTÊNCIA DE 8t/m2
MUROS PRÉ-MOLDADOS PINTADOS
ILUMINAÇÃO LED DE 200 LUMENS
COBERTURA ISOLADA DE 3"
SKYLIGHT A 8%
MANGUEIRAS VS INCÊNDIO
TRANSFORMADOR DE 500kva
CISTERN (TANQUE COLUMBIA) DE 120m3
PARQUE PRIVADO
SEGURANÇA 24/7
CONTRATO MÍNIMO: 3 ANOS
NÃO CORRETORES
NAVE SHELL SECCIONABLE
MODULOS DE 2,200m2
12,832m2 DE ALMACEN
1,706m2 DE MEZZANINE PARA OFICINAS
10m DE ALTURA LIBRE
13 ANDENES c/NIVELADORA
5 RAMPAS
BAHIAS DE 15.5m X 12.2m
FIRME CON RESISTENCIA DE 8t/m2
MUROS PRECOLADOS PINTADOS
ALUMBRADO LED DE 200 LUMEN
CUBIERTA AISLADA DE 3"
SKYLIGHT AL 8%
MANGUERAS VS INCENDIO
TRANSFORMADOR DE 500kva
CISTERNA (TANQUE COLUMBIA) DE 120m3
PARQUE PRIVADO
SEGURIDAD 24/7
CONTRATO MINIMO: 3 AÑOS
NO BROKERS

Comodidades
Exterior
  • Andén
  • Cistern
  • Loading dock
  • Geral
  • Closed-Circuit Security System
  • Private housing development
  • Porteiro
  • Segurança 24 horas
  • Localização

    Apodaca Centro, Apodaca, Nuevo León

    Enviar mensagem