Listas

Armazém industrial para alugar em TlalpanBodega industrial en renta en Tlalpan

Salvou Salve
1 de 10
2 de 10
3 de 10
4 de 10
5 de 10
6 de 10
7 de 10
8 de 10
9 de 10
10 de 10
1 de 10
1 / 10
2 de 10
2 / 10
3 de 10
3 / 10
4 de 10
4 / 10
5 de 10
5 / 10
6 de 10
6 / 10
7 de 10
7 / 10
8 de 10
8 / 10
9 de 10
9 / 10
10 de 10
10 / 10
Fechar
ID: EB-VC1879
Publicados
$14,25 USD por m²
Para alugar

Armazém industrial para alugar em TlalpanBodega industrial en renta en Tlalpan

Galpão industrial em San Diego Churubusco, Coyoacán

Publicado por REMAX PATRIMONIAL
2.552 m² de área total
Número de andares no prédio.: 4
Manutenção: 3.30 USD por m2
Descrição
Veja originalVeja em português

Bodega industrial en renta de 2552m² sobre Calzada de Tlalpan – CDMX

Excelente oportunidad para empresas que buscan operación industrial, logística o de almacenamiento dentro de la Ciudad de México, en una ubicación estratégica con conectividad inmediata a las principales vialidades del sur y centro de la ciudad.

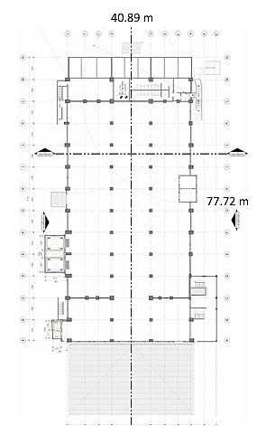
La propiedad cuenta con una superficie total de 10,609 m², divisible desde 2,552 m², distribuida en cuatro niveles, lo que permite una operación flexible y adaptable a distintos modelos de negocio.

Características generales

Superficie total: 10,609 m²

Divisible desde: 2,552 m²

Distribución: 4 niveles

Altura libre:

Planta baja: 5.95 m

Niveles superiores: desde 2.84 m

Módulo estructural: columnas con claro de 10 x 6 m, ideal para layouts eficientes

Uso de suelo: industrial / logístico

Infraestructura y equipamiento

6 puertas de carga, aptas para distintos tipos de operación

Acceso para todo tipo de transporte de carga (camiones, torton, tráiler)

2 elevadores de carga marca Tecnorampa, con capacidad de 3,000 kg cada uno, ideales para operación vertical

2 elevadores de pasajeros marca Mitsubishi, con capacidad para 14 personas cada uno

Pisos de alta resistencia, ideales para almacenaje y operación industrial

Preparación para adecuaciones según las necesidades del arrendatario

Seguridad y operación

Ubicada dentro de un parque industrial cerrado

Acceso restringido y controlado

Entorno seguro para operación continua

Ideal para operaciones 24/7

Ubicación estratégica

Sobre Calzada de Tlalpan, una de las principales arterias de la CDMX

Excelente conectividad hacia Periférico, Viaducto, Circuito Interior y Tlalpan Centro

Ubicación privilegiada para última milla, distribución urbana, centros de operación, showrooms industriales y empresas de logística

Ideal para

Centros de distribución urbanos

Empresas de logística y última milla

Manufactura ligera

Almacenamiento

E-commerce

Dark stores

Empresas que requieren operación dentro de la CDMX

Comodidades
Exterior
  • Cistern
  • Facilidade de estacionar
  • Geral
  • Elevador
  • Segurança 24 horas
  • Localização
    Link de cópia

    AV CALZADA DE TLALPAN, San Diego Churubusco, Coyoacán, Cidade do México

    REMAX PATRIMONIAL
    Enviar mensagem