Quadros

Armazém Industrial para Aluguel 5.015 m2 Localizado em Linares, Nuevo LeónNave Industrial en Renta 5,015 m2 Ubicada en Linares, Nuevo león

Salvou Salve
1 de 4
2 de 4
3 de 4
4 de 4
1 de 4
1 / 4
2 de 4
2 / 4
3 de 4
3 / 4
4 de 4
4 / 4
Fechar
ID: EB-UI8690
Publicados
Contato para preço

Armazém Industrial para Aluguel 5.015 m2 Localizado em Linares, Nuevo LeónNave Industrial en Renta 5,015 m2 Ubicada en Linares, Nuevo león

Warehouse em Ignacio Zaragoza, Linares

AC Alianza Industrial
Publicado por AC Alianza Industrial
Alianza Industrial Inmobiliaria
54 vagas de estacionamento
5.015 m² de área total
5.015 m² Tamanho do lote
Descrição
Veja originalVeja em português

Armazém Industrial para Aluguel – 5.015 m² | Linares, Nuevo León

Armazém industrial disponível para aluguel em Linares, Nuevo León, com infraestrutura moderna e espaços projetados para otimizar operações logísticas, de manufatura ou distribuição. Sua localização estratégica oferece conectividade direta com Monterrey e os principais cruzamentos de fronteira para os Estados Unidos.

Características do imóvel:

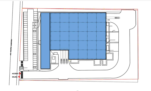
* Área de construção: 5.015 m²
* Área do armazém: 4.127,21 m²
* Área de escritórios: 887,79 m²
* Altura máxima: 7,50 m
* Altura mínima: 5,40 m
* Docas de carga: 4
* Altura da doca: 1,20 m
* Pátio de manobras: 54 m
* Estacionamento: 54 vagas

Localização estratégica:

* Monterrey, N.L.: 129 km
* Aeroporto Internacional de Monterrey: 132 km
* Reynosa, Tamps.: 252 km
* Passo de fronteira Nuevo Laredo: 345 km

Este imóvel é uma excelente opção para empresas que buscam crescer em uma área com grande potencial logístico e proximidade aos principais corredores industriais do norte do México.
Nave Industrial en Renta – 5,015 m² | Linares, Nuevo León

Nave industrial disponible en renta en Linares, Nuevo León, con infraestructura moderna y espacios diseñados para optimizar operaciones logísticas, de manufactura o distribución. Su ubicación estratégica ofrece conectividad directa con Monterrey y los principales cruces fronterizos hacia Estados Unidos.

Características del inmueble:

* Superficie de construcción: 5,015 m²
* Superficie de nave: 4,127.21 m²
* Área de oficinas: 887.79 m²
* Altura máxima: 7.50 m
* Altura mínima: 5.40 m
* Andenes de carga: 4
* Altura de andén: 1.20 m
* Patio de maniobras: 54 m
* Estacionamiento: 54 cajones

Ubicación estratégica:

* Monterrey, N.L.: 129 km
* Aeropuerto Internacional de Monterrey: 132 km
* Reynosa, Tamps.: 252 km
* Paso fronterizo Nuevo Laredo: 345 km

Este inmueble es una excelente opción para empresas que buscan crecer en una zona con gran potencial logístico y cercanía a los principales corredores industriales del norte de México.

Comodidades
Exterior
  • Estacionamento
  • Facilidade de estacionar
  • Geral
  • Storge Unit
  • Private housing development
  • Segurança 24 horas
  • Ignacio Zaragoza, Linares, Nuevo León

    AC Alianza Industrial
    AC Alianza Industrial
    Alianza Industrial Inmobiliaria
    Enviar mensagem