Galpão comercial em Gral. Escobedo Centro, General Escobedo
Barco para Aluguel com Sistema vs Inc. em Escobedo, N.L.Nave en Renta c/Sist. vs Inc. en Escobedo, N.L.
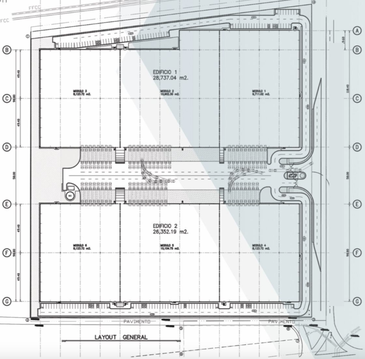
ARMAZÉM MULTITENANT
10m DE ALTURA LIVRE
BAÍXAS DE 50m x 20m (mais largas do mercado)
19 DOCAS E 2 RAMPAS
PAREDES PRÉ-MOLDADAS
PISO DE 6" EXTRAFINO
TELHADO ISOLADO A R10
ILUMINAÇÃO LED a 30ft-cdl
LUMINÁRIA NO 5%
150kva DE CARGA ALOCADA
MANGUEIRAS DE INCÊNDIO
CONTRATO DE 7 ANOS, MÍN. 5
ESCRITÓRIOS E BANHEIROS ORÇADOS SEPARADAMENTE A PREÇO PASS THROUGH
PREÇO FINAL SUJEITO A ORÇAMENTO
NENHUM CORRETORNAVE MULTITENANT
10m de ALTURA LIBRE
BAHIAS DE 50m x 20m (más amplias del mercado)
19 ANDENES Y 2 RAMPAS
MUROS PRECOLADOS
FIRME DE 6" EXTRAPLANO
TECHUMBRE AISLADA AL R10
ALUMBRADO LED a 30ft-cdl
SKYLIGHT AL 5%
150kva DE CARGA ASIGNADA
MANGUERAS VS INCENDIO
CONTRATO 7 AÑOS, MIN. 5
OFICINAS Y BAÑOS SE COTIZAN APARTE A PRECIO PASS THROUGH
PRECIO FINAL SUJETO A COTIZACION
NO BROKERS
- Andén
- Loading dock
- Closed-Circuit Security System
- Private housing development
- Porteiro
- Segurança 24 horas
- Rampas
