Quadros

Local de 300 m2 para alugar em San RafaelLocal de 300 m2 en Renta en la San Rafael

Salvou Salve
1 de 7
2 de 7
3 de 7
4 de 7
5 de 7
6 de 7
7 de 7
1 de 7
1 / 7
2 de 7
2 / 7
3 de 7
3 / 7
4 de 7
4 / 7
5 de 7
5 / 7
6 de 7
6 / 7
7 de 7
7 / 7
Fechar
ID: EB-UH9646
Publicados
$182.700
Para alugar

Local de 300 m2 para alugar em San RafaelLocal de 300 m2 en Renta en la San Rafael

Local em San Rafael, Cuauhtémoc

Andrea Casasa
Publicado por Andrea Casasa
Viva Houses Bienes Raices S.A. de C.V.
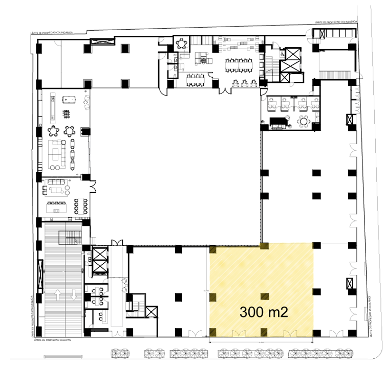
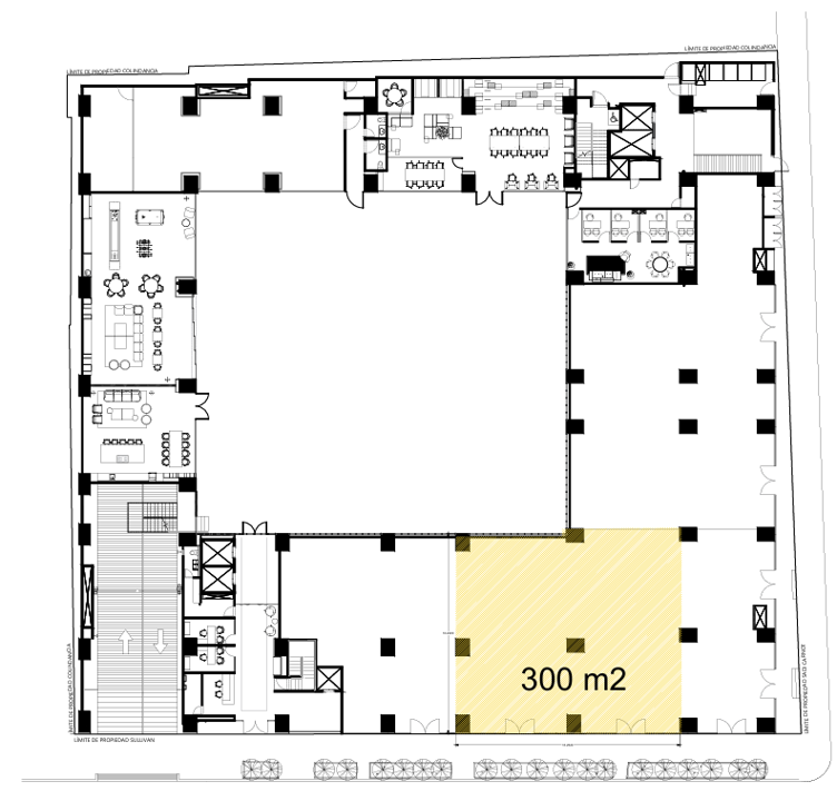
300 m² de área total
300 m² Tamanho do lote
Ano de construção: Novo
Andar: Piso térreo
Manutenção: 15%
Descrição
Veja originalVeja em português

Imóvel comercial de 300 m2, localizado no andar térreo de um novo edifício de 10 andares e 386 apartamentos residenciais e um alto fluxo de pedestres. Eles são entregues em obra cinza para que você possa adaptá-lo às suas necessidades.

Muito bem localizado, a poucos passos da Av. Insurgentes e Av. Paseo de la Reforma. Muito perto do Jardim de Arte Sullivan.

*MANTENIMENTO MENSAL: 15% DO PREÇO DO ALUGUEL MAIS IVA.
*PREÇO NÃO INCLUI IVA.
Local comercial de 300 m2, ubicado en la planta baja de un edificio nuevo de 10 niveles y 386 departamentos habitacionales y un Alto flujo peatonal. Se entregan en obra gris para que lo adapte a sus necesidades.

Muy bien ubicado, a unos pasos de la Av. Insurgentes y Av. Paseo de la Reforma. Muy cerca del Jardín del Arte Sullivan.

*MANTENIMIENTO MENSUAL: 15% DEL PRECIO DE RENTA MAS IVA.
*PRECIO NO INCLUYE IVA

San Rafael, Cuauhtémoc, Cidade do México

Andrea Casasa
Andrea Casasa
Viva Houses Bienes Raices S.A. de C.V.
Enviar mensagem