Listas

Local Comercial para Alugar em Zapopan. 195.321,6Local Comercial en Renta Zapopan. 195,321.6

Salvou Salve
1 de 6
2 de 6
3 de 6
4 de 6
5 de 6
6 de 6
1 de 6
1 / 6
2 de 6
2 / 6
3 de 6
3 / 6
4 de 6
4 / 6
5 de 6
5 / 6
6 de 6
6 / 6
Fechar
ID: EB-US1612
Publicados
$195.321 MXN
Para alugar

Local Comercial para Alugar em Zapopan. 195.321,6Local Comercial en Renta Zapopan. 195,321.6

Local em Zapopan Centro, Zapopan

Juan Pablo Rivera Córdova
Capriori Bienes Raices ( PAIS)
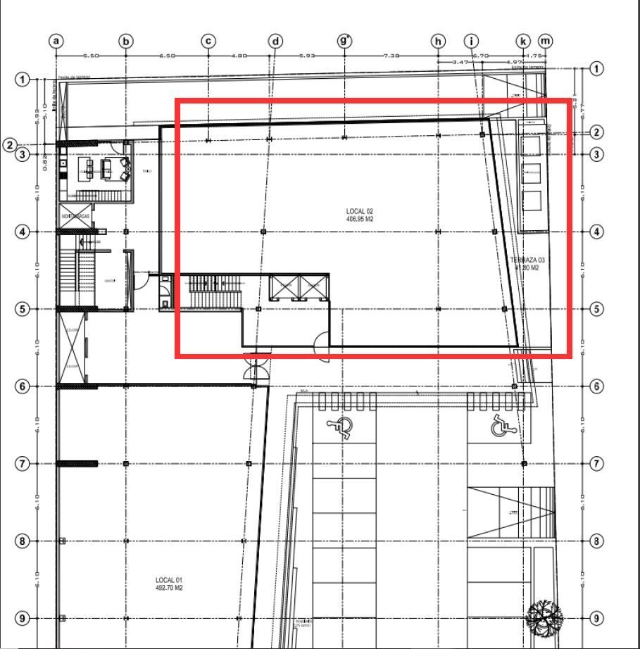
406 m² de área total
406 m² Tamanho do lote
Descrição
Veja originalVeja em português

Local Comercial para Aluguel em Zapopan.
195.321,6
406,92 m2 de Superfície.
$480 por M2 mais 10% de manutenção.
Local comercial para aluguel com excelente localização, na Av. Juan P II, grande conectividade, próximo à linha 3 do trem leve, rotas de ônibus, etc..
Localizado dentro de um edifício multipropósito, andar térreo dedicado à área comercial e 4 andares corporativos, ideal para empresas de alto nível.
17 vagas de estacionamento.
Ideal para bancos, cafeterias, farmácias, etc…
Local Comercial en Renta Zapopan. 195,321.6
406.92 m2 de Superficie. $480 x M2 mas 10% de mantenimiento.
Local comercial en Renta con Excelente ubicación, sobre Av. Juan P II, gran conectividad, cercano a la línea 3 del tren ligero, rutas de autobuses, etc..
Ubicado dentro de un edificio multipropósito, planta baja dedicado al área comercial y 4 pisos corporativos, ideal para empresas de alto nivel.
17 cajones de Estacionamiento.
Ideal para Bancos, cafeterías, farmacias, etc…

Localização
Link de cópia

Av. Juan P II, Zapopan Centro, Zapopan, Jalisco

Juan Pablo Rivera Córdova
Capriori Bienes Raices ( PAIS)
Enviar mensagem