Local em Lomas del Campestre 2a Sección, Aguascalientes
HURBAN ALUGUEL local com excelente localização ao norte de Aguascalientes.HURBAN RENTA local con excelente ubicación al norte de Aguascalientes.
HURBAN ALUGUEL local com excelente localização ao norte de Aguascalientes, com muita visibilidade, facilidade de estacionamento e estacionamentos próprios.
Na zona norte, sobre uma avenida de grande movimento, encontra-se este espaço comercial, perto de principais farmácias, lojas de conveniência, bancos e hospital.
O local conta com uma grande frente que proporciona muita visibilidade, tem uma grande vitrine e áreas de estacionamento cobertas.
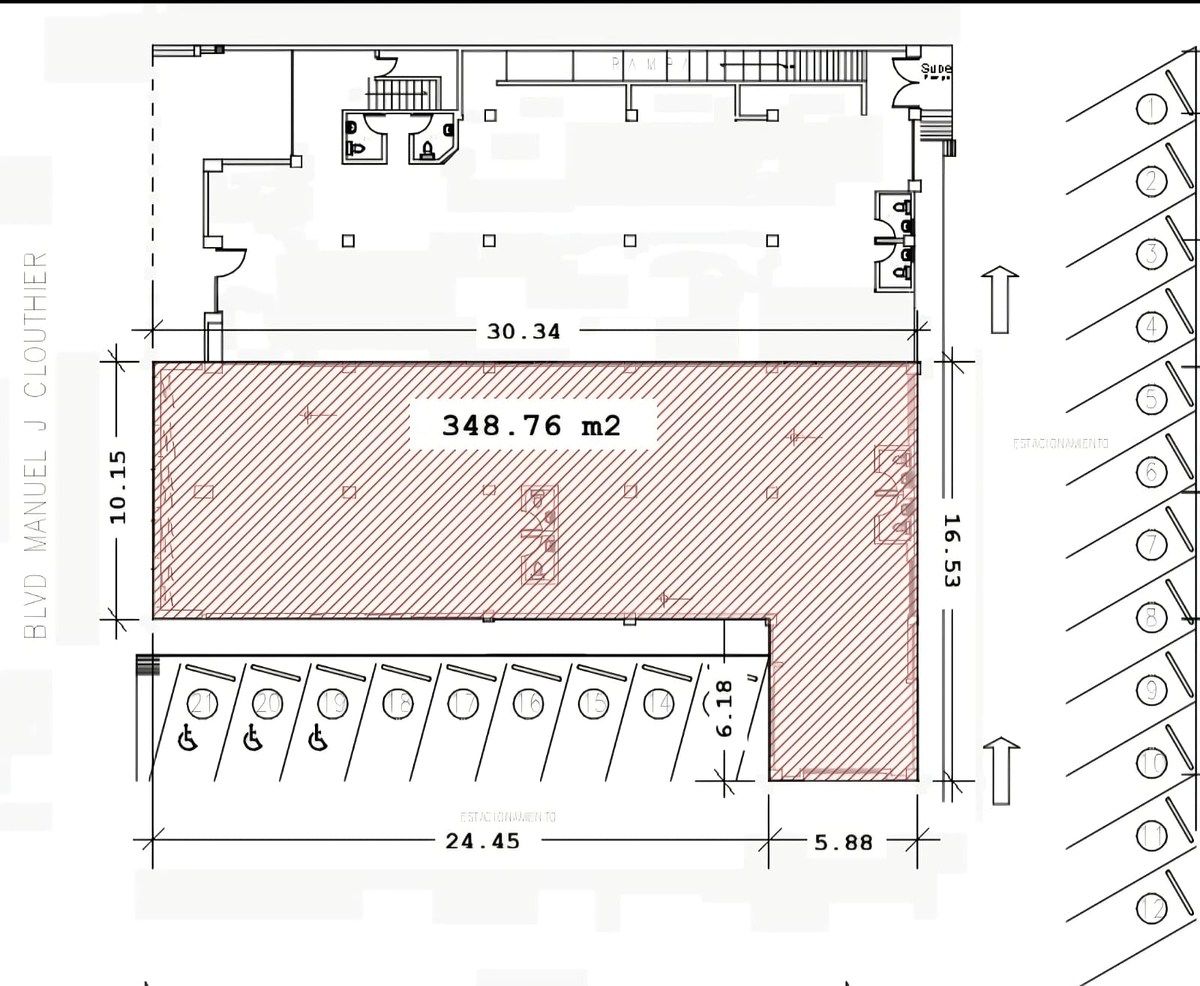
A área total pode ser alugada na íntegra ou dividida, dependendo do tipo de negócio.
A área total alocável é de 348,76 m2.
O preço mostrado é mais IVA.HURBAN RENTA local con excelente ubicación al norte de Aguascalientes, con mucha visibilidad, facilidad de estacionarse y estacionamientos propios.
En la zona norte, sobre Avenida de gran afluencia, se encuentra este local comercial, cerca de principales farmacias, tiendas de conveniencia, bancos y hospital.
El local cuenta con gran frente que da mucha visibilidad, tiene un gran aparador y zona de estacionamientos techados.
Se puede rentar la superficie total o dividir, dependiendo del giro.
La superficie total rentable es de 348.76 m2
El precio mostrado es más IVA
- Cistern
- Estacionamento Coberto
- Acessibilidade para idosos
- Acessível para deficientes físicos
- Única história
Lomas del Campestre, Lomas del Campestre 2a Sección, Aguascalientes, Aguascalientes
Anunciante
Dados do anúncio
- ID do anúncio EB-VC5757
- Tipo de operação Aluguel
- Tipo de imóvel Local
- Bairro Lomas del Campestre 2a Sección
