Quadros

Para Aluguel | Armazém Industrial-Modular | Cuautitlán, Estado do MéxicoEn Renta | Bodega Industrial-Modular | Cuautitlán, Estado de México

Salvou Salve
1 de 4
2 de 4
3 de 4
4 de 4
1 de 4
1 / 4
2 de 4
2 / 4
3 de 4
3 / 4
4 de 4
4 / 4
Fechar
ID: EB-SP8620
Publicados
$170 por m²
Para alugar

Para Aluguel | Armazém Industrial-Modular | Cuautitlán, Estado do MéxicoEn Renta | Bodega Industrial-Modular | Cuautitlán, Estado de México

Industrial Warehouse em Galaxia Cuautitlán, Cuautitlán

Jorge Romero
Publicado por Jorge Romero
propty
3.300 m² de área total
Descrição
Veja originalVeja em português

Galpões industriais divisíveis a partir de 2.500m2, com fácil acesso a partir de vias principais.

DISPONIBILIDADE
Novembro de 2025

DISTRIBUIÇÃO

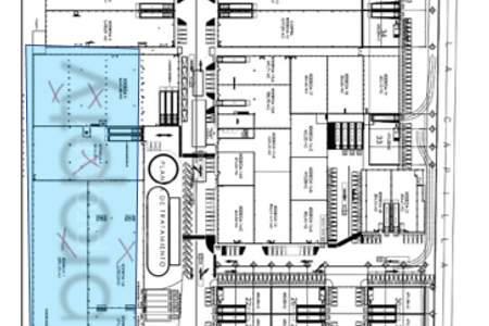
Módulo: 3.300m2
________________________
Possibilidades de modulação
Módulo: 2.500m2
Módulo: 3.000m2
Módulo: 5.000m2
Módulo: 5.700m2
Módulo: 6.100m2
Módulo: 11.600m2
Módulo: 15.600m2

CARACTERÍSTICAS GERAIS
- Galpão industrial modular a partir de 2.500m2
- Piso: Lajes de concreto de alta resistência.
- Cobertura: Sistema de cobertura de chapa KR - 18 cal. 14 com isolamento termoacústico
- Iluminação: Tem iluminação natural
- Estacionamento

PREÇO
Aluguel: R$170 MXN/m2

(Disponibilidade e preço sujeitos a alteração sem aviso prévio)
Bodegas industriales divisibles a partir de 2,500m2, con fácil acceso desde vialidades principales.

DISPONIBILIDAD
Noviembre 2025

DISTRIBUCION

Modulo: 3,300m2
________________________
Posibilidades de modulación
Modulo: 2,500m2
Modulo: 3,000m2
Modulo: 5,000m2
Modulo: 5,700m2
Modulo: 6,100m2
Modulo: 11,600m2
Modulo: 15,600m2

CARACTERISTICAS GENERALES
-Nave industrial modular desde los 2,500m2
-Piso: Firmes de concreto de alta resistencia.
-Techumbre: Sistema de techumbre Lamina KR - 18 cal. 14 con aislante termoacústico
-Iluminación: Tiene iluminación natural
-Estacionamiento

PRECIO
Renta: $170 MXN/m2


(Disponibilidad y precio sujeto a cambio sin previo aviso)

Galaxia Cuautitlán, Cuautitlán, Estado de México

Vídeos
Jorge Romero
Jorge Romero
propty
Enviar mensagem