Listas

Departamento em Pré-venda no Térreo com Dois Pátios PrivadosDepartamento en Preventa en Planta Baja con Dos Patios Privados

Salvou Salve
Fora do mercado
1 de 6: Estancia con patio
Estancia con patio
2 de 6: Fachada
Fachada
3 de 6: Patio y escaleras
Patio y escaleras
4 de 6: Recámara con patio
Recámara con patio
5 de 6: Baño
Baño
6 de 6: Roof Garden
Roof Garden
1 de 6: Estancia con patio
1 / 6
Estancia con patio
2 de 6: Fachada
2 / 6
Fachada
3 de 6: Patio y escaleras
3 / 6
Patio y escaleras
4 de 6: Recámara con patio
4 / 6
Recámara con patio
5 de 6: Baño
5 / 6
Baño
6 de 6: Roof Garden
6 / 6
Roof Garden
Fechar
ID: EB-UM8277
Fora do mercado
$3.195.000 MXN
À venda

Departamento em Pré-venda no Térreo com Dois Pátios PrivadosDepartamento en Preventa en Planta Baja con Dos Patios Privados

Apartamento em Observatorio, Miguel Hidalgo

Esta propriedade foi despublicada em 29 de Janeiro.

1 dormitório
1 banheiro
1 vagas de estacionamento
53 m² de área total
Ano de construção: Em construção
Andar: Piso térreo
Descrição
Veja originalVeja em português

Preço: R$3.195.000
Entrega estimada: Junho–Julho de 2026

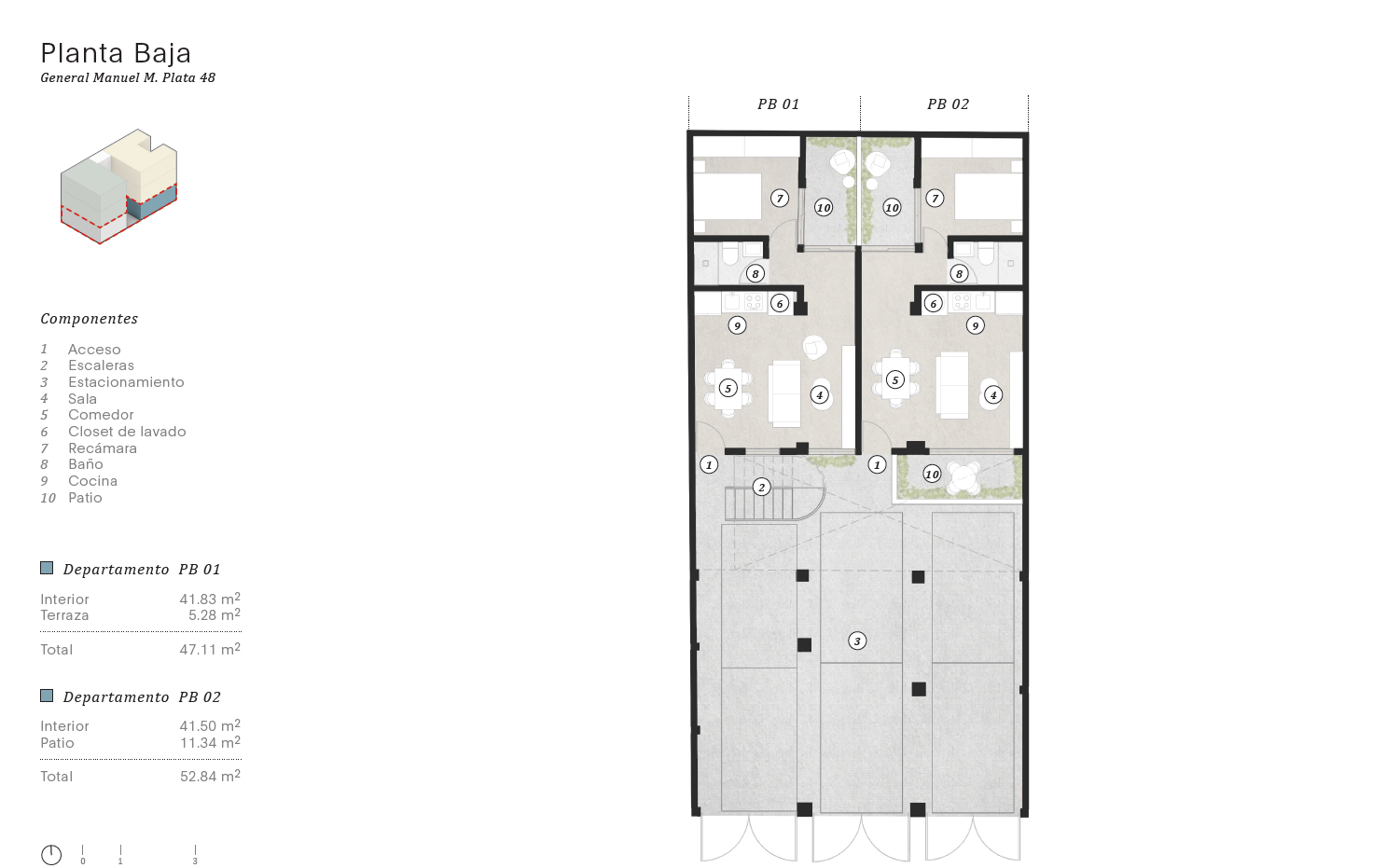
Uma casa que conecta funcionalidade, conforto e espaços ao ar livre.
O apartamento PB 02 oferece 41,5 m² de espaço interior, distribuídos inteligentemente para aproveitar cada metro, além de dois pátios privados ideais para relaxar ou desfrutar com seu animal de estimação.

✨ Principais características:

• 1 quarto com excelente iluminação natural ☀️
• 1 banheiro completo com acabamentos modernos
• Sala e jantar com design aberto
• Cozinha equipada e área de lavanderia
• Quintal privado de 5,28 m²
• Jardim frontal privado de 6,06 m², perfeito para um canto verde ou área de descanso 🪴
• 1 vaga de estacionamento

🏘️ Características do desenvolvimento:

• Jardim na cobertura comum
• Cisternas
• 6 caixas d'água (uma por apartamento)
• 6 vagas de estacionamento (uma por apartamento)
• Gaiolas de secagem ou depósito (a confirmar)

📍 Localização estratégica:
No coração de Miguel Hidalgo, com rápido acesso a Santa Fe, Constituyentes e Las Lomas. Perto de universidades, centros comerciais e áreas de trabalho.

💡 Invista em uma área com grande projeção e assegure um patrimônio em fase de pré-venda.
Precio: $3,195,000
Entrega estimada: Junio–Julio 2026

Un hogar que conecta funcionalidad, confort y espacios al aire libre.
El departamento PB 02 ofrece 41.5 m² interiores, distribuidos inteligentemente para aprovechar cada metro, además de dos patios privados ideales para relajarte o disfrutar con tu mascota.

✨ Características principales:

• 1 recámara con excelente iluminación natural ☀️
• 1 baño completo con acabados modernos
• Sala y comedor con diseño abierto
• Cocina equipada y área de lavado
• Patio trasero privado de 5.28 m²
• Patio delantero privado de 6.06 m², perfecto para un rincón verde o zona de descanso 🪴
• 1 cajón de estacionamiento

🏘️ Caracerísticas del desarrollo:

• Roof Garden común
• Cisterna
• 6 tinacos (uno por departamento)
• 6 lugares de estacionamiento (uno por departamento)
• Jaulas de tendido o bodega (por confirmar)

📍 Ubicación estratégica:
En el corazón de Miguel Hidalgo, con rápido acceso a Santa Fe, Constituyentes y Las Lomas. Cercano a universidades, centros comerciales y zonas de trabajo.

💡 Invierte en una zona con gran proyección y asegura un patrimonio en etapa de preventa.

Opções de financiamento
Veja originalVeja em português
  • Mortgage
  • FOVISSSTE
  • INFONAVIT / COFINAVIT
  • ISSFAM / Banjercito
  • PEMEX

Comodidades
Exterior
  • Cistern
  • Estacionamento Coberto
  • Facilidade de estacionar
  • Garagem
  • Pátio
  • Roof Garden
  • Geral
  • Acessibilidade para idosos
  • Acessível para deficientes físicos
  • Equipped Kitchen
  • Fitted Kitchen
  • Planta Baixa
  • Políticas
  • Animais de estimação permitidos
  • Permitido fumar
  • Localização
    Link de cópia

    General Manuel M Plata, Observatorio, Miguel Hidalgo, Cidade do México