Casa em Tres Marías, Morelia
Casa nova à venda Lomalta Tres Marías Morelia, Design moderno, vistaCasa nueva en venta Lomalta Tres Marías Morelia, Diseño moderno, vista
🔹 ANDAR TÉRREO:
-Sala e sala de jantar com design aberto
-Cozinha integrada com bancadas de granito
-Escritório (ideal como home office ou 4ª quarto)
-Banheiro social
-Lavanderia
-Amplo jardim
-Garagem para 2 carros
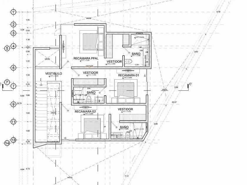
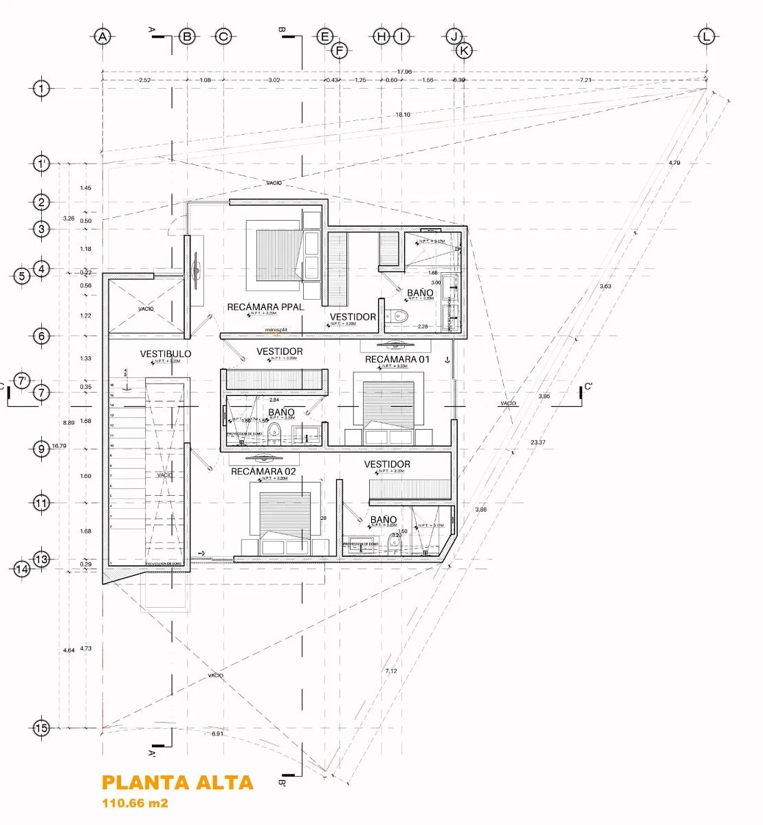
🔹 ANDAR SUPERIOR:
-3 quartos espaçosos, cada um com banheiro completo e closet
🔧 EQUIPADO COM:
-Cisterna de 10.000 litros
-Aquecedor de passagem
-Tanque de gás estacionário
📍 Viva na tranquilidade da natureza, com excelentes acessos a hospitais, escolas e centros comerciais.🔹 PLANTA BAJA:
-Sala y comedor con diseño abierto
-Cocina integral con cubiertas de granito
-Estudio (ideal como home office o 4ta recámara)
-Medio baño
-Cuarto de lavado
-Amplio jardín
-Cochera para 2 autos
🔹 PLANTA ALTA:
-3 recámaras amplias, cada una con baño completo y vestidor
🔧 EQUIPADA CON:
-Cisterna de 10,000 litros
-Calentador de paso
-Tanque estacionario de gas
📍 Vive en la tranquilidad de la naturaleza, con excelentes accesos a hospitales, escuelas y centros comerciales.
Anunciante
Dados do anúncio
- ID do anúncio EB-VR8314
- Tipo de operação Venda
- Tipo de imóvel Casa
- Bairro Tres Marías
