Casa em condomínio fechado em Capital Sur, El Marqués
🏡 Casa Moderna com 3 Quartos e Banheiro Privado | Capital Sur, El Marqués🏡 Casa Moderna con 3 Recámaras y Baño Privado | Capital Sur, El Marqués
🏡 Casa Moderna com 3 Quartos e Banheiro Privado | Capital Sur, El Marqués
Viva com amplitude, conforto e excelente distribuição em uma das áreas de maior crescimento de Querétaro 📈✨. Esta casa em Capital Sur é projetada para famílias que buscam espaços funcionais e quartos verdadeiramente amplos.
📐 Terreno: 115,50 m²
🏗 Construção: 157,80 m²
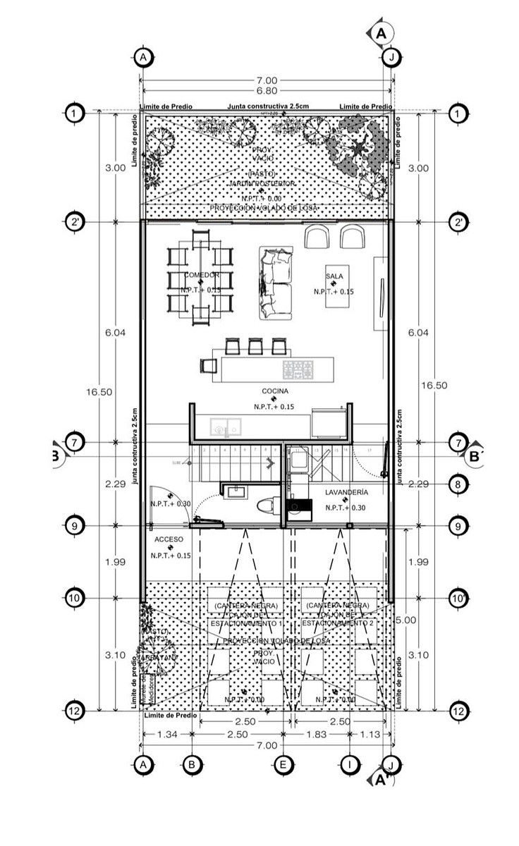
Térreo
• 🚗 Garagem para 2 carros
• 🚻 Lavabo para visitas
• 🛋️ Ampla sala e sala de jantar
• 🍽️ Cozinha com despensa
• 🧺 Área de lavanderia coberta e oculta
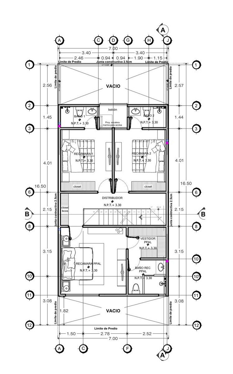
Andar Superior
• 🛏️ 3 quartos amplos (tamanho para cama king size)
• 🛁 Quarto principal com banheiro e closet
• 🛁 Quarto secundário 1 com banheiro e armário
• 🛁 Quarto secundário 2 com banheiro e armário
• 🗄️ Armário de roupas de cama
💰 Preço de lista: $3,390,000 MXN
📍 Capital Sur, El Marqués, Querétaro
Uma excelente opção para viver ou investir em uma área com alta valorização e conectividade.
📲 Agende sua visita e conheça hoje mesmo.🏡 Casa Moderna con 3 Recámaras y Baño Privado | Capital Sur, El Marqués
Vive con amplitud, comodidad y excelente distribución en una de las zonas con mayor crecimiento de Querétaro 📈✨.
Esta casa en Capital Sur está diseñada para familias que buscan espacios funcionales y recámaras verdaderamente amplias.
📐 Terreno: 115.50 m²
🏗 Construcción: 157.80 m²
Planta Baja
• 🚗 Cochera para 2 autos
• 🚻 Medio baño para visitas
• 🛋️ Amplia sala y comedor
• 🍽️ Cocina con alacena
• 🧺 Área de lavado techada y oculta
Planta Alta
• 🛏️ 3 recámaras amplias (tamaño para cama king size)
• 🛁 Recámara principal con baño y vestidor
• 🛁 Recámara secundaria 1 con baño y clóset
• 🛁 Recámara secundaria 2 con baño y clóset
• 🗄️ Clóset de blancos
💰 Precio de lista: $3,390,000 MXN
📍 Capital Sur, El Marqués, Querétaro
Una excelente opción para vivir o invertir en una zona con alta plusvalía y conectividad.
📲 Agenda tu visita y conócela hoy mismo.
Anunciante
Dados do anúncio
- ID do anúncio EB-VD5331
- Tipo de operação Venda
- Tipo de imóvel Casa em condomínio fechado
- Bairro Capital Sur
