Casa em condomínio fechado em Temozón Norte, Mérida
Casa à Venda com 4 quartos na Privada SolunaCasa en Venta con 4 recámaras en Privada Soluna
Residencia contemporánea diseñada para maximizar la luz natural, la ventilación cruzada y la conexión con el entorno.
Incluye un árbol interior como elemento protagónico que aporta identidad, frescura y un ambiente altamente estético.
Terreno: 300 m2
Construcción: 320 m2
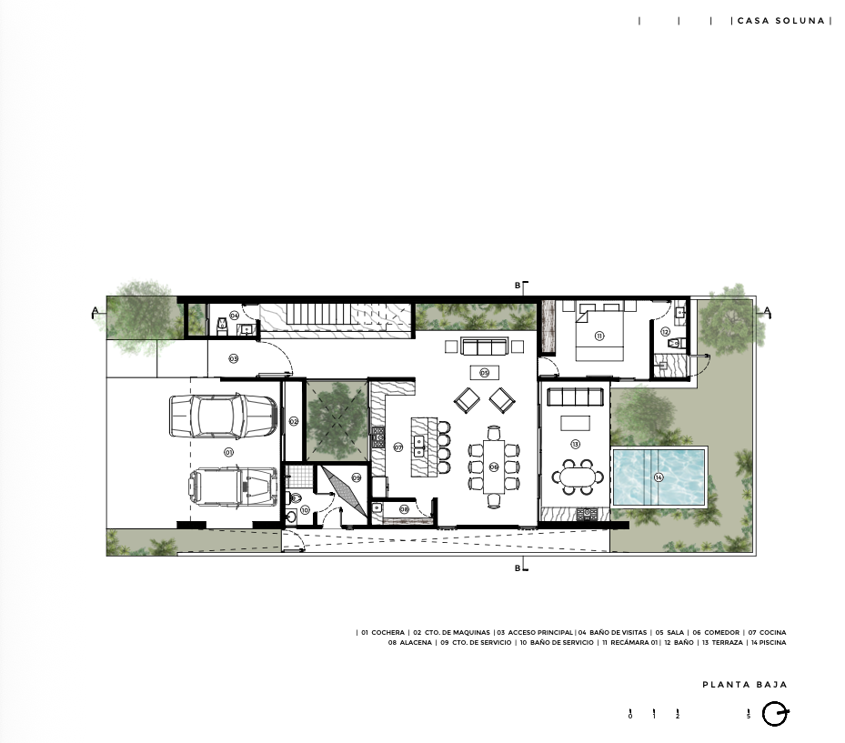
Planta Baja:
- Cochera techada para 2 autos
- Vestíbulo de acceso
- Patio interior con árbol natural
- Sala – comedor con vista a terraza y alberca
- Cocina integral con isla y amplia alacena
- Baño de visitas
- Recámara en planta baja con clóset, baño completo y acceso directo a la alberca
- Terraza techada
- Piscina con acabado en mármol
- Cuarto de servicio con baño completo
- Bodega exterior
Planta Alta:
- Recámara principal con balcón, walk-in closet y baño completo
- Dos recámaras secundarias con baño propio y walk-in closet
- Lavandería en planta alta con patio de tendido
- Clóset de blancos
Instalaciones:
- Preparación para minisplits
- Sistema hidráulico presurizado
- Cisterna y tinaco según normativas
- Sistema eléctrico con luminarias LED
- Preparación para paneles solares
- Preparación para sistema de riego automático
Acabados:
- Pisos de mármol blanco arena
- Muros interiores a tres capas (afine fino)
- Fachadas con piedras naturales según proyecto arquitectónico
- Carpintería en madera tono natural
- Cancelaría de PVC Aluplast
- Barandales y canceles de baño en cristal templado
- Iluminación LED en toda la vivienda
Forma de pago:
30% enganche
Saldo en entrega
Aceptamos Crédito Bancario o Recurso Propio
Fecha de entrega: Junio 2026
*Precio y disponibilidad sujetos a cambio sin previo aviso, actualizados quincenalmente*
*Imágenes únicamente para fines ilustrativos
*Solamente se incluye el equipamiento mencionado en la descripción*
* Este es un render que puede variar con respecto al resultado real.*
- Cistern
- Estacionamento Coberto
- Facilidade de estacionar
- Pátio
- Terraço
- Acessibilidade para idosos
- Storge Unit
- Kitchen
- Service Room
- Dois andares
- Private housing development
- Hydropneumatic
- Porteiro
- Quarto no térreo
- Segurança 24 horas
- Piscina
- Parque infantil
- Cancha de pádel
- Academía
- Banheira
- Games Room
- Salão de usos múltiplos
- Animais de estimação permitidos
Temozón Norte, Mérida, Yucatán
Anunciante
Dados do anúncio
- ID do anúncio EB-VH8667
- Tipo de operação Venda
- Tipo de imóvel Casa em condomínio fechado
- Bairro Temozón Norte
