Listas

OFICINA EN RENTA VALLE SAN PEDRO RESIDENCIAL SAN AGUSTIN

Guardado Guardar
1 de 6
2 de 6
3 de 6
4 de 6
5 de 6
6 de 6
1 de 6
1 / 6
2 de 6
2 / 6
3 de 6
3 / 6
4 de 6
4 / 6
5 de 6
5 / 6
6 de 6
6 / 6
Cerrar
ID: EB-VT2155
Publicado
$177,000 MXN
En Renta

OFICINA EN RENTA VALLE SAN PEDRO RESIDENCIAL SAN AGUSTIN

Oficina en Residencial San Agustin 1 Sector, San Pedro Garza García

GM22 BIENES RAICES
GM22 Bienes Raíces
0 baños, 5 medios baños
10 estacionamientos
231 m² de construcción
Año de construcción: 2014
Descripción

Oficina en renta en edificio con seguridad.

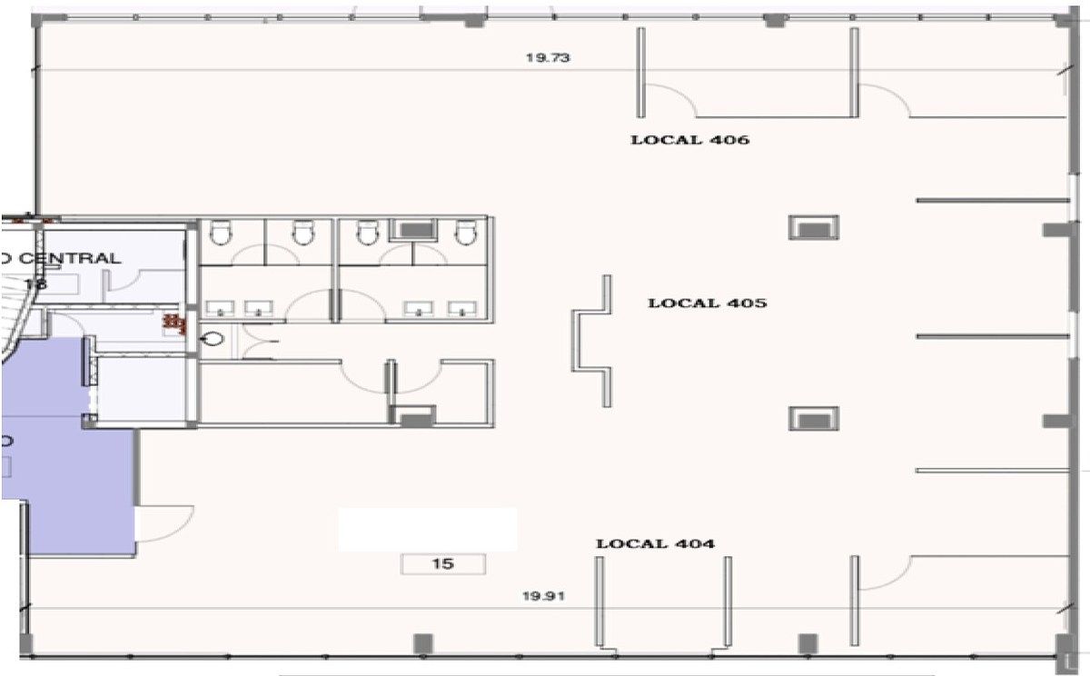
OFICINA 404

Recepción
8 Privado
área abierta de trabajo
cocineta
5 baños.
Terraza privativa.
NO incluye mobiliario.
15 Cajones de estacionamiento

358 m2 más 30 m2 de terraza
Precio de renta + IVA -retenciones según aplique + Cuota de Manteimiento por $ 29,196
NO incluye mobiliario.

Nota: Las especificaciones, características, imágenes y precios son ilustrativos y pueden cambiar o variar sin previo aviso.

Ubicación
Copiar enlace

Lázaro Cárdenas, Residencial San Agustin 1 Sector, San Pedro Garza García, Nuevo León

GM22 BIENES RAICES
GM22 Bienes Raíces
Enviar mensaje