Locales en renta sobre Rio Balsas

Guardado Guardar
1 de 4
2 de 4
3 de 4
4 de 4
1 de 4
1 / 4
2 de 4
2 / 4
3 de 4
3 / 4
4 de 4
4 / 4
Cerrar
ID: EB-VD2332
Publicado
$600 MXN por m²
En Renta

Locales en renta sobre Rio Balsas

Local comercial en Cuauhtémoc, Cuauhtémoc

78 m² de construcción
Descripción

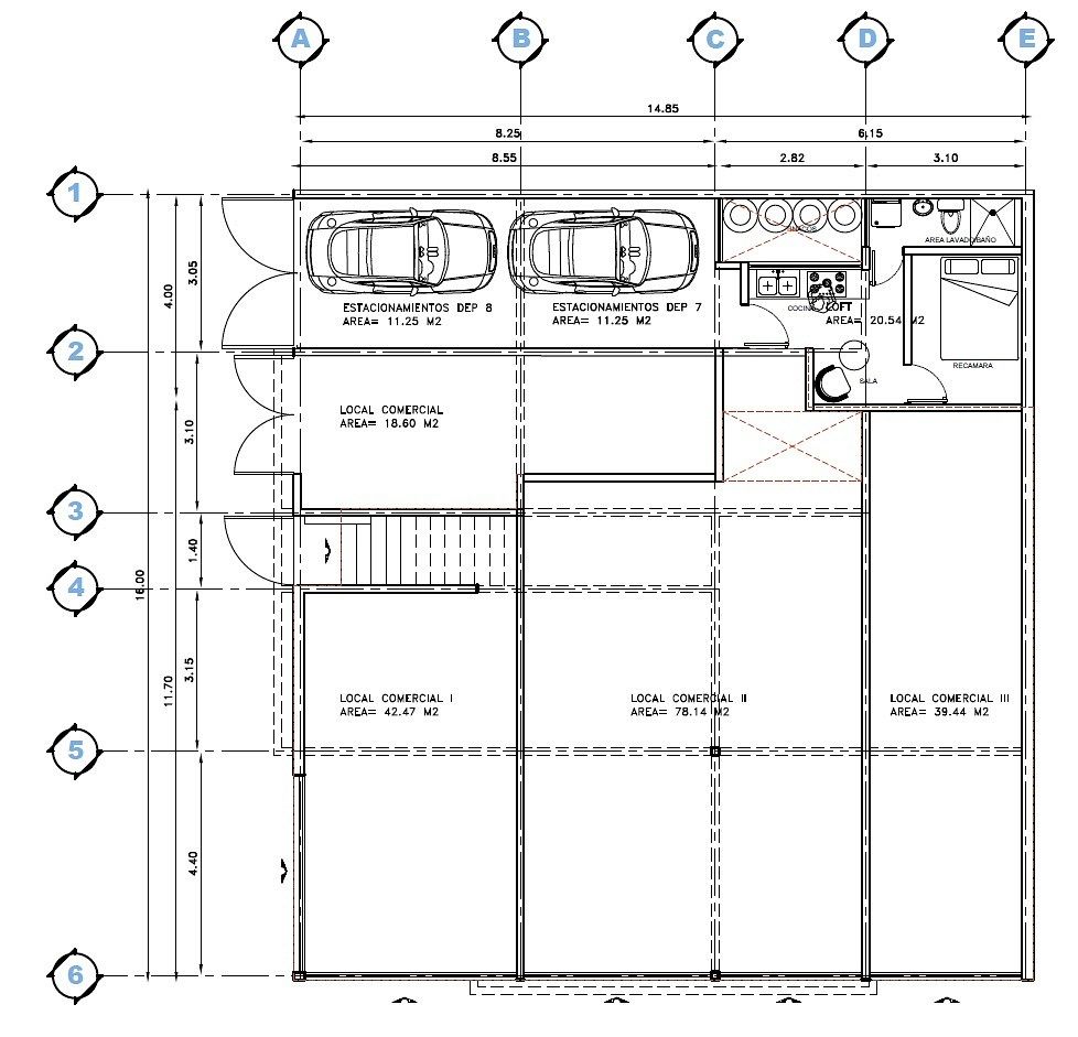
Hay 3 locales comerciales contiguos, juntos conforman toda la esquina.
Se puede rentar junto o separado con las siguientes subdivisiones:

Local completo:

Superficie: 160m2
Local A (esquina)
Sup. 42.47m2

Local B (derecha de esquina)
Sup. 78.14m2

Local C
Sup. 39.44m2

Permisos / papeles: Cuentan con uso de suelo de bajo impacto.
Zona altamente residencial.
Estado: Se entregan en obra gris. Se da tiempo de gracia para acondicionar.

Requisitos:
2 Meses de depósito
Aval con propiedad en CDMX ó Área metropolitana

*Sujeto a cambio de precio sin previo aviso. Inmobiliaria Maco no se hace responsable por cambios o modificaciones en los precios aquí descritos, ya que en ocasiones dichos ajustes suceden independientemente a su conocimiento.
a su conocimiento.

Ubicación
Copiar enlace

Cuauhtémoc, Cuauhtémoc, Ciudad de México

Enviar mensaje