Lists

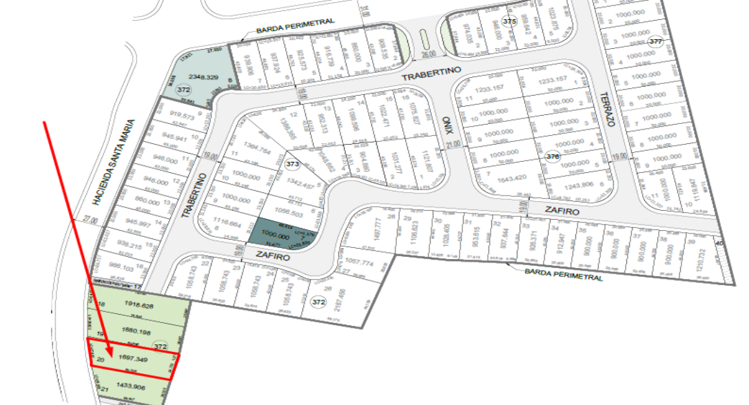
Land for Sale in Santa Catarina 1697.34 m2Terreno en Venta en Santa Catarina 1697.34 m2

Saved Save
1 of 4
2 of 4
3 of 4
4 of 4
1 of 4
1 / 4
2 of 4
2 / 4
3 of 4
3 / 4
4 of 4
4 / 4
Close
ID: EB-UK6817
Published
$9,335,419.50 MXN
For Sale

Land for Sale in Santa Catarina 1697.34 m2Terreno en Venta en Santa Catarina 1697.34 m2

Industrial Lot in Hacienda de Santa Catarina, Santa Catarina

Realty World Capital
Realty World Capital
1,697.34 m² Lot Size
65 m long
26 m lot width
Description
View originalView in English

Land 1697.35m² for sale in Santa Catarina. Industrial use, free of liens, all services available. Excellent investment opportunity. Strategic location in an industrial park with controlled access. Don't miss it!

Full description

Land for Sale in Santa Catarina, Nuevo León.

Unique investment opportunity for investors in an industrial land of 1,697.35 m² with industrial land use 🏭, located in an industrial park with controlled access 🔒.

Land features:

📐 Area: 1,697.35 m² (26 m front x 65 m depth)

🏗️ Land use: Industrial

📍 Location: Mid-block

🔓 Free of liens

Complete services available:

💧 Potable water and sanitary drainage

⚡ Electrical energy with connection

🌧️ Storm drainage

🗑️ Garbage collection

🛤️ Paved roads

Competitive advantages:

🔒 Controlled access for greater security

🏭 Located in an industrial park, ideal for logistics, manufacturing, or distribution projects

📈 Area with high growth and appreciation potential

This land offers an excellent opportunity for investors looking to expand their operations or start new projects in a strategic area of Santa Catarina. Competitive price in line with market value.

Contact us to schedule an appointment and explore the possibilities of this industrial land. Don't miss this unique investment opportunity in one of the most important industrial areas of Nuevo León.
Terreno 1697.35m² en venta en Santa Catarina. Uso industrial, libre gravamen, todos los servicios. Excelente oportunidad para inversión. Ubicación estratégica en parque industrial con acceso controlado. ¡No la pierdas!


Descripción completa

Terrenos en Venta en Santa Catarina, Nuevo León.

Oportunidad única de inversión para inversionistas en un terreno industrial de 1,697.35 m² con uso de suelo industrial 🏭, ubicado en un parque industrial con acceso controlado 🔒.

Características del terreno:

📐 Superficie: 1,697.35 m² (26 m de frente x 65 m de fondo)

🏗️ Uso de suelo: Industrial

📍 Ubicación: Mitad de cuadra

🔓 Libre de gravamen

Servicios completos disponibles:

💧 Agua potable y drenaje sanitario

⚡ Energía eléctrica con acometida

🌧️ Drenaje pluvial

🗑️ Recolección de basura

🛤️ Vialidades pavimentadas

Ventajas competitivas:

🔒 Acceso controlado para mayor seguridad

🏭 Ubicado en un parque industrial, ideal para proyectos logísticos, manufactura o distribución

📈 Zona con alto potencial de crecimiento y valorización

Este terreno ofrece una excelente oportunidad para inversionistas que buscan expandir sus operaciones o iniciar nuevos proyectos en una zona estratégica de Santa Catarina. Precio competitivo acorde al valor de mercado.

Contáctanos para agendar una cita y explorar las posibilidades de este terreno industrial. No dejes pasar esta oportunidad única de inversión en una de las zonas industriales más importantes de Nuevo León.

Location

Hacienda de Santa Catarina, Santa Catarina, Nuevo León

Realty World Capital
Realty World Capital
Send message