Boards
This property is not available.

Land of 3.50 hectares in García, N.L. Northeastern BypassTerreno de 3.50 hcts. en García, N.L. Libramiento Noreste

Saved Save
1 of 6
2 of 6
3 of 6
4 of 6
5 of 6
6 of 6
1 of 6
1 / 6
2 of 6
2 / 6
3 of 6
3 / 6
4 of 6
4 / 6
5 of 6
5 / 6
6 of 6
6 / 6
Close
This property is not available.
ID: EB-LL3552
Published
$1,550 per m²
For Sale

Land of 3.50 hectares in García, N.L. Northeastern BypassTerreno de 3.50 hcts. en García, N.L. Libramiento Noreste

Industrial Lot in Ciudad Industrial Mitras, García

Miguel Carmona
Published by Miguel Carmona
e-inmuebles
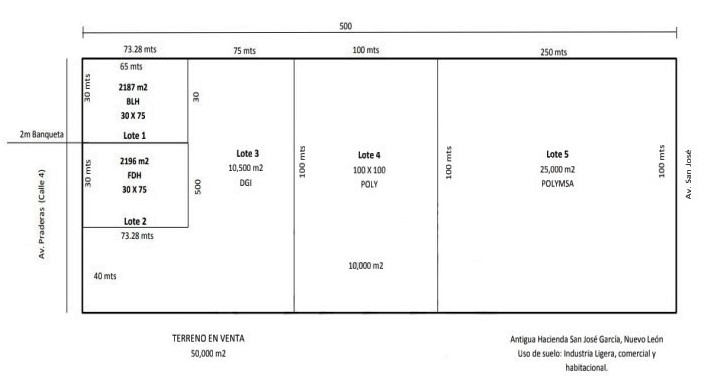
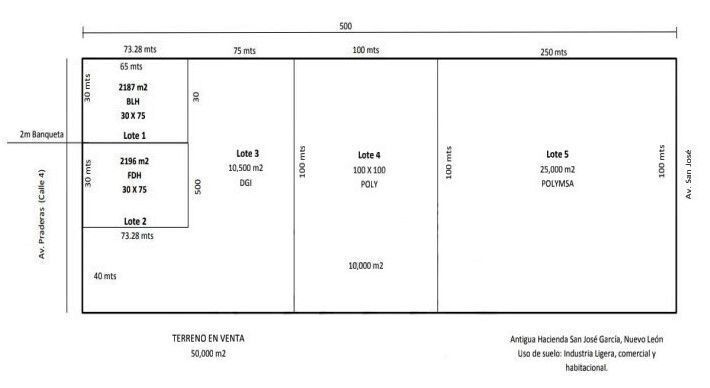
35,000 m² Lot Size
Description
View originalView in English

It continues to the Mitras City Industrial Park. The Northeastern Bypass is 150 meters away, so it has quick access to the main avenues and roads. It has a double front. It can be sold in parts. All available services. BlueprintEsta continuo al Parque Industrial Ciudad Mitras. El Libramiento Noreste esta a 150 mts. por lo que tiene acceso rápido a las principales avenidas y carreteras. Tiene doble frente. Se puede vender en partes. Todos los servicios disponibles. Plano

Location
Copy link

Ciudad Industrial Mitras, García, Nuevo León

Miguel Carmona
Miguel Carmona
e-inmuebles