Boards

INCOME IN SANTA FERENTA EN SANTA FE

Saved Save
1 of 6
2 of 6
3 of 6
4 of 6
5 of 6
6 of 6
1 of 6
1 / 6
2 of 6
2 / 6
3 of 6
3 / 6
4 of 6
4 / 6
5 of 6
5 / 6
6 of 6
6 / 6
Close
This property is not available.
ID: EB-QF2914
Published
US$ 25,935
For Rent

INCOME IN SANTA FERENTA EN SANTA FE

Office in Santa Fe Cuajimalpa, Cuajimalpa de Morelos

FOREVER HOME
Published by FOREVER HOME
Forever Home Grupo Inmobiliario
1,107.91 m² total space
1,235.06 m² Lot Size
Maintenance: 4940.24 USD
Description
View originalView in English

APPOINTMENTS WITH ANTICIPATION

Your new office in the heart of Santa Fe
RENTAL SPACES
Find the ideal space
Give image and professionalism to your company, in a building with modern architecture, ready facilities, conditioned and adaptable spaces to the structure of your operation.

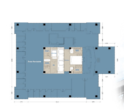
Floor 4
1,235.06 m2
Rentable area: 1,235.06 m2
Usable area: 1,107.91 m2
Rental price per m2: $21 USD + VAT
Maintenance: $4 USD + VAT per m2

Level 4 - Office A

It has two access entrances with glass door, one for reception, 27 private offices, one for management with bathroom, 3 meeting rooms, area for call center, kitchen area with shelves and bar, open areas for workstations, built-in filing cabinets, ceiling, carpeted floors, lamps with motion sensors among others.
Existing facilities of air conditioning, electrical power installation (new user must make their light contract with CFE), site room with voice and data cabling, sprinkler network and smoke detectors.

PARKING
One parking space corresponds for each 30 rentable square meters

Amenities
You will have access to different services and activities for your safety and comfort

Private security
Cafeterias
Air conditioning
ATMs
Access control
Beauty salon
Elevators
Gym
Warehouse
Dental office
Helipad
Convenience store
Valet Parking

LEVEL 4

https://my.matterport.com/show/?m=QdUqfP
CITAS CON ANTICIPACION

Tu nueva oficina en el corazón de Santa Fe
ESPACIOS EN RENTA
Encuentra el espacio ideal
Brinda imagen y profesionalismo a tu empresa, en un edificio con moderna arquitectura, instalaciones listas, espacios acondicionados y adaptables a la estructura de tu operación.

Piso 4
1,235.06 m2
Superficie rentable: 1,235.06 m2
Superficie útil: 1,107.91 m2
Precio de Renta por m2: $21 USD + IVA
Mantenimiento: $4 USD + IVA por m2

Nivel 4– Oficina A

Cuenta con dos entradas de acceso con puerta de cristal ,una para recepción, 27
privados una para dirección con baño, 3 salas de juntas, área para centro de atención telefónica ( call center), área de cocina con entrepaños y barra, áreas abiertas para estaciones de trabajo, archiveros empotrados, plafón, pisos alfombrados, lámparas con sensores de movimiento entre otros.
Instalaciones existentes de aire acondicionado instalación energía eléctrica (nuevo
usuario deberá realizar su contrato de luz ante CFE), cuarto de site con cableado
de voz y datos, red de rociadores y detectores de humo.

ESTACIONAMIENTO
Corresponde por arrendamiento un cajón por cada 30 metros cuadrados rentable

Amenidades
Tendrás a tu alcance distintos servicios y actividades para tu seguridad y comodidad

Seguridad privada
Cafeterías
Aire acondicionado
Cajero automáticos
Control de acceso
Salón de Belleza
Elevadores
Gimnasio
Bodega
Consultorio dental
Helipuerto
Tienda de conveniencia
Valet Parking

NIVEL 4

https://my.matterport.com/show/?m=QdUqfP

Amenities
Exterior
  • Covered parking
  • Street parking
  • General
  • Accessibility for elderly
  • Handicap accessible
  • Air conditioning
  • Equipped Kitchen
  • Elevator
  • Office
  • 24 Hour Security
  • Single story
  • Recreation
  • Gym
  • Location
    Copy link

    Santa Fe Cuajimalpa, Cuajimalpa de Morelos, Ciudad de México

    FOREVER HOME
    FOREVER HOME
    Forever Home Grupo Inmobiliario