Boards

New Warehouse for RENT in Elite Nextipac II ✈️Nueva Bodega en RENTA en Elite Nextipac II ✈️

Saved Save
1 of 5
2 of 5
3 of 5
4 of 5
5 of 5
1 of 5
1 / 5
2 of 5
2 / 5
3 of 5
3 / 5
4 of 5
4 / 5
5 of 5
5 / 5
Close
ID: EB-UL7469
Published
$23,000 MXN
For Sale

New Warehouse for RENT in Elite Nextipac II ✈️Nueva Bodega en RENTA en Elite Nextipac II ✈️

Commercial Storage Unit in Nextipac, Zapopan

Published by Pulppo.com
0 parking spaces
1,064 m² Lot Size
Year Built: 2026
Maintenance: 0
Description
View originalView in English

[BZB-598]
Available warehouse within the prestigious Elite Nextipac II Industrial Park, part of the renowned ELITE family.

Located in the Norponiente area of Guadalajara City, in the Municipality of Zapopan, Jalisco, between the localities of Nextipac and Tesistán.

Just 08 minutes from the road to Vallarta and 15 minutes from the Zona Real.

Price per m²: $135 MXN

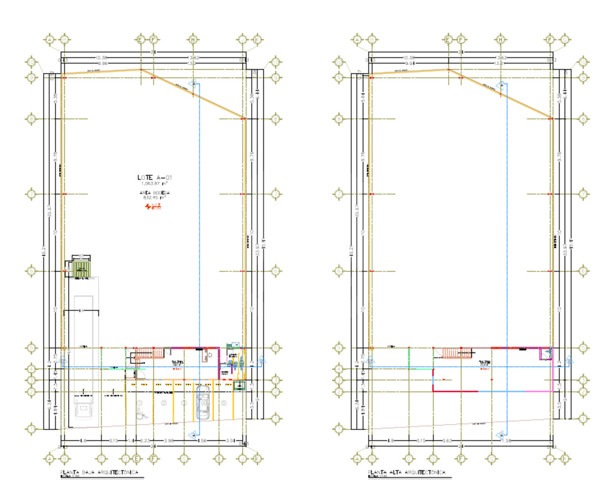
Warehouse A-01:
Land area: 1,063.97 m²
Warehouse area: 832.45 m²
Offices: Ground floor 64.81 / Upper floor 90.38 m²
Total constructed: 987.64 m²

Includes:
Covered dock
Loading and unloading ramp
Energy: 20 KVA’s
Water and voice/data supply at ground level

Amenities:
Outdoor dining area
Event terrace
Parking
Rest and cleaning room
Business center
Drop lot area
Double fire protection network
Foundation platform
Intelligent process automation
Hydraulic concrete roads
Perimeter wall
Guardhouse
CCTV
Perimeter roads
Machine room
[BZB-598]
Disponible bodega dentro del prestigioso Parque Industrial Elite Nextipac II, parte de la reconocida familia ELITE.

Ubicado en la zona Norponiente de la Ciudad de Guadalajara, en el Municipio de Zapopan, Jalisco, entre las localidades de Nextipac y Tesistán.

A tan solo 08 minutos de la Carretera a Vallarta y 15 minutos de la Zona Real.

Precio x m²: $135 MXN

Bodega A-01:
Superficie terreno: 1,063.97 m²
Área de nave: 832.45 m²
Oficinas: PB 64.81 / PA 90.38 m²
Total construido: 987.64 m²

Incluye:
Andén techado
Rampa de carga y descarga
Energía: 20 KVA’s
Suministro de agua y voz/datos a pie de terreno

Amenidades:
Comedor al aire libre
Terraza para eventos
Estacionamiento
Sala de descanso y aseo
Business center
Área drop lote
Doble red contra incendios
Plataforma de cimentación
Automatización de procesos inteligentes
Vialidades en concreto hidráulico
Barda perimetral
Caseta de vigilancia
CCTV
Vialidades perimetrales
Cuarto de máquinas

Amenities
Exterior
  • Cistern
  • Street parking
  • General
  • 24 Hour Security
  • Location
    Copy link

    Nextipac, Zapopan, Jalisco

    Pulppo.com
    Send message