Lot in Las Cañadas, Zapopan
LAS CAÑADAS ADDELIA LAND PRE-SALELAS CAÑADAS ADDELIA PRE-VENTA DE TERRENOS
Addelia - Lots in Nuevo Coto within Las Cañadas
ADDELIA: Habitat Mas
Swimming Pool
Club House
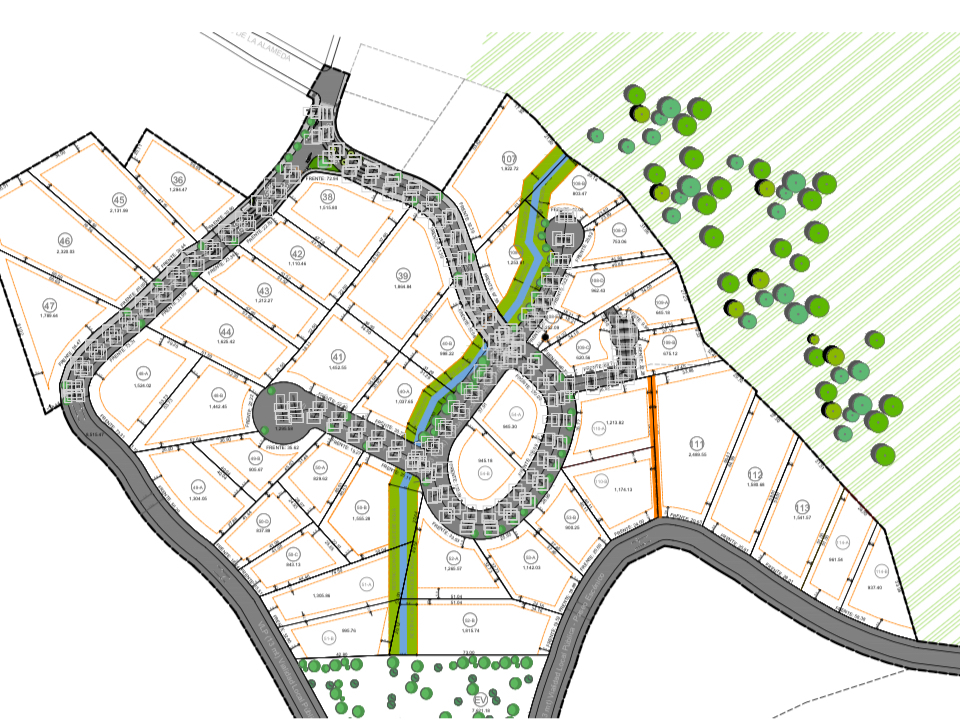
Live in the new area of the Las Cañadas subdivision. Enjoy spacious areas, green spaces, security, and beautiful views. This development of 35 lots will have a booth with 24/7 surveillance and is located near the German School, Cañadas Community Center, the Country Club, and El Bosque del Centinela.
From 622 to 2,497 square meters.
from $6317 per square meter to $10,362
available lots.Addelia - Lotes en Nuevo Coto dentro de las Cañadas
ADDELIA: Hábitat Mas
Alberca
Casa Club
Vive en la nueva zona del fraccionamiento Las Cañadas. Disfruta de espacios amplios, áreas verdes, seguridad y vistas hermosas. Este desarrollo de 35 lotes tendrá caseta con vigilancia 24/7 y se ubica cerca de el Colegio Alemán, Cañadas Community Center, el Country Club y El Bosque del Centinela.
Desde 622 a 2,497 metros cuadrados.
desde $6317 el metro cuadrado a $10,362
lotes disponibles.
- Street parking
- Garden
- Terrace
- 24 Hour Security
- Pool
- Fire pit
