Boards

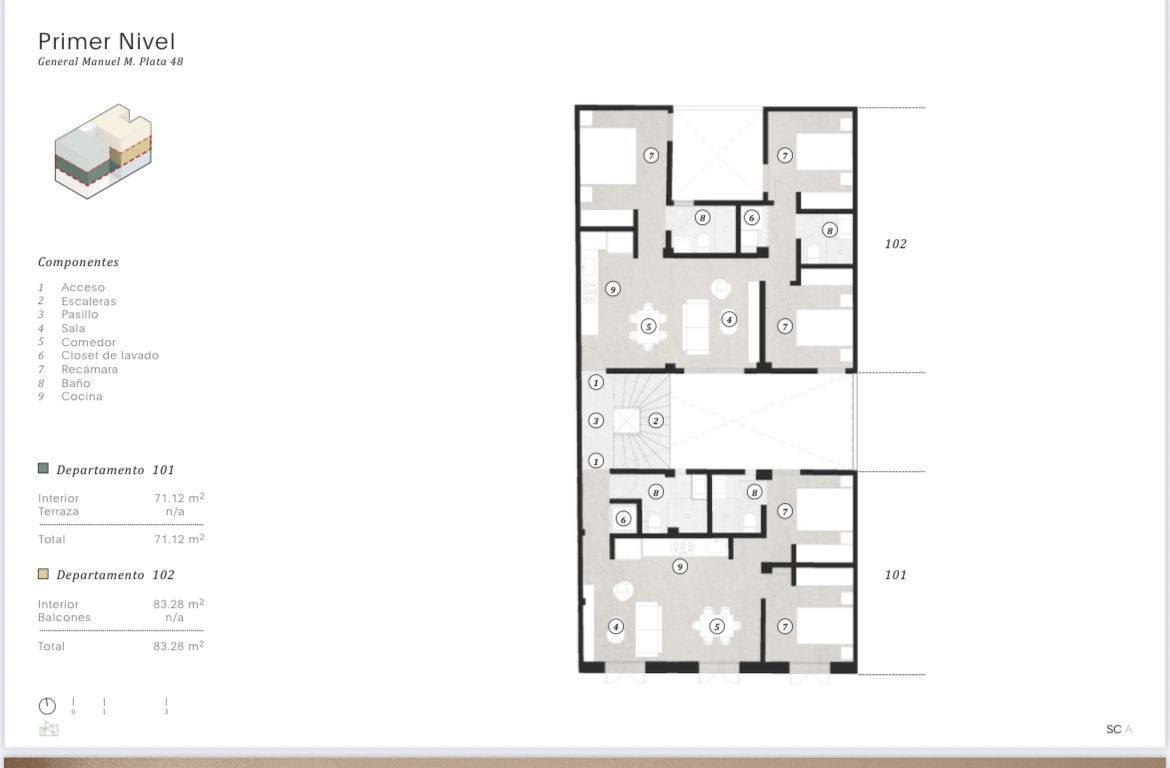
APARTMENT 101DEPARTAMENTO 101

Saved Save
1 of 10
2 of 10
3 of 10
4 of 10
5 of 10
6 of 10
7 of 10
8 of 10
9 of 10
10 of 10
1 of 10
1 / 10
2 of 10
2 / 10
3 of 10
3 / 10
4 of 10
4 / 10
5 of 10
5 / 10
6 of 10
6 / 10
7 of 10
7 / 10
8 of 10
8 / 10
9 of 10
9 / 10
10 of 10
10 / 10
Close
ID: EB-UL6545
Published
$3,995,000
For Sale

APARTMENT 101DEPARTAMENTO 101

Apartment in Observatorio, Miguel Hidalgo

Valentinos Home
Published by Valentinos Home
Inmobiliaria de Valentinos Home
2 bedrooms
2 bathrooms
1 parking spaces
71 m² total space
Year Built: Under Construction
Floor: 1
Description
View originalView in English

🏙️ Preventa · Departamento 101 · General Manuel Plata, Col. Observatorio · Miguel Hidalgo

Precio: $3,995,000 MXN
Entrega estimada: Quinto bimestre de 2026
Superficie total: 71 m² habitables
Ubicación: Exterior · Primer piso

✨ Características principales

2 recámaras amplias con excelente iluminación natural

2 baños completos con acabados contemporáneos

Cocina integral abierta con barra de granito

Estancia amplia con ventanal hacia el exterior

1 lugar de estacionamiento

Ubicación exterior, con gran entrada de luz y ventilación

Diseño moderno y funcional, ideal para familias o inversión

📍 Ubicación

En General Manuel Plata, colonia Observatorio, Miguel Hidalgo.
Zona con alta proyección de plusvalía y excelente conectividad hacia Constituyentes, Santa Fe y Tacubaya.
Cercano a servicios, escuelas y centros comerciales.

💫 Ventajas de invertir en preventa

Precio preferencial antes de entrega

Facilidades de pago personalizadas

Plusvalía garantizada al 2026

Proyecto con diseño moderno y acabados de calidad

📞 Valentinos Home
Tu próxima propiedad, hoy a precio de preventa.
Agenda una cita y conoce el desarrollo completo.

Financing Options
View originalView in English
  • Mortgage
  • INFONAVIT / COFINAVIT

Location
Copy link

Observatorio, Miguel Hidalgo, Ciudad de México

Valentinos Home
Valentinos Home
Inmobiliaria de Valentinos Home
Send message