$4,800,000 MXN
For Sale
House in Valle de Bravo, Valle de Bravo
house for sale in Valle de Bravocasa en venta valle de bravo
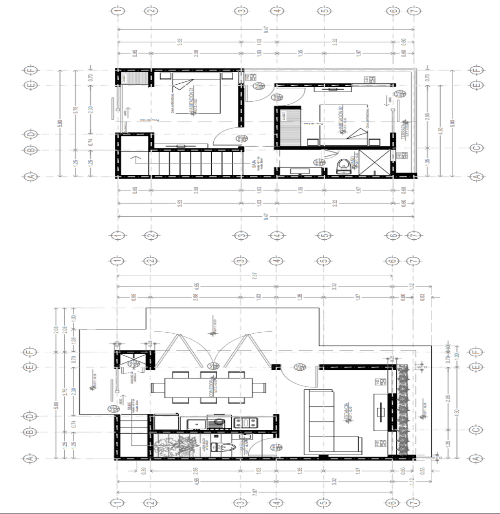
Casa en preventa
Construida en dos niveles, conformada de la siguiente manera:
Plata alta: 2 recámaras con balcón y un baño completo.
Planta baja: Sala, comedor, cocina abierta con alacena, medio baño y terraza con jardín y garaje para 2 autos.
Con avance en obra.
Servicios centrados de agua y luz.
Escriturada.
Terreno: 300 m² Construcción: 100 m²
Amenities
Exterior
- Patio
General
- Kitchen
Publisher
Inmobiliaria de NOVA TERRA BIENES RAÍCES
Listing Data
- Listing ID EB-UJ5925
- Operation Type Sale
- Property Type House
- Neighborhood Valle de Bravo
