House in Lomas del Dorado, Boca del Río
House for sale in Lomas del DoradoCasa en venta en Lomas del Dorado
A new housing project for sale with 3 bedrooms awaits you in Fracc. Lomas del Dorado, just a few minutes from the El Dorado shopping center and the Boca del Río area, Ver.
The features of this house consist of the following:
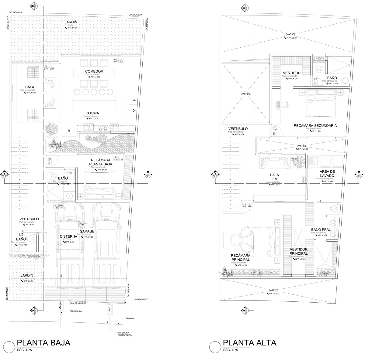
Ground floor:
- Garage for 2 cars.
- Cistern of 8,000 liters.
- Living room.
- Dining room.
- Half bathroom for guests.
- Bedroom with full bathroom.
- Integral kitchen.
- Front and back garden.
Upper floor:
- TV room.
- Laundry area.
- Master bedroom with dressing room and bathroom.
- Secondary bedroom with dressing room and bathroom.
Approximate monthly maintenance: $2,140.00 pesos
*Note: in the "attached" section of this file, you will find the distribution plans of this property.
*IMPORTANT: The price is subject to change without prior notice.Un nuevo proyecto de vivienda en venta de 3 habitaciones te espera en Fracc. Lomas del Dorado, a tan solo unos minutos del centro comercial El Dorado y de la zona de Boca del Río, Ver.
Las características que conforman esta casa constan de lo siguiente:
Planta baja:
- Cochera para 2 autos.
- Cisterna de 8,000lts.
- Sala.
- Comedor.
- Medio baño para visitas.
- Habitación con baño completo.
- Cocina integral.
- Jardín frontal y trasero.
Planta alta:
- Sala de TV.
- Área de lavado.
- Habitación principal con vestidor y baño.
- Habitación secundaria con vestidor y baño.
Mantenimiento mensual aproximado: $2,140.00 pesos
*Nota: en la sección de "adjuntados" de ésta ficha, encontrarás los planos de distribución de este inmueble.
*IMPORTANTE: El precio está sujeto a cambios sin previo aviso.
- Cistern
- Covered parking
- Street parking
- Garage
- Garden
- Accessibility for elderly
- Handicap accessible
- Kitchen
- Fitted Kitchen
- Double story
- Private housing development
- Door man
- Ground floor bedroom
- 24 Hour Security
- Pets allowed
- Pool
- Playground
- Gym
- Padel courts
- Multipurpose room
