Boards

House (M116) for Sale in Alzare, DzityaCasa(M116) en Venta en Alzare, Dzitya

Saved Save
1 of 5
2 of 5
3 of 5
4 of 5
5 of 5
1 of 5
1 / 5
2 of 5
2 / 5
3 of 5
3 / 5
4 of 5
4 / 5
5 of 5
5 / 5
Close
ID: EB-SI4067
Published
$3,130,675 MXN
For Sale

House (M116) for Sale in Alzare, DzityaCasa(M116) en Venta en Alzare, Dzitya

House in Dzityá, Mérida

Mónica Ojeda Sierra
Horizonte Inmobiliario
2 bedrooms
2 bathrooms
2 parking spaces
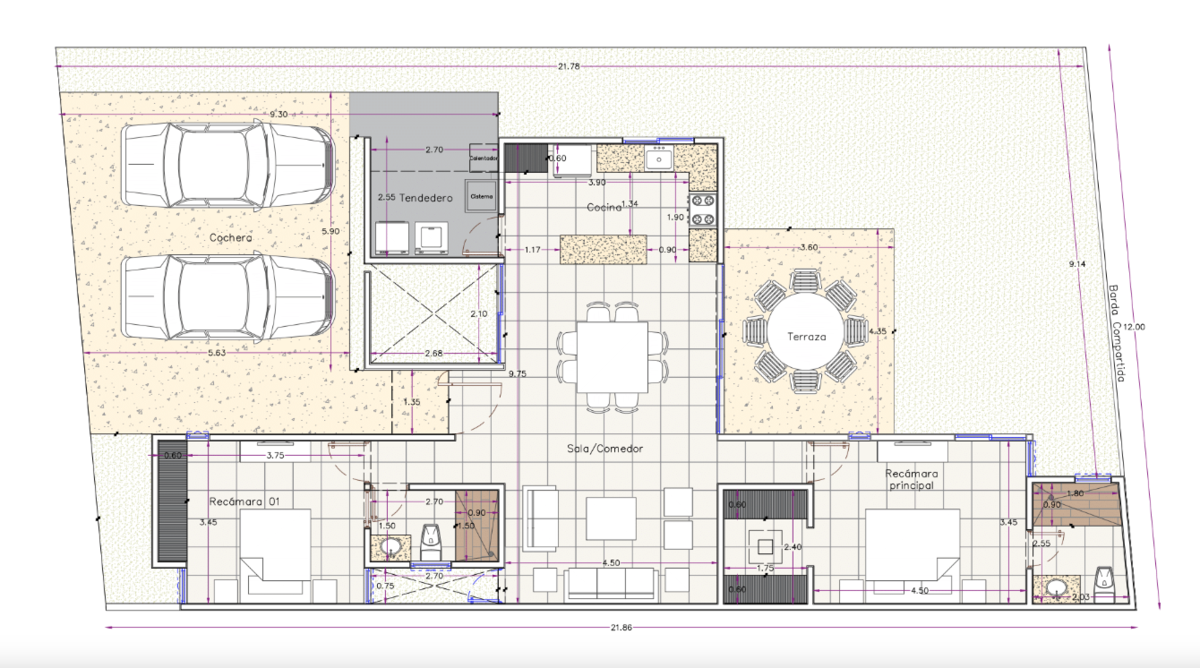
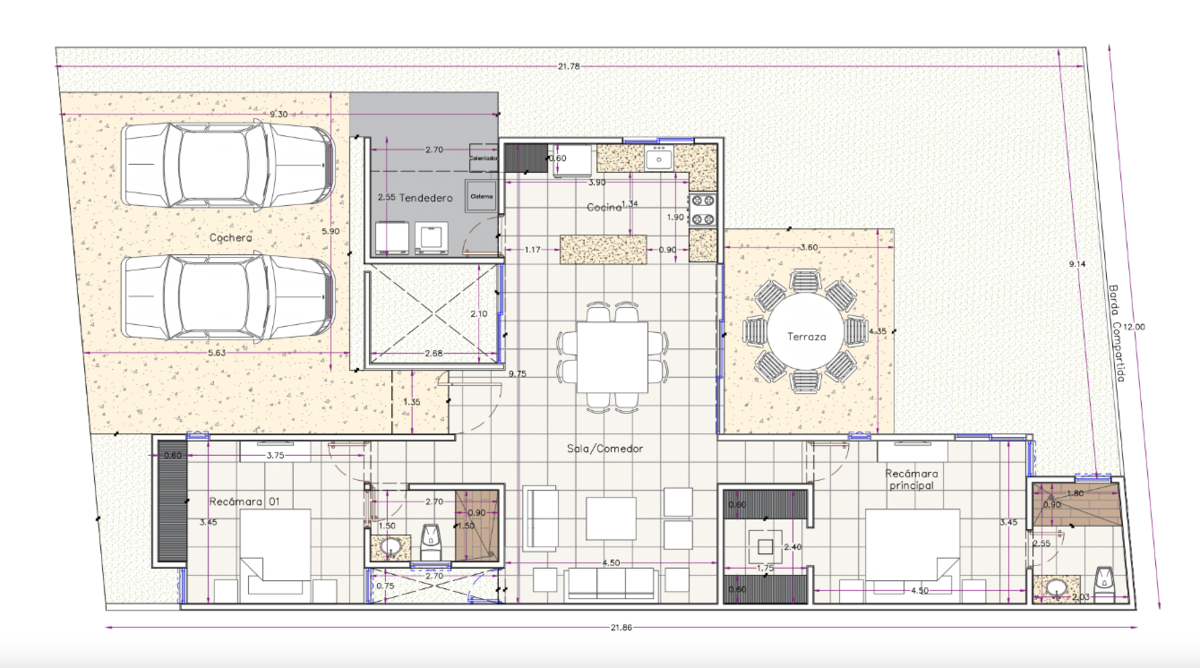
116 m² total space
261.28 m² Lot Size
21.8 m long
12 m lot width
Year Built: New
Number of Floors in the Building: 1
Maintenance: N/A
Description
View originalView in English

ALZÁRE RESIDENCIAL is a development located in Dzityá, Mérida. Its finishes make it stand out as a modern residence for you to live with the best comforts.
Our two models are designed with comfortable spaces to enjoy and have quality moments with your family or friends.
Thanks to its proximity, it has schools, pharmacies, parks, restaurants, and everything you need at your fingertips, and it also has an agreement for the "Grand Real Club Deportivo".

Land: 261.27 M2 (12 x 21.8)
Construction: 116m2

FEATURES MODEL 1 FLOOR:
Living room, dining room, and kitchen in an open layout.
Kitchen with an island covered with granite, includes lower cabinets.
Half bathroom for guests.
Service hallway.
Covered laundry/service area.
Garage for 2 cars.
Terrace.
Main bedroom with closet and full bathroom.
Secondary bedroom with bathroom.

Equipment:
Cistern
Pressurizing pump
Centrifugal pump
Rear perimeter wall with finish.
Granite kitchen countertops model Ubatuva Verde or similar in quality and price.
Bathroom countertops covered with Travertine stone or similar in quality and price.

Add-ons:
Parking roof: $199,300.00
Terrace roof: $95,000.00
Pool: $164,300.00
Junior bedroom P.A. $264,000.00
Large bedroom P.A. $295,000.00
Stairs P.A. $253,500.00

Delivery date: Immediate delivery and July 2026.
Immediate deed.

Reservation: $10,000.00 (7 days)
Down payment: 10% if it is only the value of the house or 15% if it is with add-ons.

Payment methods: Bank credit, own resources, banejercito, infonavit, and cofinavit.

E:713. Price with anniversary discount (this house does not have the pool add-on available).
*Price and availability are subject to change without prior notice, updated biweekly.*
*Images are for illustrative purposes only.*
*Only the equipment mentioned in the description is included.*
*This is a render that may vary from the actual result.*
ALZÁRE RESIDENCIAL, es un desarrollo ubicado en Dzityá, Mérida. Sus acabados hacen que destaque como una residencia moderna para que vivas con las mejores comodidades.
Nuestros dos modelos están diseñados con espacios confortables para disfrutar y tener momentos de calidad con tu familia o amigos.
Gracias a su cercanía, cuenta con escuelas, farmacias, parques, restaurantes, y todo lo que necesites a tu alcance, así también cuenta con un acuerdo para el “Grand Real Club Deportivo”.

Terreno: 261.27 M2(12 x 21.8)
Construcción: 116m2

CARACTERÍSTICAS MODELO 1 PLANTA:
Sala, comedor y cocina corridos.
Cocina con isla forrada con granito, incluye gavetas inferiores.
Medio baño de visitas.
Pasillo de servicio
Área lavado/servicio techada.
Garaje para 2 autos.
Terraza.
Recámara principal con clóset y baño completo
Recámara secundaria con baño


Equipamiento:
Cisterna
Bomba presurizadora
Bomba centrífuga
Barda perimetral trasera con acabado
Mesetas de cocina de granito modelo Ubatuva Verde o similar en calidad y precio.
Meseta en baños forrada de piedra Travertino o similar en calidad y precio

Adicionales:
Techo de estacionamiento: $ 199,300.00
Techo de la terraza: $95,000.00
Piscina: $164 300.00
Recámara Jr. P.A. $264,000.00
Recámara Grande P.A. $295,000.00
Escalera P.A. $253,500.00

Fecha de entrega: Entrega Inmediata y Julio 2026
Escrituración Inmediata

Apartado: $10,000.00 (7 días)
Enganche: 10% si solo es el valor de la casa o 15% si es con adicionales.

Formas de pago: Crédito bancario, recurso propio, banejercito, infonavit y cofinavit.


E:713. Precio con descuento por aniversario (esta casa no tiene disponible el adicional de piscina)
*Precio y disponibilidad sujetos a cambio sin previo aviso, actualizados quincenalmente*
*Imágenes únicamente para fines ilustrativos
*Solamente se incluye el equipamiento mencionado en la descripción*
* Este es un render que puede variar con respecto al resultado real.*

Financing Options
View originalView in English
  • Mortgage
  • INFONAVIT / COFINAVIT
  • ISSFAM / Banjercito

Amenities
Exterior
  • Cistern
  • Street parking
  • Patio
  • Terrace
  • General
  • Kitchen
  • Single story
  • Policies
  • Pets allowed
  • Location

    Dzityá, Mérida, Yucatán

    Mónica Ojeda Sierra
    Horizonte Inmobiliario
    Send message