Casa em condomínio fechado em Conkal, Conkal
Casa(250) à Venda na Privada Nadira, ConkalCasa(250) en Venta en Privada Nadira, Conkal
Propriedade privada exclusiva localizada ao norte de Mérida, cercada por desenvolvimentos residenciais de primeira classe.
Está localizada a 3 minutos da rodovia Mérida-Motul, a 16 minutos do Periférico de Mérida, a 18 minutos da Universidade Modelo, a 20 minutos da Plaza Altabrisa e do hospital Star Medica, e a apenas 36 minutos da costa yucateca com o Porto de Chicxulub.
Terreno: 320 m2 (10 mts. x 32 mts.)
Construção: 250 m2
Orientação: Norte – Sul
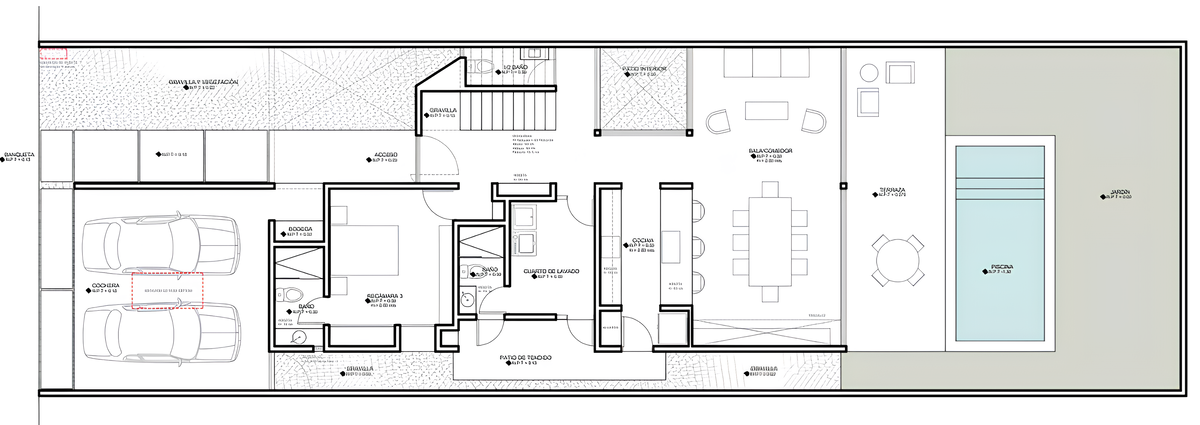
TÉRREO:
Estacionamento para 2 carros cobertos
Depósito
Pátio de serviço
Lavabo
Pátio interno
Sala
Sala de jantar
Cozinha
Lavanderia com banheiro completo
Quarto no térreo com banheiro completo e área de closet
Terraço
Piscina
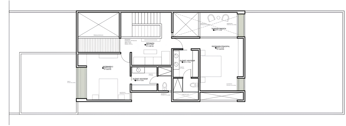
ANDAR SUPERIOR:
Sala de estar ou área de trabalho
Quarto com closet e banheiro
Quarto principal com closet, banheiro, pia dupla e terraço.
EQUIPAMENTO:
Pisos cerâmicos de primeira linha.
Paredes com gesso.
Piscina com acabamento chukum.
Marcenaria nas portas com madeira de pinho e compensado de caobilla, e sob a bancada na cozinha (opcional com marcenaria em toda a cozinha).
Alumínio na cor preto fosco, linha 3”.
Piso de concreto estampado na garagem, concreto lavado no pátio de serviço e caminho de acesso.
Granito "Ubatuba" nas bancadas da cozinha.
Bancadas dos banheiros com mármore "Crema Marfil".
Dutos para ar-condicionado (equipamento não incluído).
Cisterna com bomba submersível.
Caixa d'água da marca "Rotoplas".
Bomba para piscina.
CARACTERÍSTICAS E AMENIDADES:
Vias asfaltadas, em mão única com 3 retornos em concreto polido
Calçadas em ambos os lados
Muro Perimetral
Pista de jogging de aproximadamente 900m de distância
30 vagas de estacionamento distribuídas nas áreas verdes da privada
Áreas de leitura ao ar livre
Parque com brinquedos infantis
Terraço coberto com banheiro para reuniões sociais de aproximadamente 40 pessoas
Campo de futebol 5
Meia quadra de basquete
Áreas verdes e parques para que você viva momentos inesquecíveis em família
Guarita com acesso controlado
Banheiro especial para a guarita ou para serviço de manutenção da privada
Taxa de Manutenção: $1,500
Reserva com $10,000.00 por 15 dias corridos, após 15 dias é penalizado com 50% do pagamento e a reserva é cancelada.
Entrada de 20%.
Forma de pagamento: Crédito bancário e recursos próprios.
*Preço e disponibilidade sujeitos a alteração sem aviso prévio, atualizados quinzenalmente*
*Imagens apenas para fins ilustrativos*
*Somente o equipamento mencionado na descrição está incluído*
*Este é um render que pode variar em relação ao resultado real.*Exclusiva privada ubicada al norte de Mérida, rodeada de desarrollos residenciales de primer nivel.
Se encuentra a 3 minutos de la carretera Mérida-Motul, a 16 minutos del Periférico de Mérida, a 18 minutos de la Universidad Modelo, a 20 minutos de Plaza Altabrisa y el hospital Star medica, y a solo 36 minutos de la costa yucateca con el Puerto de Chicxulub.”
Terreno: 320 m2 (10 mts. x 32 mts.)
Construcción: 250 m2
Orientación: Norte – Sur
PLANTA BAJA:
Estacionamiento para 2 autos techados
Bodega
Patio de servicio
Medio baño
Patio interior
Sala
Comedor
Cocina
Cuarto de lavado con baño completo
Recámara en planta baja con baño completo y área de closet
Terraza
Piscina
PLANTA ALTA:
Estancia familiar o área de trabajo
Recámara con closet vestidor y baño
Recámara principal con closet vestidor, baño, doble lavabo y terraza.
EQUIPAMIENTO:
Pisos cerámicos de primer nivel.
Muros con yeso.
Piscina con acabado chukum.
Carpintería en puertas con madera de pino y triplay de caobilla, y debajo de meseta en cocina (opcional con carpintería en toda la cocina).
Aluminios en color negro mate, línea 3”.
Piso de concreto estampado en cochera, concreto lavado en patio de tendido y andador de acceso.
Granito “Ubatuba” en barras en cocina.
Mesetas de baños con mármol “Crema Marfil”.
Ductos para aires acondicionados (no incluye equipo).
Cisterna con bomba sumergible.
Tinaco marca “Rotoplas”.
Bomba para piscina.
CARACTERÍSTICAS Y AMENIDADES:
Vialidades asfálticas, un solo sentido con 3 retornos en concreto pulido
Banquetas en ambos lados
Barda Perimetral
Pista de jogging de aproximadamente 900m. de distancia
30 cajones de estacionamiento distribuidos en las áreas verdes de la privada
Áreas de lectura al aire libre
Parque con juegos infantiles
Terraza techada con baño para reuniones sociales de 40 personas aproximadamente
Cancha de futbol 5
Media cancha de básquetbol
Áreas verdes y parques para que vivas momentos inolvidables en familia
Caseta de vigilancia con acceso controlado
Baño especial para caseta de vigilancia o para servicio de mantenimiento de la privada
Cuota de Mantenimiento: $1,500
Apartado con $10,000.00 por 15 días naturales, pasando los 15 días se penaliza con el 50% del pago y se da por cancelado el apartado.
Enganche con 20%.
Forma de pago: Crédito bancario y recurso propio.
*Precio y disponibilidad sujetos a cambio sin previo aviso, actualizados quincenalmente*
*Imágenes únicamente para fines ilustrativos
*Solamente se incluye el equipamiento mencionado en la descripción*
* Este es un render que puede variar con respecto al resultado real.*
- Estacionamento Coberto
- Facilidade de estacionar
- Pátio
- Terraço
- Dois andares
- Private housing development
- Porteiro
- Quarto no térreo
- Segurança 24 horas
- Kitchen
- Service Room
- Parque infantil
- Animais de estimação permitidos
Conkal, Conkal, Yucatán
Anunciante
Dados do anúncio
- ID do anúncio EB-RB8370
- Tipo de operação Venda
- Tipo de imóvel Casa em condomínio fechado
- Bairro Conkal
