Casa em condomínio fechado em Dzityá, Mérida
CASA À VENDA EM MERIDA, DZITYA, PRIVADA SEREMOS, ETAPA NAVA, ENTREGA IMEDIATA.CASA EN VENTA MERIDA, DZITYA, PRIVADA SEREMOS, ETAPA NAVA, ENTREGA INMEDIATA.
RESIDENCIAL PRIVADO SEREMOS.
É um corredor residencial projetado especialmente para inspirá-lo e ajudá-lo a viver em um ambiente cheio de emoções vibrantes, com o objetivo de alcançar a plenitude de viver ao norte de Mérida, composto por 18 Townhouses e 36 Apartamentos.
"As pessoas procuram ficar em lugares com uma personalidade única, mas com atendimento de hotel 5 estrelas..." Equipe do Airbnb
DATA DE ENTREGA: IMEDIATA
TAXA DE MANUTENÇÃO: R$1.690,00
LOTE COTADO DA PUBLICAÇÃO
Etapa Nava, Th N12
Frente: 5,85 m
Fundo: 13,45 m
Construção: 173 m2
DISTRIBUIÇÃO
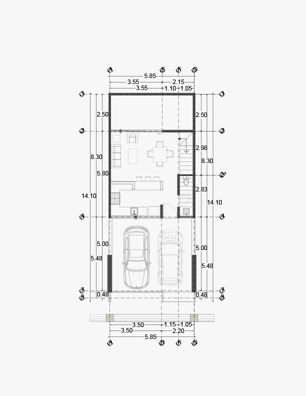
TÉRREO
-Garagem coberta para 2 carros.
-Sala I Sala de jantar.
-Cozinha com bancada de granito
-1/2 banheiro social
-Área de serviço
-Quintal
NÍVEL 2
-1 Quarto principal com closet, banheiro completo e varanda.
-1 Quarto secundário com closet e banheiro completo.
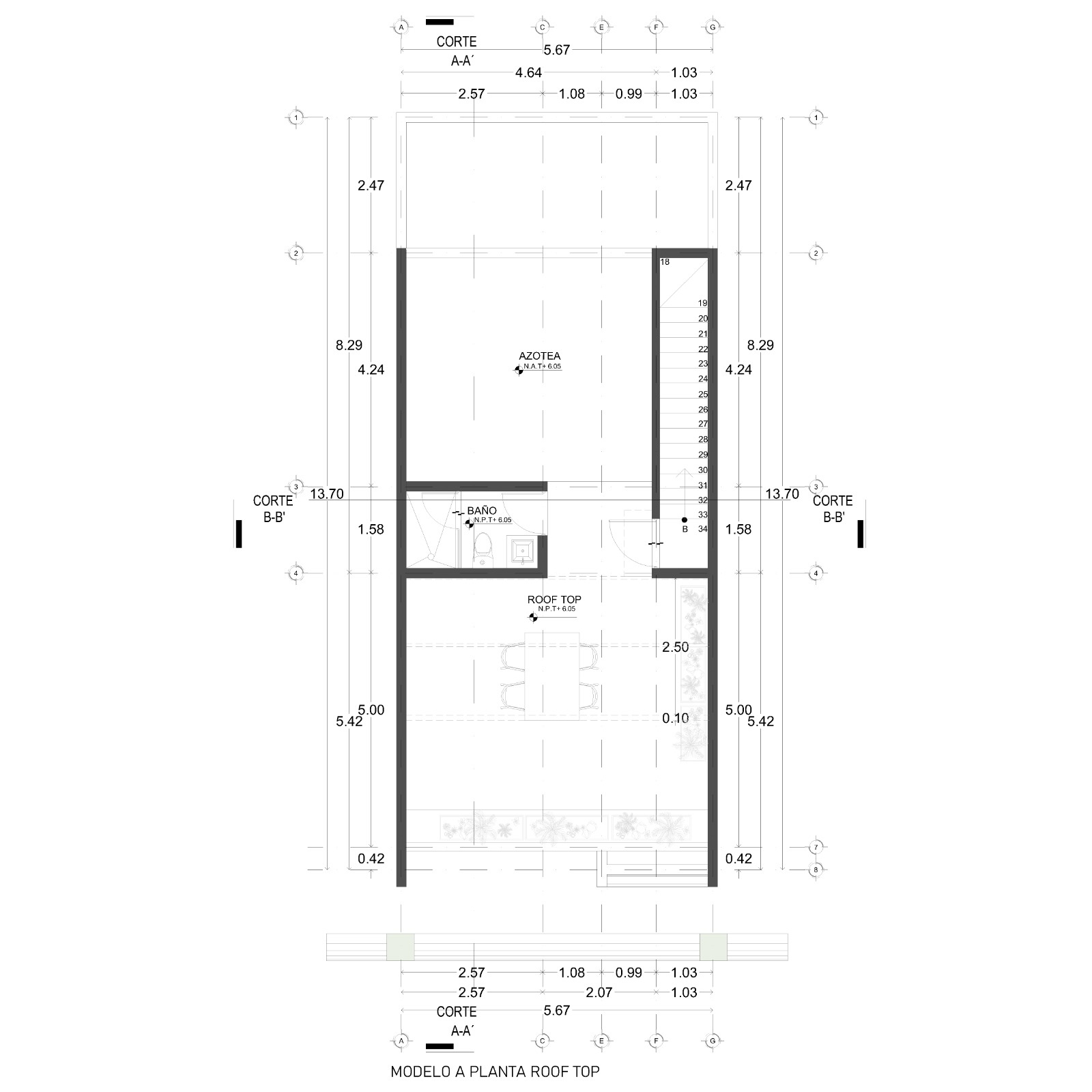
NÍVEL 3
-1 Quarto com espaço para closet.
-1 Banheiro completo.
-Rooftop.
EQUIPAMENTOS E ACABAMENTOS
-Cozinha com revestimento de granito
-Fachada com reboco tipo chukum, ou cerâmica tipo madeira
COMODIDADES
-Piscina Bora
-Sala de jantar para amigos
-Diretor de estilo de vida
-Bike share
-Zona zen
-Jardim para pets
-Circuito de jogging
-Horta orgânica
-Pavilhão de arte
-Piquenique & jogos
-Cowork criativo
-Segurança 24/7
-Câmeras de vigilância
CARACTERÍSTICAS
-Segurança 24 horas Câmeras de vigilância (Etapa 2)
-Acabamentos de luxo
-Cabine de segurança (Etapa 1)
POLÍTICAS DE VENDA
-Reserva: R$15.000 (válido por 7 dias úteis)
-Entrada: 10% para assinar a promessa.
FINANCIAMENTO
-Créditos bancários
-Dinheiro/Recursos próprios
-Banjercito
-Pemex
-Infonavit (o beneficiário deve estar registrado no IMSS com pelo menos R$40.000 e paga R$25.000 pelo processo que inclui avaliação)
-Cofinavit (caso necessite de serviço de inscrição com nossos gestores, será pago R$10.000 pelo processo)
AVISO
-Preços e disponibilidade sujeitos a alteração sem aviso prévio.
-As imagens e perspectivas são apenas ilustrativas.
-Não inclui móveis, itens decorativos ou equipamentos não descritos na ficha do imóvel.
-O preço não inclui taxas notariais, avaliação, impostos de aquisição ou comissões bancárias.
-As informações, incluindo a data de entrega e outros detalhes adicionais, estão sujeitas a alterações sem aviso prévio.PRIVADA RESIDENCIAL SEREMOS.
Es un corredor residencial diseñado especialmente para inspirarte y ayudarte a vivir en un ambiente lleno de emociones vibrantes, con el objetivo de que logres alcanzar la plenitud de vivir al norte de Mérida, conformado por 18 Townhouses y 36 Departamentos.
“La gente busca quedarse en lugares con una personalidad única, pero con atención de hotel 5 estrellas...” Airbnb Staff
FECHA DE ENTREGA: INMEDIATA
CUOTA DE MANTENIMIENTO: $1,690.00
LOTE COTIZADO DE LA PUBLICACION
Etapa Nava, Th N12
Frente: 5.85 m
Fondo: 13.45 m
Construcción: 173 m2
DISTRIBUCION
PLANTA BAJA
-Cochera techada para 2 autos.
-Sala I Comedor corrido.
-Cocina con meseta de granito
-1/2 medio baño de visitas
-Area de lavado
-Patio
NIVEL 2
-1 Recamara principal con closet vestidor, baño completo y balcón.
-1 Recamara secundaria con closet y baño completo.
NIVEL 3
-1 Habitacion con espacio para closet.
-1 Baño completo.
-Rooftop.
EQUIPAMIENTO Y ACABADOS
-Cocina con recubrimiento de granito
-Fachada pasta tipo chukum, ó ceramica tipo madera
AMENIDADES
-Bora Pool
-Comedor de amigos
-Lifestyle director
-Bike share
-Zona zen
-Pet garden
-Circuito de jogging
-Huerto orgánico
-Pabellón de arte
-Picnic & juegos
-Cowork creativo
-Seguridad 24/7
-Cámaras de vigilancia
CARACTERISTICAS
-Seguridad 24 hrs Cámaras de vigilancia (Etapa 2)
-Acabados de lujo
-Caseta de seguridad (Etapa 1)
POLITICAS DE VENTA
-Apartado: $15,000 (vigente por 7 días hábiles)
-Enganche: 10% para firmar promesa.
FINANCIAMIENTO
-Créditos bancarios
-Contado/Recurso propio
-Banjercito
-Pemex
-Infonavit (el derechohabiente tiene que estar dado de alta en el IMSS con al menos $40,000 y se paga $25,000 por en trámite que incluye avalúo
-Cofinavit (en caso de requerir servicio de inscripción con nuestros gestores se pagara por el trámite $10,000
AVISO
-Precios y disponibilidad sujetos a cambio sin previo aviso.
-Las imágenes y perspectivas son únicamente ilustrativas.
-No incluye muebles, artículos decorativos ni equipamiento no descrito en la ficha del inmueble.
-El precio no incluye gastos notariales, avalúo, impuestos de adquisición, ni comisiones bancarias.
-La información, incluyendo la fecha de entrega y otros detalles adicionales, está sujeta a cambios sin previo aviso.
- Varanda
- Facilidade de estacionar
- Pátio
- Roof Garden
- Acessibilidade para idosos
- Acessível para deficientes físicos
- Closed-Circuit Security System
- Kitchen
- Service Room
- Segurança 24 horas
- Dois andares
- Private housing development
- Piscina
- Salão de usos múltiplos
- Animais de estimação permitidos
- Permitido fumar
Anunciante
Dados do anúncio
- ID do anúncio EB-UH6755
- Tipo de operação Venda
- Tipo de imóvel Casa em condomínio fechado
- Bairro Dzityá
