PH nuevo en venta en Bosque Real, cientochenta bosque Real

Guardado Guardar
1 de 11
2 de 11
3 de 11
4 de 11
5 de 11
6 de 11
7 de 11
8 de 11
9 de 11
10 de 11
11 de 11
1 de 11
1 / 11
2 de 11
2 / 11
3 de 11
3 / 11
4 de 11
4 / 11
5 de 11
5 / 11
6 de 11
6 / 11
7 de 11
7 / 11
8 de 11
8 / 11
9 de 11
9 / 11
10 de 11
10 / 11
11 de 11
11 / 11
Cerrar
ID: EB-UU7414
Publicado
$23,924,288 MXN
En Venta

PH nuevo en venta en Bosque Real, cientochenta bosque Real

Departamento en Bosque Real, Huixquilucan

3 recámaras
3 baños, 2 medios baños
5 estacionamientos
311 m² de construcción
Año de construcción: 2026
Piso: 21
Mantenimiento: 0
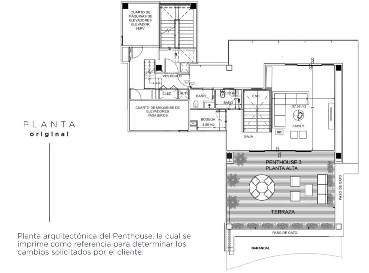
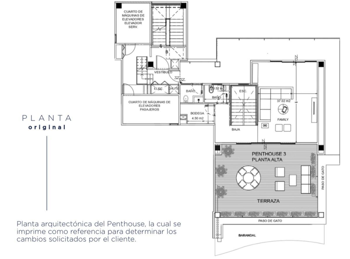
Descripción

[PFQ-232]
Se vende un exclusivo PH en residncial "Ciento ochenta by Bosque real", en la prestigiosa zona de Bosque Real. Con una superficie de 400 m2 distribuidos en dos niveles, esta propiedad cuenta con 3 recámaras en suite, 2 medios baños, 5 cocheras, baulera grande, cuarto de juegos con baño propio y acceso a una amplia terraza en el piso 21 con impresionantes vistas y mucha luz natural. Además, incluye cuarto de servicio completo. El complejo ofrece seguridad, campo de golf, club house, restaurantes, farmacia, áreas verdes y accesos controlados mediante QR. Una oportunidad única para vivir en un entorno exclusivo y seguro en Bosque Real.

Amenidades
Exterior
  • Balcón
  • Terraza
  • Cisterna
  • General
  • Bodega
  • Cocina integral
  • Cuarto de servicio
  • Recreación
  • Alberca
  • Gimnasio
  • Ludoteca
  • Ubicación
    Copiar enlace

    Boulevard Bosque Real, Bosque Real, Huixquilucan, Estado de México

    Enviar mensaje