House for Pre-Sale, Golf Club Province, Mérida, Yucatán.Casa en Pre-Venta, Club de Golf Provincia, Mérida, Yucatán.

Saved Save
1 of 7
2 of 7
3 of 7
4 of 7
5 of 7
6 of 7
7 of 7
1 of 7
1 / 7
2 of 7
2 / 7
3 of 7
3 / 7
4 of 7
4 / 7
5 of 7
5 / 7
6 of 7
6 / 7
7 of 7
7 / 7
Close
ID: EB-UV9796
Published
$13,500,000 MXN
For Sale

House for Pre-Sale, Golf Club Province, Mérida, Yucatán.Casa en Pre-Venta, Club de Golf Provincia, Mérida, Yucatán.

House in Kikteil, Mérida

4 bedrooms
4 bathrooms, 1 half bath
4 parking spaces
358 m² total space
582 m² Lot Size
44 m long
13 m lot width
Year Built: Under Construction
Description
View originalView in English

Provincia is a premium development north of Mérida, on the Mérida–Progreso highway, that redefines the concept of a family and residential golf club. With an environment of peace, natural harmony, security, and high added value, it is ideal for families and golf enthusiasts.

AMENITIES
-9-hole golf course, with night lighting for "Golf All Day."
-Clubhouse & exclusive amenities
-4 paddle courts
-4 tennis courts
-4 pickleball courts
-Half basketball court
-Gym, spa with sauna and steam room, yoga, spinning
-Pools with Snack Bar
-Event hall
-Restaurant, Bar "Hoyo 10"
-Business Center
- Pro Shop
- Kids & Junior Club

PROPERTY DESCRIPTION
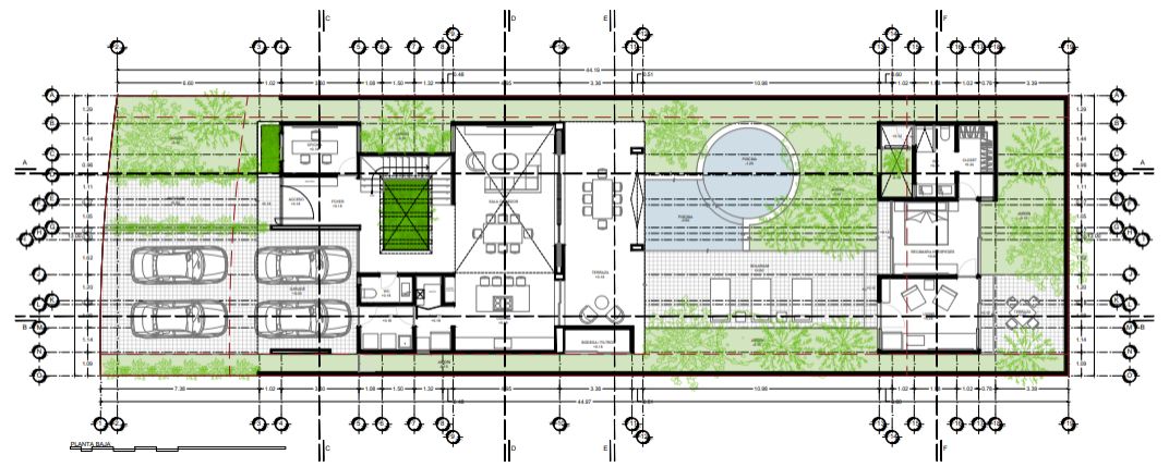
-Garage for 4 vehicles.
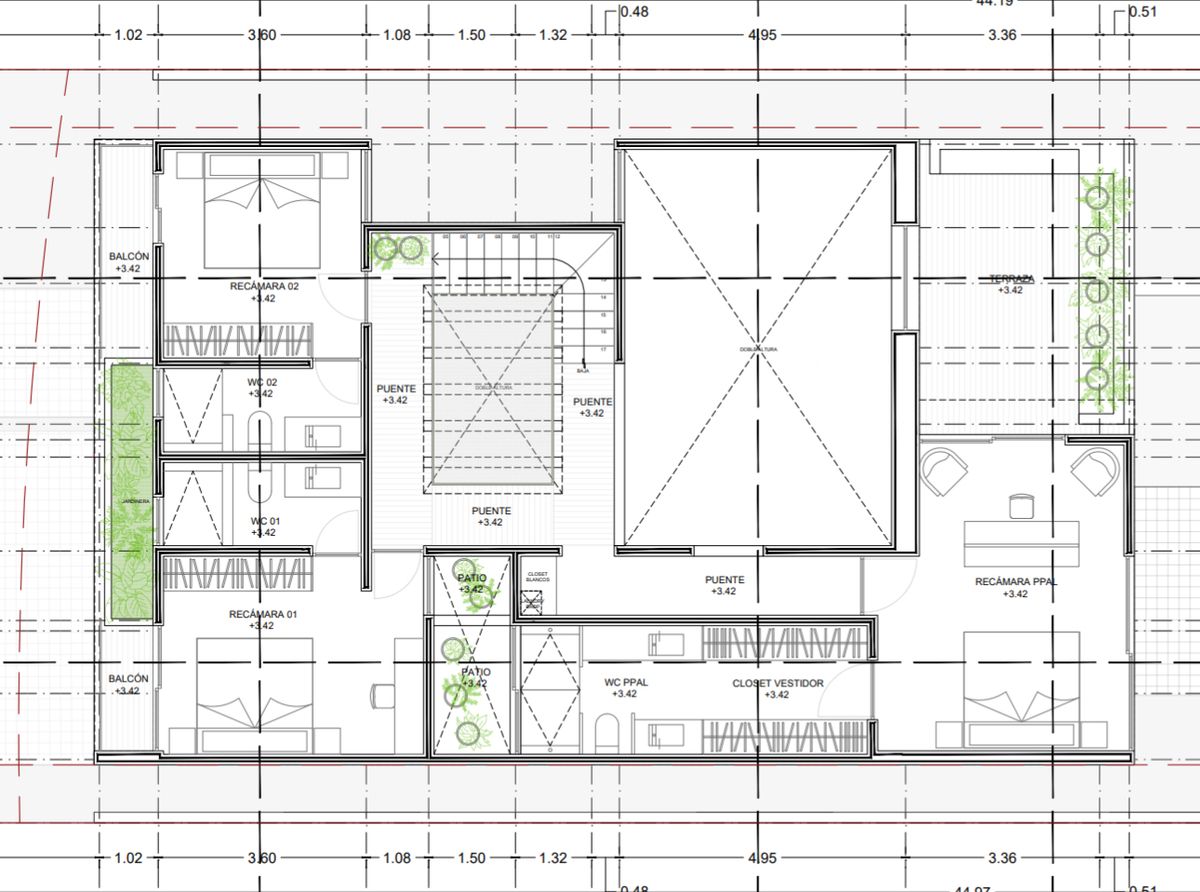
-4 bedrooms with bathrooms (3 bedrooms with bathrooms on the upper floor, master with walk-in closet).
-Private office.
-Double-height foyer with ½ guest bathroom.
-Laundry room.
-Kitchen with breakfast island and pantry
-Living and dining room with double height.
-Covered terrace with a view of the pool.
-Designer pool with sunbathing area.
-Independent one-bedroom apartment, with living room, dining room, terrace, bathroom, and walk-in closet.

EQUIPMENT
-Stationary gas tank for kitchen and laundry area supply.
-Filtration equipment for the pool area
-Solar panels
-Irrigation system with timer
-Preparation for electric car charger
-Preparation for heat pump for pool (not included) and for installation of cameras and security system (not included).
-Gas grill.
-General pressurizer.
-Inverter air conditioners and fans in the bedrooms and living-dining room.
-Gas boiler.
-Tempered glass enclosures.
*Includes premium kitchen equipment
-Marble floors
-Wood carpentry of tzalam or oak according to project in kitchen, bathrooms under sink, and closets.
-Countertops in bathrooms in Fiorito Puebla travertine marble.
-Countertops in kitchen of granite or quartz according to project.
-Details in window sills of Fiorito Puebla travertine marble slabs.
-Magg or Tecnolite lighting with defined models
- Supply and installation of American grass (does not include landscaping or garden design).

DELIVERY DATE
Spring-Summer 2026

PAYMENT METHOD
30% down payment
Balance upon delivery

All the information in this description comes from a reliable source; however, there may be errors, omissions, and it may be subject to changes in availability and price/other conditions without prior notice. It is very important that before making any offer, all conditions are validated with your real estate advisor.

The price presented here does not include notary fees, payment of rights, various procedures, or tax burdens. Please contact your advisor for information regarding this.

Privacy notice at https://ompeninsula.com/aviso-de-privacidad.
Provincia es un desarrollo premium al norte de Mérida, sobre la carretera Mérida–Progreso, que redefine el concepto de club de golf familiar y residencial. Con un entorno de paz, armonía natural, seguridad y alto valor de plusvalía, ideal para familias y apasionados del golf.

AMENIDADES
-Campo de golf de 9 hoyos, con Iluminación nocturna para "Golf All Day".
-Casa Club & Amenidades exclusivas
-4 canchas de pádel
-4 canchas de tenis
-4 canchas de pickleball
-Media cancha de básquetbol
-Gimnasio, spa con sauna y vapor, yoga, spinning
-Albercas con Snack Bar
-Salón de eventos
-Restaurante, Bar "Hoyo 10"
-Business Center
- Pro Shop
- Kids & Junior Club

DESCRIPCIÓN DE LA PROPIEDAD

-Cochera para 4 vehiculos.
-4 habitaciones con baño (3 habitaciones con baño en planta alta, principal con closet vestidor).
-Oficina privada.
-Recibidor a doble altura con ½ baño de visitas.
-Cuarto de lavado.
-Cocina con isla desayunadora y alacena
-Sala y comedor a doble altura.
-Terraza techada con vista a la piscina.
-Piscina de diseño con area de asoledero.
-Departamento independiente de una habitación, con sala comedor, terraza, baño
y closet vestidor

EQUIPAMIENTO
-Tanque de gas estacionario para suministro en cocina y área de lavado.
-Equipo de filtración para el área de alberca
-Paneles solares
-Sistema de riego con temporizador
-Preparación para cargador de auto eléctrico
-Preparación para bomba de calor para
piscina (no incluida) y para instalación de cámaras y sistema de seguridad (noincluidas).
-Parrilla de gas.
-Presurizador general.
-Aires acondicionados inverter y ventiladores en las habitaciones y sala – comedor.
-Boiler de gas.
-Canceles de cristal templado.
*Incluye equipo de cocina premiun
-Pisos de mármol
-Carpinterías de madera de tzalam o encino según proyecto en cocina, baños bajo lavabo y
closets.
-Cubiertas en baños en mármol travertino Fiorito puebla.
-Cubiertas en cocina de granito o cuarzo según proyecto.
-Detalles en antepechos de placas de mármol travertino Fiorito puebla.
-Iluminación Magg o Tecnolite con modelos definidos
- Suministro e instalación de pasto americano (no incluye paisajismo o diseño de jardin).

FECHA DE ENTREGA
Primavera-Verano 2026

FORMA DE PAGO
Enganche 30%
Saldo contra entrega

Toda la información en esta descripción, proviene de fuente confiable, sin embargo, puede haber errores, omisiones y puede sufrir cambios de disponibilidad y precio/otras condiciones sin previo aviso, es muy importante que antes de presentar alguna oferta, se validen todas las condiciones con su asesor inmobiliario.

El precio aquí presentado no incluye gastos notariales, pago de derechos, trámites diversos ni cargas impositivas, por favor, comuníquese con su asesor para obtener información al respecto.

Aviso de privacidad en https://ompeninsula.com/aviso-de-privacidad.

Location
Copy link

Provincia, Kikteil, Mérida, Yucatán

Videos
Send message